Beschreibung
Effizient, modern & flexibel: 3-Zimmer-Büro mieten und Allgemeinräume mitnutzen
Das moderne Bürohaus befindet sich zentral gelegen im Süden von Wien umweit des Kaufparks Alt Erlaa und bietet somit eine ausgezeichnete Nahversorgung (Billa, Apotheke, Bank, ect.), sowie eine optimale Anbindung an das öffentliche Verkehrsnetz, U6-Station Alterlaa fußläufig in 2 Minuten erreichbar, sowie an die Südosttangente bzw A2 über die Altmanssdorferstraße.
Derzeit stehen Büroflächen von 45 m² bis 67 m² zur Verfügung:
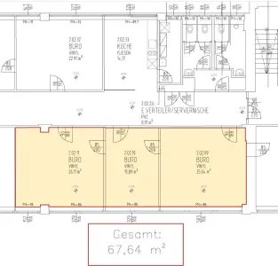
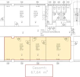
> 2.OG, Top mit 67,64 m²: 3 zentralbegehbare Büroräume, welche zusätzlich intern jeweils mit einer verschließbaren Bürotüre verbunden sind
> € 940,20 Nettomiete
> € 223,21 BK-Akonto netto
> sowie zusätzlich € 340,14 netto für den mitnutzbarem Gemeinschafts-Allgemeinbereich beinhaltend 2 Sanitärgruppen (2 Herren-WCs inkl. 2 Pissoirs, 4 Damen-WCs, 1 behindertengerechtes WC) und Küchenbereich
> € 202,92 Akonto netto Fernwärme
Top-Ausstattung:
> Klimaanlage, in jedem Raum individuell steuerbar
> Neue Internorm-Fenster mit Dreischeibenverglasung mit integrierter Jalousie im Scheibenzwischenraum
> EDV-Leerverrohrung - Kabelkanäle entlang Parapet
> Glasfaseranbindung im Geschoß
> Fußboden in Holzoptik
Weiters:
> Personenlift
> Lastenlift (bis zu 1.000kg)
> Brandmeldeanlage
Stellplätze können je nach Verfügbarkeit um je € 83,- + € 16,- BK-Akonto zzgl. 20% Ust. angemietet werden.
Lagerflächen können im 1.OG angemietet werden.
Einheiten von 5 m² bis 17 m² verfügbar. Details auf Anfrage.
FACTS:
> Nettomiete Büroflächen: € 13,90/m² p.M.zzgl. Netto-BK € 3,30/m² p.M.
> Heizung Akonto netto € 3,00/m² p.M.
> Anteiliger Allgemeinbereich (Sanitärräume, Küche, ect.): € 340,14
> Nettomiete Büro, allg. Allgemeinteil: € 1.503,55 zzgl. 20% Ust.
> Mietvertrag: unbefristet mit Kündigungsverzicht von 18 Monaten
> Indexanpassung- jährlich zum 1.1., erstmals 01.01.2027
> Kaution: 4 BMM gerundet
> Provision: 3 BMM zzgl. 20% Ust.
Alle Preise verstehen sich zzgl. 20% Umsatzsteuer.
Wir beraten Sie gerne, vereinbaren Sie einen Besichtigungstermin:
Mag. Alexandra Wagner, MSc
+43 664/601 05 165
www.anobis.at
Weitere Top-Immobilien finden Sie auf anobis.at
Wir weisen darauf hin, dass zwischen dem Vermittler und dem zu vermittelnden Dritten ein familiäres oder wirtschaftliches Naheverhältnis besteht.
Der Vermittler ist als Doppelmakler tätig.
Pläne
Lagebeschreibung
U6-Station Alterlaa, Abfahrt Südosttangente bzw A2













