Beschreibung
3 Zimmer Altbau-Wohnung mit Potenzial zu verkaufen!
Diese geräumige und helle 84m²-Wohnung im Mezzanin eines gepflegten Mehrfamilienhauses bietet mit 3 Zimmern vielfältige Gestaltungsmöglichkeiten für Ihre Wohnträume.
Für 375.000,00 € erwerben Sie eine sanierungsbedürftige Wohnung mit großem Potenzial. Verwirklichen Sie Ihre Ideen und schaffen Sie ein individuelles Schmuckstück. Die Gasheizung sorgt für niedrige Energiekosten, und die schalldichten Fenster bieten nicht nur eine angenehme Belüftung, sondern helfen auch die "Ruhe zu bewahren".
Die Lage überzeugt mit hervorragender Verkehrsanbindung und Infrastruktur. Öffentliche Verkehrsmittel, Autobahnanschluss, Ärzte, Apotheken, Schulen und Einkaufsmöglichkeiten sind fußnah schnell erreichbar.
Nutzen Sie diese Chance und gestalten Sie Ihr neues Zuhause nach Ihren Vorstellungen. Vereinbaren Sie gerne einen Besichtigungstermin! Wir freuen uns auf Sie!
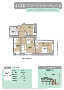
Raumaufteilung:
- Vorzimmer
- Küche
- Wohnzimmer
- Schlafzimmer
- Badezimmer mit Dusche und WC
Ein Kellerabteil ist vorhanden
Lage:
Die Wohnung liegt im sehr beliebten 3. Wiener Gemeindebezirk. Die Nahversorgung ist bestens ausgebaut, alle Geschäfte des täglichen Bedarfs befinden sich in unmittelbarer Nähe. Weiters, ist die Wohnung optimal an den öffentlichen Verkehr angebunden, welcher Sie in wenigen Minuten ins Wiener Zentrum bringt. Auch diverse Schulen und Kindergärten sind in der Umgebung vorhanden.
Öffentliche Verkehrsmittel
- Buslinien: 77A, 80A, N71
- U-Bahnlinie: U3 (Schlachthausgasse & Kardinal-Nagl-Platz)
- Straßenbahnlinien: 18 und 71
----------------
Für eine unverbindliche Besichtigung:
Wir freuen uns Ihnen das Objekt jederzeit persönlich vorzustellen zu dürfen.
Kontaktieren Sie gerne Herr Philipp Schneider persönlich unter +43 660 222 98 25 sowie auch unter schneider@thurner-realitaeten.at. Unser Büro erreichen Sie unter office@thurner-realitaeten.at.
Nebenkosten:
Grundbucheintragung: 1,1% d.KP.
Grunderwerbssteuer: 3,5% d.KP.
Maklerprovision: 3% d.KP. + 20% USt.
Kaufvertragshonorar: 1,2% des Kaufpreises zzgl. Barauslagen und USt. | Die Errichtung und Durchführung des Kaufvertrages erfolgt durch die Kanzlei Tiefenthaler Gnesda Rechtsanwälte GmbH.
Maklervereinbarung: Wir ersuchen um Verständnis, dass wir bei Anfragen zur Objektadresse, bzw. Besichtigungstermin aufgrund neuer gesetzlicher Bestimmungen Unterlagen erst dann zusenden können, wenn Sie vorab bestätigen, dass Sie unser sofortiges Tätigwerden wünschen und über Ihre Rücktrittsrechte aufgeklärt wurden. Sie bekommen nach Ihrer schriftlichen Anfrage mit vollständiger Angabe des Namens, Anschrift und Telefonnummer ein Email, in dem Sie diese Punkte bestätigen müssen.
Haftungsausschluss: Wir weisen darauf hin, dass sämtliche Daten im vorliegenden Angebot sowie die von unserem Büro an Sie weitergegebenen Auskünfte, vom Eigentümer der Immobilie zur Verfügung gestellt wurden. Ebenso sind Informationen von Dritten (z.B. behördliche Informationen) eingeholt worden, auch für diese können wir unsererseits keinerlei Haftung für deren uneingeschränkte Richtigkeit übernehmen.
Wir weisen darauf hin, dass zwischen dem Vermittler und dem zu vermittelnden Dritten ein familiäres oder wirtschaftliches Naheverhältnis besteht.
Der Vermittler ist als Doppelmakler tätig.
Pläne
Lagebeschreibung
Die Wohnung befindet sich in Mezzanin eines Wiener Altbau-Gebäudes in 1030 Wien. Die Umgebung ist geprägt von einer Mischung aus historischen Gebäuden und modernen Wohnkomplexen. In unmittelbarer Nähe befinden sich zahlreiche Annehmlichkeiten wie Arztpraxen, Apotheken, Kliniken und Krankenhäuser, die eine gute medizinische Versorgung gewährleisten. Die Verkehrsanbindung mit Auto oder Öffis ist ausgezeichnet.







