Beschreibung
Highlights:
- Flexible Raumaufteilung: Individuelle Anpassung an unterschiedliche Anforderungen
- Zugang: Direkt von der Straße sowie über das Stiegenhaus erreichbar
- Hervorragende Lage: Gute Erreichbarkeit durch öffentliche Verkehrsmittel und Nähe zu Geschäften, Restaurants und Nahversorgern
Beschreibung
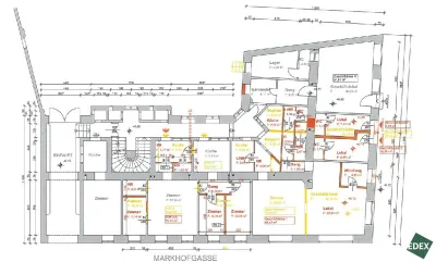
Diese ca. 97 m² große Geschäftsfläche befindet sich im Erdgeschoss und eignet sich ideal als Verkaufsfläche oder für einen anderweitigen Geschäftsbetrieb. Die Immobilie ist sowohl direkt von der Straße als auch über das Stiegenhaus zugänglich und bietet dadurch vielseitige Nutzungsmöglichkeiten.
Das Objekt verfügt aktuell über zwei Toiletten, eine Küche, eine großzügige Geschäftsfläche, die individuell gestaltet und genutzt werden kann.
Das Objekt ist derzeit noch in Vermietung bis zum 30.09.2034.
Die Geschäftsfläche in der Markhofgasse, 1030 Wien, liegt in einer hervorragend angebundenen Lage und ist optimal an das öffentliche Verkehrsnetz angeschlossen:
- U-Bahn: Station Schlachthausgasse (U3) ist in ca. 5 Gehminuten erreichbar und bietet schnelle Verbindungen in verschiedene Stadtteile Wiens.
- Straßenbahn: Linien 18 und 71 halten in unmittelbarer Nähe.
- Bus: Linien 74A und 77A sind in wenigen Gehminuten erreichbar.
Diese erstklassige Anbindung ermöglicht eine unkomplizierte Erreichbarkeit sowohl für Kunden als auch für Mitarbeiter.
Lage
Die Immobilie befindet sich in einem attraktiven und gut angebundenen Stadtteil Wiens, der durch eine ausgezeichnete Infrastruktur besticht. Die U-Bahn-Stationen Kardinal-Nagl-Platz (U3) und Schlachthausgasse (U3) sind in etwa 5 Gehminuten erreichbar und bieten schnelle Verbindungen in die Innenstadt sowie zu anderen Bezirken.
Die Straßenbahnlinien 18 und 71 sowie die Buslinien 74A und 77A halten in unmittelbarer Nähe und gewährleisten eine hervorragende öffentliche Verkehrsanbindung. Diese erstklassige Erreichbarkeit macht die Lage sowohl für Kunden als auch für Mitarbeiter besonders attraktiv.
Die Umgebung bietet zahlreiche Einkaufsmöglichkeiten, Restaurants und Dienstleister, insbesondere entlang der nahegelegenen Landstraßer Hauptstraße. Zusätzlich lädt die Nähe zum Grünen Prater zu Freizeit- und Erholungsaktivitäten ein und erhöht die Attraktivität dieser zentralen Lage.
Mit ihrer vielfältigen Nutzbarkeit, den umfassenden Annehmlichkeiten und der idealen Verkehrsanbindung eignet sich diese Immobilie perfekt für Unternehmen, die eine zentral gelegene und flexibel nutzbare Fläche suchen.
*Alle Preise verstehen sich zzgl. der gesetzlichen Umsatzsteuer.
Pläne
Lagebeschreibung
Schlachthausgasse, Erdberg, Donaukanal


















