Beschreibung
Kurzzeit Vermietungen möglich!
In einem ehrwürdigen, unter Denkmalschutz stehenden Objekt werden 5 von 7 bereits vermieteten Wohnungen zum Verkauf angeboten!
Die Netto Rendite liegt momentan bei ca 5,58%, die jährlichen Netto Mieteinnahmen (ohne Betriebskosten) bei 38.776,80€.
Aufgrund des Denkmalschutzes sind die Wohnungen mit einem angemessenen Mietzins vermietet. Bei Verträgen ohne Befristung würden sogar die 25% Befristungsabschlag entfallen. Die Summe der Liegenschaftsanteile bei dieser Version belaufen sich auf 272 von insgesamt 1760. Die Wohnfläche aller 5 Einheiten beträgt 276,63m², die Lagerflächen 29,52 m²
Möglich wäre auch zwei vermietete Lokal + Lager und einen genehmigten Einreichplan für einen Dachgeschoss Umbau (Wasserleitung und Kanal bereits vorhanden, Starkstrom und Verteilerkasten im 1. Stock vorbereitet) mit weiteren 6 Wohneinheiten zu erwerben! Preis auf Anfrage.
Im Zuge des Umbaus ergibt sich eine zusätzliche Wohnfläche von 631,45m² und ein Besitz an über 62% der Hausanteile. Zurzeit gibt es 5 Eigentümer.
Die Innenfassade wurde 2022 saniert, die Bestandswohnungen 2020 generalsaniert. Sie wurden mit neuer Elektrik, neuen Wasserrohren, Wohnungseingangs - und Innentüren sowie Einbauküchen ausgestattet. Decken wurden teilweise abgehängt und Trennwände eingezogen. Bei den meisten Einheiten wurden Böden und Fenster erneuert.
Zinsliste und Einreichpläne auf Anfrage.
Für Fragen und/oder einen Besichtigungstermin stehe ich gerne zur Verfügung!
Noch nichts gefunden? Wir informieren Sie über geeignete Immobilienangebote noch vor allen anderen.
Legen Sie jetzt Ihren individuellen Suchagenten unter folgendem Link an. Wir schicken Ihnen passende Immobilien exklusiv vorab zu.
Suchagent anlegen - https://db-immobilien.service.immo/registrieren/de
Wir weisen darauf hin, dass zwischen dem Vermittler und dem zu vermittelnden Dritten ein familiäres oder wirtschaftliches Naheverhältnis besteht.
Der Vermittler ist als Doppelmakler tätig.
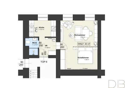
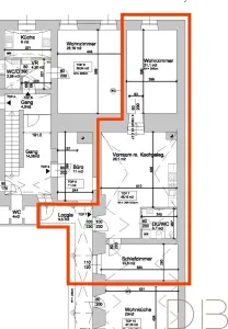
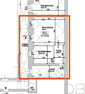
Pläne
Lagebeschreibung
Im schönen Bruck an der Leitha - zentrale Lage, direkt am Hauptplatz mit Zugang zur Fußgängerzone!
 
                                     
                             
                            




 
                    
















