Beschreibung
3 Zimmer Wohnung im 2.OG mit Potenzial für Ihre Ideen
Sie suchen eine zentral gelegene 69m² Wohnung in Wien, die Sie nach Ihren Vorstellungen renovieren können? Im beliebten 3. Bezirk, bietet diese renovierungsbedürftige 69m² große Etagenwohnung mit 3 Zimmern viel Potenzial im 2.OG (ohne Lift)..
In der 2. Etage eines gepflegten Mehrfamilienhauses gelegen, besticht sie durch einen angenehmen Weitblick und große Fenster, die für eine helle Atmosphäre sorgen. Die Ausstattung umfasst Fliesenböden, Gas-Etagenheizung und eine separate Toilette.
Die zentrale Lage bietet hervorragende Verkehrsanbindungen mit Bus, U-Bahn, Straßenbahn und Autobahn in unmittelbarer Nähe. Einkaufsmöglichkeiten, medizinische Einrichtungen, Schulen und Kindergärten sind ebenfalls schnell erreichbar.
Nutzen Sie diese Gelegenheit, um Ihr individuelles Zuhause in Wien zu gestalten. Der Kaufpreis von 330.000.- € macht diese renovierungsbedürftige Wohnung zu einer einmaligen Chance. Vereinbaren Sie noch heute einen Besichtigungstermin!
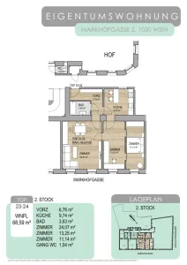
Raumaufteilung:
- Wohnzimmer
- Küche
- Schlafzimmer
- Durchgangs-/Kinderzimmer
- Badezimmer mit Badewanne
Ein Kellerabteil rundet das Angebot ab.
Lage:
Die Wohnung liegt im sehr beliebten 3. Wiener Gemeindebezirk. Die Nahversorgung ist bestens ausgebaut, alle Geschäfte des täglichen Bedarfs befinden sich in unmittelbarer Nähe. Weiters, ist die Wohnung optimal an den öffentlichen Verkehr angebunden, welcher Sie in wenigen Minuten ins Wiener Zentrum bringt. Auch diverse Schulen und Kindergärten sind in der Umgebung vorhanden.
Öffentliche Verkehrsmittel
- Buslinien: 77A, 80A, N71
- U-Bahnlinie: U3 (Schlachthausgasse & Kardinal-Nagl-Platz)
- Straßenbahnlinien: 18 und 71
----------------
Für eine unverbindliche Besichtigung:
Wir freuen uns Ihnen das Objekt jederzeit persönlich vorzustellen zu dürfen.
Nebenkosten:
Grundbucheintragung: 1,1% d.KP.
Grunderwerbssteuer: 3,5% d.KP.
Maklerprovision: 3% d.KP. + 20% USt.
Kaufvertragshonorar: 1,2% des Kaufpreises zzgl. Barauslagen und USt. | Die Errichtung und Durchführung des Kaufvertrages erfolgt durch die Kanzlei Tiefenthaler Gnesda Rechtsanwälte GmbH.
Maklervereinbarung: Wir ersuchen um Verständnis, dass wir bei Anfragen zur Objektadresse, bzw. Besichtigungstermin aufgrund neuer gesetzlicher Bestimmungen Unterlagen erst dann zusenden können, wenn Sie vorab bestätigen, dass Sie unser sofortiges Tätigwerden wünschen und über Ihre Rücktrittsrechte aufgeklärt wurden. Sie bekommen nach Ihrer schriftlichen Anfrage mit vollständiger Angabe des Namens, Anschrift und Telefonnummer ein Email, in dem Sie diese Punkte bestätigen müssen.
Haftungsausschluss: Wir weisen darauf hin, dass sämtliche Daten im vorliegenden Angebot sowie die von unserem Büro an Sie weitergegebenen Auskünfte, vom Eigentümer der Immobilie zur Verfügung gestellt wurden. Ebenso sind Informationen von Dritten (z.B. behördliche Informationen) eingeholt worden, auch für diese können wir unsererseits keinerlei Haftung für deren uneingeschränkte Richtigkeit übernehmen.
Pläne
Lagebeschreibung
Die Wohnung befindet sich in einer zentralen Lage im 3. Bezirk von Wien, in der Nähe von verschiedenen Einrichtungen wie Arztpraxen, Apotheken, einer Klinik und einem Krankenhaus. Auch Bildungseinrichtungen wie Schulen, Kindergärten, eine Universität und eine Höhere Schule sind in der Umgebung vorhanden. Für den täglichen Bedarf gibt es Supermärkte, eine Bäckerei und ein Einkaufszentrum in der Nähe. Die Anbindung an den öffentlichen Nahverkehr ist ausgezeichnet.









