Beschreibung
KOSTBAR IMMOBILIEN präsentiert: Ein Juwel im Herzen von Graz – Das Zinshaus, das Träume Wirklichkeit werden lässt!
Ihre Chance auf eine Top-Immobilie in toller Lage!
Dieses vielseitige Gebäude in der Kärntnerstraße 423 ist mehr als nur ein Haus – es ist ein Lebens- und Business-Hub, der auf Sie wartet. Ob als innovativer Firmenstandort, lukratives Investment oder modernes Wohnprojekt – hier ist alles möglich!
Ein Blick auf die Highlights:
Großzügige Flächen:
-
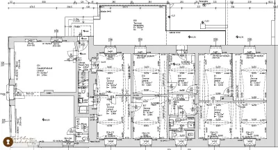
Wohn- und Geschäftsfläche im Erdgeschoss: ca. 210 m² – Raum für Innovation und Komfort!
-
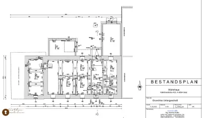
Keller- und Lagerraum: ca. 155 m² – perfekte Infrastruktur für Ihr Business oder Ihre Privatsphäre!
-
Geschäftsräume: 65 m² – derzeit befristet vermietet bis März 2026
-
Wohnung 1: 91 m² – befristet vermietet bis August 2025
-
Wohnung 2: 47 m² – aktuell leerstehend – vielseitig nutzbar, z.B. als Büro, Atelier oder Apartment!
-
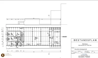
Dachgeschoss: 30 m² Wohnung (derzeit leerstehend) + 190 m² Rohdachboden – Ihr zukünftiges Projekt!
Parken:
-
Zwei Garagen vermietet plus 6 Parkplätze – Komfort und Bequemlichkeit inklusive!
Technische Ausstattung:
-
Heizung: Ölheizung – solide, bewährte Technik!
-
Energieausweis vorhanden – alle Details auf Anfrage!
Besondere Chancen:
-
Aufstockung und Dachbodenausbau möglich – gestalten Sie Ihr Meisterstück!
-
Potenzial für eine Erweiterung der Nutzfläche – grenzenlose Möglichkeiten!
Preis & Details:
-
Kaufpreis: € 439.000,-
-
Nutzfläche gesamt: 390 m²
-
Grundstücksfläche 610 m² ( Bauland )
Diese Immobilie vereint historische Substanz mit modernem Ausbaupotenzial – perfekt für Investoren, Entwickler oder Familien, die Großes vorhaben! Das Gebäude verspricht nicht nur eine solide Wertanlage, sondern auch kreative Entfaltungsmöglichkeiten in einer der super Lage.
Ihr nächster Schritt zum Erfolg:
Vereinbaren Sie noch heute Ihren persönlichen Besichtigungstermin! Ob telefonisch unter +43 699 15915157 oder bequem via WhatsApp unter +436601692296. Nutzen Sie die Chance, dieses einzigartige Objekt kennenzulernen und Ihre Zukunft zu gestalten!
🔑 KOSTBAR IMMOBILIEN – Ihr Partner für außergewöhnliche Immobilien!
Wir freuen uns darauf, Sie bei uns willkommen zu heißen und gemeinsam Ihre Erfolgsgeschichte zu starten!
Zögern Sie nicht – Ihre Traum-Immobilie wartet auf Sie!
Pläne
Lagebeschreibung
Sehr gute Infrastruktur: Bushaltestelle und sämtliche Nahversorger sind fußläufig erreichbar. Die nächste Straßenbahn- bzw. Bushaltestelle ist nur Gehminuten entfernt. In der Umgebung finden sich zahlreiche Einkaufsmöglichkeiten, Supermärkte, Restaurants und Cafés.
In der Umgebung
Bus
1km
Straßenbahn
3km
Autobahnanschluss
1km
Bahnhof
1km
Flughafen
5km
Arzt
1km
Apotheke
1km
Klinik
5km
Krankenhaus
3km
Schule
1km
Kindergarten
1km
Supermarkt
1km
Bäckerei
1km
Einkaufszentrum
2km
Bankomat
1km
Bank
1km
Post
1km
Polizei
3km
Quelle: OpenStreetMap / Entfernungsangaben Luftlinie




























