Beschreibung
Charmantes Landhaus in idyllischer Lage von Großstübing.
Das Anwesen umfasst eine großzügige Fläche von 2,5 Hektar und bietet herrliche Ruhe inmitten der Natur
Das Hauptgebäude verfügt über eine Solaranlage und eine effiziente Holzheizung mit einem Scheitholzkessel sowie einen Kachelofen.
Zu den Nebengebäuden gehören ein zweites Haus mit einer Garage und einer Wohnung darüber, perfekt für Gäste oder zusätzlichen Wohnraum.
Außerdem gibt es einen leeren Schuppen sowie einen alten Stall, die vielfältige Nutzungsmöglichkeiten bieten. Auch bestens für Pferdeliebhaber geeignet.
Die Liegenschaft ist sehr gut erreichbar und bietet durch die Nähe zu Graz viele Möglichkeiten.
Der Preis versteht sich als Verhandlungsbasis!
Noch nichts gefunden? Wir informieren Sie über geeignete Immobilienangebote noch vor allen anderen.
Legen Sie jetzt Ihren individuellen Suchagenten unter folgendem Link an. Wir schicken Ihnen passende Immobilien exklusiv vorab zu.
Suchagent anlegen
Hinweis gemäß Energieausweisvorlagegesetz: Ein Energieausweis wurde vom Eigentümer bzw. Verkäufer, nach unserer Aufklärung über die generell geltende Vorlagepflicht, sowie Aufforderung zu seiner Erstellung noch nicht vorgelegt. Daher gilt zumindest eine dem Alter und der Art des Gebäudes entsprechende Gesamtenergieeffizienz als vereinbart. Wir übernehmen keinerlei Gewähr oder Haftung für die tatsächliche Energieeffizienz der angebotenen Immobilie.
Der Vermittler ist als Doppelmakler tätig.
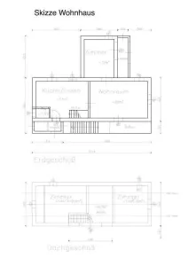
Pläne











































