Beschreibung
Zum Verkauf gelangt ein 2023 baugenehmigter Rohdachboden, in einem detailreichen ausgearbeiteten Gründerzeithaus. Eine mit Stuck verzierte Fassade mit dem zugehörigen Eingangsbereich, Schmiedearbeiten an Fenster sowie dem Stiegenhaus und ein schön erhaltener Fliesenspiegel bieten eine wunderbare Grundsubstanz für den Ausbau.
Die aktuelle Eigentümerstruktur ist überschaubar und das Zinshaus verfügt über 3 Bestandsgeschoße plus KG.
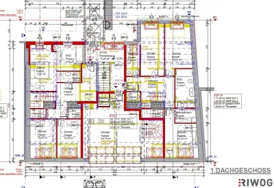
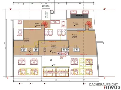
Die Planung umfasst insgesamt 3 Dachgeschoßwohnungen mit jeweils großzügigen Dachterrassen.
Weiters, ist Errichtung eines Liftes sowie einer Photovoltaik-Anlage am hofseitigen Dach, auf Kosten des Käufers, vorgeschrieben. Ein großzügiger begrünter Innenhof, welcher gemeinschaftlich genutzt werden kann sowie die konzipierten Dachterrassen bieten optimale Voraussetzungen, um dem Zielpublikum ein hochwertiges Endprodukt zu präsentieren, welches vom aktuellen Markt gefordert wird.
Laut Planung:
- Top 8 109m² WNFL + 39,72m² Terrasse
- Top 9 79,40m² WNFL + 18,67m² Terrasse
- Top10 114,87m² WNFL + 46,45m² Terrasse
Gesamt 303,67m² WNFL + 104,84m² Terrasse
Auf Wunsch kann ich Ihnen gerne die bestehende Einreichplanung sowie den Baubescheid zukommen lassen.
Das Haus liegt in unmittelbarer Nähe der U-Bahnstation Spittelau sowie dem Währinger Park. Von hier aus lassen sich mit nur wenigen Schritten sämtliche öffentliche Verkehrsmittel erreichen, mit denen sich die Innenstadt mit all Ihren Sehenswürdigkeiten und Einkaufsmöglichkeiten in nur wenigen Minuten erreichen lässt.
Die Infrastruktur lässt somit keine Wünsche offen: Die Einkäufe des täglichen Bedarfs, Kindergärten bis diverse Schulen, Spitäler sowie Apotheken sind in unmittelbarer Umgebung zu finden.
Für eine hervorragende öffentliche Verbindung sorgen U-Bahn-Linie U4/U6 Spittelau, U6 Nußdorfer Straße und die Straßenbahnlinien 37 u. 38 sowie die Buslinie 37A finden sich direkt vor der Haustüre.
Kaufpreis:
EUR 890.000.-
Nebenkosten:
Provision: EUR 32.040,-- inkl. 20% USt. (3% des Kaufpreises zzgl. 20% USt.)
Besuchen Sie auch unsere Homepage WWW.RIWOG.AT mit zahlreichen aktuellen TOP-Objekten!
In Entsprechung des FAGG (Fern- und Auswärtsgeschäfte-Gesetz) und des VRUG (Verbraucherrechte-Richtlinie-Umsetzungsgesetz) ist es uns leider nur mehr möglich Termine nach Erhalt einer schriftlichen Anfrage mit vollständigen Kontaktangaben (Kontaktformular) zu vereinbaren, dies gilt ebenso für die Herausgabe relevanter Informationen wie z.B. der Lage. Sehr gerne sind wir auf diesem Wege bereit, uns um sämtliche Anliegen rasch und kompetent zu kümmern.
Wir weisen darauf hin, dass zwischen dem Vermittler und dem zu vermittelnden Dritten ein familiäres oder wirtschaftliches Naheverhältnis besteht.
Der Vermittler ist als Doppelmakler tätig.
Pläne
Lagebeschreibung
Spittelau/Hardtgasse





















