Beschreibung
Diese Projektliegenschaft mit Altbestand befindet sich in zentraler Lage, an der Grenze zwischen 11. und 10. Bezirk.
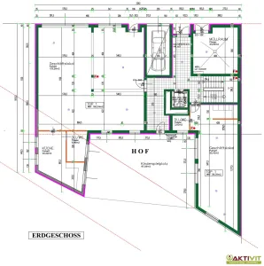
Die Liegenschaft wird inklusive einer Baugenehmigung und Einreich-Planung für ein Projekt mit 29 Tops auf rund 1.960 m² Nettonutzfläche verkauft.
Ein Abbruchbescheid für den Altbestand liegt vor, weiters geplant sind zwei Etagen Tiefgaragen mit 20 Stellplätzen sowie rund 194 m² Freiflächen (Balkone und Terrassen).
Das Besondere an diesem Wohnbau-Projekt:
- Baugenehmigtes Projekt inklusive Einreich-Planung!
- 29 Tops auf rund 1.960 m² NNFL.
- 22 Freiflächen mit in Summe rund 194 m² (Balkone und Terrassen).
- Zwei Etagen Tiefgarage mit 20 Stellplätzen.
- Zentrale Lage zwischen 10. und 11. Bezirk.
- Sehr gute Verkehrsanbindung.
- Nahversorger < 200m fußläufig.
- Viele große Arbeitgeber und Firmenareale fußläufig.
DAS PROJEKT.
Die Liegenschaft wird inklusive der Baugenehmigung und Einreichplanung für ein Projekt mit 27 Wohneinheiten und zwei Gewerbelokalen verkauft.
Das Projekt verfügt über eine gesamte Netto-Nutzfläche von 1.959,54 m² laut Einreichplanung. Davon entfallen rund 219,7 m² auf die Gewerbeflächen im EG und die restlichen rund 1.739,9 m² auf Wohnnutzflächen.
Von den 27 Wohneinheiten sind 22 mit Freiflächen ausgestattet. Diese haben insgesamt ein Ausmaß von 194,04 m².
Die Flächen verteilen sich auf insgesamt 9 oberirdische Etagen (EG, 1. bis 6. OG, 1. und 2. DG) und werden zur Gänze durch einen Lift erschlossen.
Im 2. Dachgeschoß ist die gesamte Etage mit einer Wohneinheit geplant.
Hinzu kommt ein großzügiger Keller mit Tiefgarage auf zwei Etagen (1. und 2. KG). Hier sind neben Kellerabteilen 20 KFZ-Garagenplätze geplant und genehmigt.
DAS GRUNDSTÜCK.
Das Grundstück hat eine Fläche von rund 560 m² laut Grundbuch.
Bei der vorliegenden Widmung des straßenseitiges Bauzugs handelt es sich um "GB-GV IV g" ("Gemischtes Baugebiet-Geschäftsviertel / Bauklasse IV (4) / geschlossene Bauweise").
Hofseitig fällt ein geringer Anteil der Liegenschaft in die Widmung "GB III g [50%] BB".
Zur Beantwortung weiterer Fragen sowie für Besichtigungstermine stehe ich Ihnen gerne täglich - auch am Wochenende - von 08:00 bis 22:00 Uhr zur Verfügung.
Ich freue mich über Ihre Kontaktaufnahme,
Wilhelm Rossmair
+43 664 54 24 481
w.rossmair@aktivit.org
Hinweis gemäß Energieausweisvorlagegesetz: Ein Energieausweis wurde vom Eigentümer bzw. Verkäufer, nach unserer Aufklärung über die generell geltende Vorlagepflicht, sowie Aufforderung zu seiner Erstellung noch nicht vorgelegt. Daher gilt zumindest eine dem Alter und der Art des Gebäudes entsprechende Gesamtenergieeffizienz als vereinbart. Wir übernehmen keinerlei Gewähr oder Haftung für die tatsächliche Energieeffizienz der angebotenen Immobilie.
Erteilen Sie uns ihren Suchauftrag und profitieren Sie von vielen Vorteilen und exklusiven Angeboten!
Ganz einfach und kostenlos unter: Jetzt Suchauftrag eingeben.
Pläne
Lagebeschreibung
Dieses baugenehmigte Projekt befindet sich in idealer Lage zwischen den Bezirke Favoriten (10.) und Simmering (11.) in Wien. Dank der strategisch günstigen Lage profitieren Sie von einer reichen Infrastruktur, einem breiten Bildungsangebot und exzellenten Verkehrsanbindungen. Als Hauptstadt von Österreich und eine der führenden Metropolen Europas, hat Wien viel zu bieten und ist dennoch übersichtlich und gut zu erreichen. INFRASTRUKTUR UND VERSORGUNG: Im Umkreis von weniger als einem Kilometer finden Sie eine große Auswahl an Dienstleistern und Geschäften des täglichen Bedarfs. Der nächste Supermarkt ist nur rund 100 Meter entfernt, eine Bäckerei ca. 600 Meter. Mehrere Ärzte und Apotheken sind im Umkreis 500 ebenfalls leicht zu erreichen. Ein großes Krankenhaus liegt etwa 2 Kilometer entfernt. Für größere Shoppingausflüge stehen mehrere Einkaufs- und Fachmarktzentren in der Umgebung zur Verfügung. Die Bezirke Favoriten (10.) und Simmering (11.) bieten eine breite Palette an Geschäften, Dienstleistern und gastronomischen Einrichtungen. BILDUNGS-EINRICHTUNGEN: Mit einer Schule und einem Kindergarten in weniger als 500 Metern Entfernung, sowie den umliegenden höheren und weiterführenden Einrichtungen, bietet das Projekt eine breite Palette an Bildungsmöglichkeiten. Die Bezirke Favoriten und Simmering sind auch Heimat einer Vielzahl weiterer Bildungseinrichtungen, darunter Gymnasien und berufliche Schulen. VERKEHRSANBINDUNG: Die Verkehrsanbindung ist hervorragend. Die nächste Bushaltestelle ist nur 200 Meter entfernt, eine Straßenbahnhaltestelle ca. 300 Meter. U-Bahn Stationen sind am Enkplatz und Reumannplatz vorhanden, der Bahnsteig Wien Geiselbergerstraße ist ca. 850 Meter entfernt, der Hauptbahnhof ca. 2Km. DIE REGION: Wien, die Hauptstadt Österreichs und Zentrum der europäischen Kultur, bietet eine Kombination aus städtischem Flair und historischer Eleganz. Die Bezirke Favoriten (10.) und Simmering (11.) sind beliebte Wohngebiete mit einer Vielzahl von Grünflächen, kulturellen Einrichtungen und lokalen Geschäften. Das Leben hier bietet einen angenehmen Mix aus urbanem Leben und familiärer Nachbarschaft.


















