Beschreibung
Dieses innovative Projekt bietet den zukünftigen Bewohnerinnen und Bewohnern ein Leben außerhalb der Stadt mit allen Vorteilen einer dörflichen Gemeinschaft. Eggersdorf bei Graz bietet als "familienfreundliche Gemeinde" beste Infrastruktur für alle Generationen. Kinderkrippe, Volksschule, Mittelschule, aber auch Supermärkte, Nahversorger, zahlreiche Ärzte und ein Pflegeheim befinden sich in der Gemeinde.
Die 33 Wohnungen sind auf 3 Baukörper aufgeteilt, in deren Mitte sich eine sehr große allgemeine Grünfläche befindet. Hier finden ein Kinderspielplatz, eine Obstwiese und auf Wunsch auch ein persönlicher Gemüsegarten Platz. Als Highlight steht allen Bewohnern ein Gemeinschaftsgebäude zur Verfügung. Dieses Gebäude dient als Hobbyraum, Werkstatt, Veranstaltungsfläche oder Begegnungszone für Jung und Alt.
Hier ist der Fokus ganz klar auf kooperatives, nachhaltiges und gemeinschaftliches Wohnen gelegt.
Auch die Wohnungen selbst spiegeln diese Idee in sehr gut durchdachten Grundrisslösungen mit viel Licht und großen Freiflächen wieder.
Die Wohnungen im ersten Stock verfügen über eine Dachraumfläche welche nicht als Wohnraum verkauft werden jedoch vom Eigentümer ausbaubar sind .
1 KFZ- Außenstellplatz je Wohnung ist im Kaufpreis bereits inkludiert, außerdem stehen weitere Parkplätze zur gemeinsamen Nutzung zur Verfügung. Ein Weiterer Freiparkplatz kann um € 3.000,- zzgl. Kaufnebenkosten dazugekauft werden.
Umfassende Informationen zum Wir&Co Projekt finden Sie auch unter:
LINK: https://youtu.be/LIT7e_SO-2s
Bitte beachten Sie, dass es sich bei den im Video genannten "Galerieflächen" um die Dachraumfläche handelt.
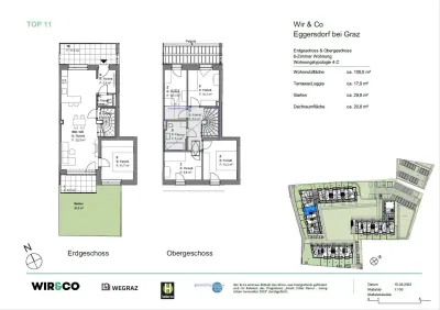
Die angeführte Top 11 verfügt über folgende Raumaufteilung:
Erdgeschoß:
- großer heller Wohn/Essbereich
- 1 Schlafzimmer
- Gäste WC
- 2 Terrassen
- Gartenanteil
Obergeschoß:
- 4 Schlafzimmer
- Bad mit Badewanne und WC
- 1 Terrasse
- Dachraumfläche 20,70 m² „nicht als Wohnraum nutzbar“ .
Pläne
Anbieter kontaktieren
Weitere Objekte in diesem Projekt
Bauprojekt Eggersdorf bei Graz - 3-Zimmer-Wohnung - Top 33
Wohnfläche
Zimmer
Kaufpreis
Bauprojekt Eggersdorf bei Graz - große 2-Zimmer-Wohnung - Top 32
Wohnfläche
Zimmer
Kaufpreis
Bauprojekt Eggersdorf bei Graz - 4-Zimmer-Maisonette - Top 30
Wohnfläche
Zimmer
Kaufpreis
Bauprojekt Eggersdorf bei Graz - 6-Zimmer-Maisonette - Top 28
Wohnfläche
Zimmer
Kaufpreis











