Beschreibung
Willkommen in Ihrem neuen Zuhause im malerischen Salzburg! Diese charmante Wohnung in der begehrten Lage bietet Ihnen nicht nur eine erstklassige Wohnqualität, sondern auch alles, was das Herz begehrt.
Diese geförderte Wohnung in Salzburg verbindet urbanes Leben mit einem hohen Maß an Lebensqualität. Hier wohnen Sie in einer der schönsten Städte Österreichs, die für ihre Kultur, Geschichte und atemberaubende Landschaft bekannt ist.
Als BewerberIn für eine geförderte Eigentumswohnung oder Baurechtseigentumswohnung in unserem Projekt in Gneis müssen Sie…
- das 18. Lebensjahr vollendet haben
- Österreichische/r Staatsbürger*in oder EWR- oder Schweizer Bürger*in mit einer Bescheinigung des Daueraufenthaltes für EWR- oder Schweizer Bürger*innen gemäß § 53a Niederlassungs- und Aufenthaltsgesetz NAG oder Drittstaatsangehörige mit unbefristetem Aufenthaltstitel oder asylberechtigt mit einem unbefristeten Asylbescheid sein
- förderungswürdig im Sinne des aktuellen Salzburger Wohnbauförderungsgesetzes sein
- als Eigentümer*in die Wohnung selbst als Hauptwohnsitz nutzen.
Sie haben Interesse an einer geförderten Wohnung? 
Kontaktieren Sie noch heute Ihre Ansprechpartnerin Frau Mag. (FH) Sonja Kopf - Tel.: +43 676 3461600; E-Mail: gneis@hoe.at
Visualisierungen: © R.Flenreisz / Heimat Österreich / Strobl Architekten / Harder Spreyermann Architekten / Frötscher Lichtenwagner Architekten / Carla Lo
Noch nichts gefunden? Wir informieren Sie über geeignete Immobilienangebote noch vor allen anderen.
Legen Sie jetzt Ihren individuellen Suchagenten unter folgendem Link an. Wir schicken Ihnen passende Immobilien exklusiv vorab zu.
Suchagent anlegen - https://heimat-oesterreich.service.immo/registrieren/de
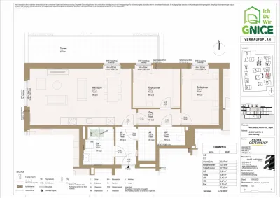
Pläne
Lagebeschreibung
Das im Süden von Salzburg entstehende Wohnbauprojekt GNICE in der Gneisfeldstraße (Stadtteil Gneis) ist in vielerlei Hinsicht beispielgebend und zukunftsweisend. Für die Bewohner*innen bietet es eine Wohnqualität und ein Wohnerlebnis, wie es nicht leicht zu finden ist. Mit GNICE entsteht ein kleines Dorf mitten in der Stadt mit einer hervorragenden Infrastruktur. In unmittelbarer Nähe findet sich alles, was für das tägliche Leben benötigt wird. Die Innenstadt von Salzburg ist in ca. 10 Minuten erreichbar. Mit dem nahegelegenen Eichetwald liegt das Naherholungsgebiet direkt vor der Haustür. Die sonnige Lage bietet nahezu von jeder Wohnung aus einen besonders schönen Ausblick – ob in die Berge, ins Grüne oder zur Festung Hohensalzburg.
 
                                     
                             
                            





