Beschreibung
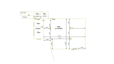
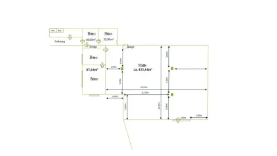
Halle: ca. 435,48m²
Parkplätze: vor der Halle möglich
Vorzüge: beheizte, großzügige Halle mit LKW- Zufahrtsmöglichkeit bzw. 2 Einfahrtstore (5 Meter und 4 Meter breit)
Mietvertragsdauer: nach Absprache auch länger möglich
Energieausweis: D - 128,6 kWh/m²a (Halle)
Nettomonatsmiete: € 2.612,88 exkl. Ust./ Netto-Betriebskosten: € 653,22 exkl. Ust.
Nettomonatsmiete inkl. Netto- BK: € 3.266,10 exkl. Ust.
Bruttomonatsmiete: € 3.919,32 inkl. Betriebskosten, Heizkosten und Ust.
Provision: 3 Bruttomonatsmieten zzgl. 20% Ust.
Nur wenige Fahrminuten von der Süd-Autobahn-Ab.- bzw. Auffahrt Laßnitzhöhe (ca. 5 Fahrminuten) befindet sich die stätig modernisierte Betriebsliegenschaft, die auch mit öffentlichen Verkehrsverbindungen (Bus) erreichbar ist und die in Ziegelmassivbauweise bzw. mit Betonelementen errichtet wurde.
Dank der Widmung I1 (Industriegebiet 1) gibt es viele Möglichkeiten für ein zukünftiges Gewerbe und es gäbe auch die Möglichkeit, die Hallen zu unterteilen. Die 5 Meter und 4 Meter breiten Garagentore der Halle sind elektr. zu öffnen und die Halle ist beheizt, somit wäre eine Lagerung von heiklen Materialien auch möglich. Im Gewerbepark sind schon etliche Betriebe ansässig und für Kunden oder Mitarbeiter gibt es direkt vor der Halle Parkplatz- Möglichkeiten. Im jeden Gebäude sind mehrere Toiletten vorhanden, die natürlich mit benutzt werden dürfen.
Der Gewerbepark ist durch ein riesiges, elektrisches Einfahrtstor gesichert, das an Werktagen geöffnet ist und der zukünftige Mieter hat per Handysteuerung eine Zugangsmöglichkeit zu jeder Tag und Nachtzeit. Sowohl im Einfahrtsbereich wie auch bei der Zufahrt der Halle ist genügend Platz für LKW- Verkehr.
Hervorzuheben sind die großen Fensterflächen, das repräsentative Erscheinungsbild und die moderne Architektur, die zugleich für eine angenehme Arbeitsatmosphäre wie auch für einen professionellen Ersteindruck Ihrer Firma sorgen.
Zu erwähnen ist auch, dass in den Betriebskosten folgende Punkte inkludiert sind: Betriebskosten, Heizkosten, Gebäudeversicherung, Schneeräumung
Der Mietpreis der Halle beträgt € 6.-- pro m² (exkl. BK und exkl. Ust.) Die Betriebskosten belaufen sich auf €1,50 pro m² (exkl. Ust.).
Außerdem gäbe es die Möglichkeit 4 Büroräume mit insgesamt 109m² zu mieten, die Büros sind neu renoviert worden (neu verfliest, neue Decke mit integrierten LED Panels). Sowohl die Halle wie auch die Büros sind von außen getrennt begehbar und im Innenbreich wurde bei der Planung darauf geachtet, dass eine Abtrennung jederzeit möglich ist.
Der Mietpreis der Büros beträgt € 7.-- pro m² (exkl. BK und exkl. Ust.) Die Betriebskosten belaufen sich auf € 2.-- pro m² (exkl. Ust.).
Entfernungen:
ca. 200 Meter- Bushaltestelle, öffentl. Verkehrsanbindung
ca. 1,1 Kilometer- Gasthaus mit Hotelzimmer
ca. 1,8 Kilometer- Zentrum Laßnitzhöhe, Cafe, Post, Bank, Supermarkt, Ärzte, Apotheke, uvm.
ca. 3,9 Kilomter- Autobahnauffahrt A2 Laßnitzhöhe
ca. 20,2 Kilometer- Graz Autobahnabfahrt Graz-Ost/ Merkur Arena
Gerne lade ich Sie zu einer unverbindlichen Besichtigung ein, bitte kontaktieren Sie mich unter der Telenr.: 0664 2021481 oder gosch@immoterra.at
Wir weisen darauf hin, dass zwischen dem Vermittler und dem zu vermittelnden Dritten ein familiäres oder wirtschaftliches Naheverhältnis besteht.
Der Vermittler ist als Doppelmakler tätig.
Pläne

















