Beschreibung
Die Immobilie
Eine Rarität, wie sie nur selten auf dem Immobilienmarkt zu finden ist. Eine bestandsfreie Villa in bester Badener Wohnlage, auf einem wunderbaren, parkähnlichen Grundstück, gelangt im Rahmen eines zweistufigen Bieterverfahrens zum Verkauf. Die Liegenschaft befindet sich im Stadtzentrum von Baden, etwas mehr als 500 m vom Josefsplatz und der Fußgängerzone entfernt. Das ursprünglich als Wohnhaus konzipierte Villengebäude wurde die letzten Jahre als Büro verwendet und verfügt über ein Gartenhaus im rückwärtigen und eine großzügig dimensionierte Garage im seitlichen Grundstücksbereich.
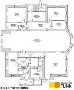
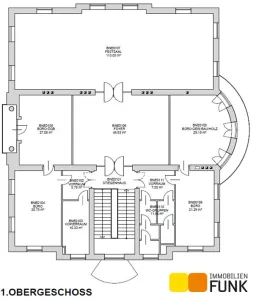
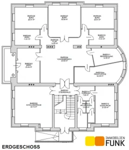
Das Grundstück, auf dem sich das wunderbare, 3-geschossige Haus befindet, ist ca. 3.006 m² groß. Die Nutzfläche der Villa von etwa 911,97 m² teilt sich auf wie folgt:
- im Kellergeschoss: ca. 293,19 m²
- im Erdgeschoss: ca. 317,07 m²
- im 1. Obergeschoss: ca. 301,71 m².
Die Nutzfläche des zu sanierenden Gartenhauses beträgt ca. 107,52 m², jene des Garagengebäudes etwa 136,70 m²
Die Villa selbst wurde gemäß §2 Abs 1 Z1 Denkmalschutzgesetz unter Schutz gestellt, da der aktuelle Eigentümer eine Körperschaft öffentlichen Rechts ist. Sollte die Liegenschaft an einen Dritten, also eine Körperschaft des Privatrechtes oder natürliche Person veräußert werden, gibt es Annahmen, dass der Denkmalschutz für die Villa aufgehoben werden könnte und es dann durch den aktuell verordneten Denkmalschutz für die Villa nicht zu einer Beeinträchtigung der (künftigen) Nutzung der Liegenschaft kommen wird.
Infrastruktur und Umgebung
Die Bezirkshauptstadt Baden, im sogenannten „Speckgürtel“ Wiens, der die einkommensstarken und bildungsaffinen Regionen rund um die Bundeshauptstadt bezeichnet, liegt etwa 25 km von der Stadtgrenze und ca. 38 km vom Stadtzentrum Wiens (Stephansplatz) entfernt. Die Liegenschaft Elisabethstraße 38 befindet sich etwa 550 m vom Josefsplatz und dem Zugang zur Fußgängerzone mit einem umfassenden Angebot an Einkaufsmöglichkeiten, Arztpraxen, Restaurants und Apotheke, entfernt. Die nächstgelegenen Supermärkte (Spar, Penny) befinden sich in Gehweite.
Baden trägt wohl zu Recht die Bezeichnung „Schulstadt“. Es sind u.a. zwei Bundes- und Bundesrealgymnasien, Handelsschule und Handelsakademie, HTL, HBLA f- wirtschaftliche Berufe, Bundesinstitut für Sozialpädagogik sowie eine Vielzahl an öffentlichen und privaten Volksschulen und Kindergärten angesiedelt.
Die Verkehrsanbindung könnte kaum besser sein. Über den Bahnhof Baden (mit Park & Ride Anlage) ist Baden etwa durch die Züge S1, S2, S3, S4 und unterschiedliche R und REX-Linien sehr gut angebunden. Insgesamt verkehren 4 Stadtbuslinien innerstädtisch und nicht weniger als 26 regionale Buslinien vernetzten Baden mit dem Umland.
Die Anbindung für den Individualverkehr ist durch die Auffahrt auf die nur 4 km entfernte Auf-Abfahrt „Baden“ der A2 Südautobahn und über die Bundesstraßen 17 und 210 ausgezeichnet.
Das Bieterverfahren
Die Vermittlung erfolgt im Rahmen eines zweistufigen Bieterverfahrens, das von Schramm Öhler Rechtsanwälte GmbH im Auftrag der Verkäuferin durchgeführt wird. Anbote, die unter dem Mindestkaufpreis liegen, werden nicht berücksichtigt.
Alle Details zur Liegenschaft erfahren Sie von Immobilien Funk, Georg Flödl, MA MRICS und Walter Mitterstöger, MA.
Noch nichts gefunden? Wir informieren Sie über geeignete Immobilienangebote noch vor allen anderen.
Legen Sie jetzt Ihren individuellen Suchagenten unter folgendem Link an. Wir schicken Ihnen passende Immobilien exklusiv vorab zu.
Suchagent anlegen - https://funk.service.immo/registrieren/de
Der Vermittler ist als Doppelmakler tätig.
Informationen und Besichtigungen
Herr Prok. Walter Mitterstöger, MA steht Ihnen gerne telefonisch unter +43 1 533 46 44-1 oder per E-Mail unter walter.mitterstoeger@funk.at zur Verfügung.
Immobilien Funk.success in real estate
Pläne
Lagebeschreibung
Stadtzentrum Baden






















