Beschreibung
Im Falle der Notwendigkeit einer Fremdfinanzierung Ihrer Wunschimmobilie ermittelt unser Wohnbau-Finanzierungsexperte gerne die optimale Finanzierungslösung und findet das passende Zins- und Konditionsangebot für Sie. Er vergleicht die aktuellen Angebote aller relevanten Banken und Bausparkassen. Der Angebotsvergleich kann aus einem Portfolio von über 120 Banken erfolgen. Das Erstgespräch ist für Sie kostenfrei und unverbindlich, gerne auch bei Ihnen vor Ort. So sparen Sie Ihre wertvolle Zeit und erhalten eine professionelle und unabhängige Finanzierungslösung vom Spezialisten. Sprechen Sie uns wegen eines Termins gerne an!
Zum Verkauf gelangt ein bestandsfreies Seitenflügel-Zinshaus aus der Gründerzeit in guter Lage im 16. Wiener Gemeindebezirk.
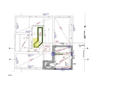
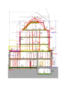
Erbaut wurde die Immobilie zwischen 1848 und 1918 und hat zum momentanen Zeitpunkt zwei Stockwerke auf einer Grundstücksfläche von ca. 271 m2.
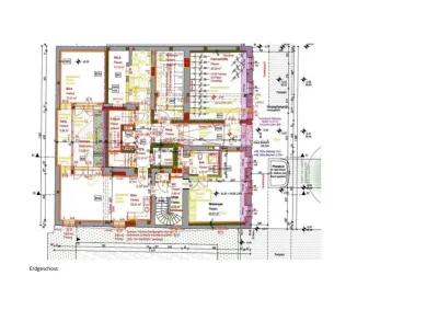
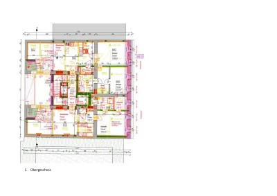
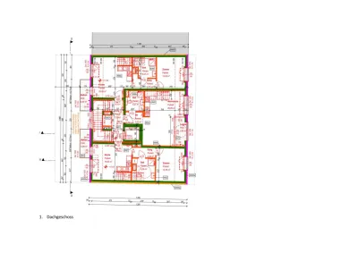
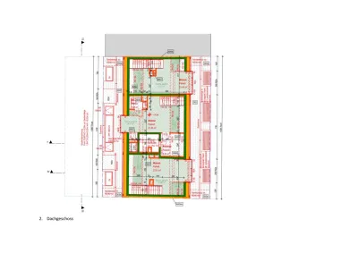
Ein Ausbau des Rohdachbodens wurde bereits baubewilligt, die Baugenehmigung zur Abtragung der bestehenden Dachkonstruktion und den Ausbau des Dachgeschosses liegt bereits vor. Sie ermöglicht eine Aufstockung um zwei weitere Festgeschosse, sowie zwei Dachgeschosse. Durch den Um- und Ausbau würde sich eine Wohnnutzfläche von insgesamt ca. 767,76 m2 ergeben. Für alle Wohnungen sind Außenflächen in Form von Balkon, Terrasse oder Loggia geplant. Ebenso kann laut Einreichplan ein neues und barrierefreies Treppenhaus mit Personenlift, der im Innenhof vom Erdgeschoss bis ins Dachgeschoss führen soll, errichtet werden. Weiteres sind ein Kinderwagen- und Fahrradabstellraum im Innenhof geplant. Auf dem Dach ist eine Photovoltaikanlage mit 18 Modulen vorgesehen.
Im Erdgeschoss besteht die Möglichkeit der Errichtung von Büroräumlichkeiten.
Die Lage der Immobilie ist sowohl von der Wohnatmosphäre, als auch von der Infrastruktur her ausgezeichnet. Das Gründerzeit-Zinshaus befindet sich in einer ruhigen Wohngegend, welche in den letzten Jahren viel Potential dazu gewonnen hat. Viele Restaurants, Cafés, Bars, sowie Geschäfte des täglichen Bedarfs sind in unmittelbarer Nähe und fußläufig erreichbar. Ebenso sind U-Bahnen, Autobusse und Straßenbahnen nur wenige Gehminuten entfernt.
Zur Erholung bietet sich der nahe gelegene Wilhelminenberg, der einen traumhaften Blick über Wien bietet und in mitten von Weinbergen liegt, an.
Gerne lassen wir Ihnen bei ernsthaftem Interesse - vor Kaufanbotlegung - weitere vertraulichen Dokumente zu dieser Liegenschaft zukommen, welche nicht veröffentlicht werden dürfen.
Überzeugen Sie sich selbst von diesem überaus attraktiven Objekt. Für Besichtigungen und nähere Informationen stehen wir Ihnen gerne zur Verfügung!
Mag. Viola Wasmuth
national - Tel: 0670 4039361
international - Tel: +43 670 4039361
e-mail: wasmuth@lifestyle-properties.at
Wir weisen darauf hin, dass zwischen dem Vermittler und dem zu vermittelnden Dritten ein familiäres oder wirtschaftliches Naheverhältnis besteht.
Der Vermittler ist als Doppelmakler tätig.
Pläne

























