Beschreibung
Zur Vermietung gelangt ein branchenfreies Geschäftslokal im 3. Bezirk welches derzeit als Textilreinigungsgeschäft betrieben wird.
Das Lokal kann sowohl mit den Geräten der Textilreinigung übernommen, als auch leer übergeben werden.
Nach Absprache mit dem Eigentümer ist auch eine andere Nutzung möglich.
Bei Gastronutzung muss dafür eine straßenseitige Lüftung eingebaut werden.
Keine ABLÖSE, die Befristung ist verhandelbar. Ein Schanigarten vor dem Lokal ist ebenfalls möglich.
Ausstattung:
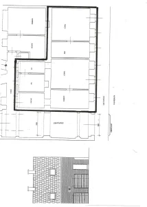
- ca. 95m² Nutzfläche
- Fliesenböden
- Gastherme
- WC
- große straßenseitige Fensterflächen für gute Sichtbarkeit
- dzt. vollausgestattete Textilreinigung (Waschmaschinen, Garderobe, Bügelstation, ..), kann aber auch leer übergeben werden!
Mietvertrag:
Der Mietvertrag wird befristet auf 15 Jahre abgeschlossen. Die mtl. Miete beträgt dzt. 2.616 € inkl. BK und USt.
Kaution: 3BMM.
Die Angaben zu dieser Immobilie wurden uns vom Eigentümer zur Verfügung gestellt und sind ohne Gewähr.
Wir weisen auf Ihre 14-tägige Rücktrittsfrist (gemäß § 11 FAGG ) hin.
Um Ihre Rechte zu wahren, können nur Anfragen mit vollständigen Kontaktdaten (Name, Adresse, Telefon, Email)
beantwortet werden.
Vor Ablauf der 14-tägigen Rücktrittsfrist werden wir gerne für Sie tätig, wenn Sie gesetzeskonform (FAGG) uns
ausdrücklich (am einfachsten per E-Mail) dazu auffordern.
Wenn der Kauf-/Mietvertrag nicht zustande kommt, bleibt unsere Tätigkeit für Sie vollkommen kostenlos.
Wir informieren Sie darüber, dass wir bei diesem Objekt eine Doppelmaklertätigkeit ausüben. (§ 5 Abs. 3 MaklerG)
Der Honoraranspruch entsteht mit der Rechtswirksamkeit des vermittelten Geschäfts (Unterschrift Kauf/Mietanbot)
Es besteht kein Anspruch auf einen Vorschuss § 7(1).
Der Honoraranspruch und der Anspruch auf den Ersatz zusätzlicher Aufwendungen werden mit Ihrer Entstehung fällig
(§ 10)
AUF GRUND DER NEUEN DATENSCHUTZGRUNDVERORDUNG KÖNNEN WIR NUR MEHR SCHRIFTLICHE ANFRAGEN
BEARBEITEN!!
Der Vermittler ist als Doppelmakler tätig.
Pläne











