Beschreibung
IHR PERFEKTER FIRMENSTANDORT
Zur Vermietung gelangt eine sehr hochwertig ausgestattete Kombination aus Büro und Lagerhalle in der Nähe der U6-Perfektastraße im Gewerbegebiet Liesing.
Das Objekt ist aktuell noch vermietet und nach Vereinbarung beziehbar. Die Einheit wurde sehr hochwertig mit schönen Fliesen im Foyer sowie mit schönem Laminat in den Büros ausgestattet. Ebenfalls steht eine mit Kühlschrank und Mikrowelle ausgestattete Teeküche zur Verfügung.
Beheizt wird das gesamte Objekt (Büro + Halle) mittels Fernwärme. Die Kosten werden nach tatsächlichem Verbrauch abgerechnet.
Aktuell ist die gegenständliche Einheit Top 6 mit der Nachbareinheit Top 1 über eine Verbindungstüre verbunden, kann weiterhin gemeinsam angemietet werden und weist nachfolgende Gesamtflächen auf:
Top 1:
Büro: 116,36 m²
Halle: 95,44 m²
Gesamt: 211,80 m²
Top 6:
Büro: 142,69 m²
Halle: 116,35 m²
Gesamt: 259,04 m²
Gesamtnutzfläche Top 1+6 zusammengelegt:
Büro: 259,05 m²
Halle: 211,79 m²
Gesamtnutzfläche: 470,84 m²
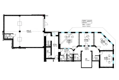
Der Grundriss der Top 6 im Überblick:
- Foyer
- WC-Herren
- WC-Damen
- Teeküche
- Büro 1 (28,95 m²)
- Büro 2 (18,16 m²)
- Büro 3 (23,24 m²)
- Büro 4 (20,00 m²)
- Innenliegender Besprechungsraum
- Serverraum
Die Kosten der Top 6 im Überblick:
- Miete Büro + Lager: € 2.850,- netto pro Monat
- Miete 2 PKW-Stellplätze: € 120,- netto pro Monat
- Betriebskosten + Heizkosten Akonto: € 520,- netto pro Monat
- Gesamt: € 3.490,- netto pro Monat
- Kaution: 6 Bruttomonatsmieten (per Überweisung oder mittels Bankgarantie)
PKW-Stellplätze: 2 Stk. verpflichtend anzumieten á € 60,00 netto (weitere Stellplätze auf Anfrage verfügbar)
Bei den Fotos handelt es sich teilweise um Symbolfotos der identisch ausgestatteten Nachbareinheit!
VIRTUELLE BESICHTIGUNG der Top 1:
https://my.matterport.com/show/?m=Sm6w3UKQ2J4
(Link bitte kopieren und in Ihren Browser einfügen)
VIRTUELLE BESICHTIGUNG der Top 6:
https://my.matterport.com/show/?m=pCYqemM46T7
(Link bitte kopieren und in Ihren Browser einfügen)
"ÜBERZEUGEN SIE SICH SELBST! ANSEHEN LOHNT SICH!"
Für weitere Details bzw. für einen Besichtigungstermin stehe ich Ihnen gerne jederzeit unter 0660/37 99 66 1 zur Verfügung.
Besuchen Sie auch meine Homepage unter www.real-construct.at für weitere Angebote!
Hinweis gemäß Energieausweisvorlagegesetz: Ein Energieausweis wurde vom Eigentümer bzw. Verkäufer, nach unserer Aufklärung über die generell geltende Vorlagepflicht, sowie Aufforderung zu seiner Erstellung noch nicht vorgelegt. Daher gilt zumindest eine dem Alter und der Art des Gebäudes entsprechende Gesamtenergieeffizienz als vereinbart. Wir übernehmen keinerlei Gewähr oder Haftung für die tatsächliche Energieeffizienz der angebotenen Immobilie.
Pläne
Lagebeschreibung
Nähe U6 Station Perfektastraße. Verkehrsanbindung: U-Bahnlinie U6, Buslinie 61A, 64A Die Anbindung an das öffentliche Verkehrsnetz ist durch die U6 und zahlreiche Buslinien sowie ein in der Nähe befindliches Park- and Ridehaus optimal. Die Wiener Außenringautobahn A21 und Südautobahn A2 sind in nur wenigen Minuten erreichbar.













