Beschreibung
Um die Bürofläche online zu begehen, öffnen Sie bitte den 360° Rundgang.
Zur Vermietung gelangt eine Bürofläche gegenüber vom Bezirksgericht Innere Stadt und Bahnhof Wien-Mitte.
In direktem Umfeld ist somit beste Infrastruktur gegeben - Einkaufsmöglichkeiten, Restaurationsbetriebe und beste Anbindung an das öffentliche Verkehrsnetz sind hier selbstverständlich.
Diese Einheit befindet sich im Hochparterre und ist NICHT barrierefrei zu erreichen.
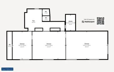
Auf einer Fläche von ca. 135 m² werden folgende Räumlichkeiten geboten:
- Eingangsbereich mit Vorzimmer
- 3 große Zimmer ca. 46,3 m², 37 m² und 21,5 m²
- Teeküche ca. 6 m²
- Abstellraum ca. 5,2 m²
- 2 Toiletten
Die Beheizung erfolgt mittels Gasetagenheizung.
Die Boden der Bürofläche sind mit Linoleum versehen.
Die Einheit ist kurzfristig beziehbar und es wird ein unbefristeter Vertrag mit 2 Jahren Kündigungsverzicht angeboten.
Wir weisen darauf hin, dass zwischen dem Vermittler und dem zu vermittelnden Dritten ein familiäres oder wirtschaftliches Naheverhältnis besteht.
Der Vermittler ist als Doppelmakler tätig.
Pläne
Lagebeschreibung
Untere Viaduktgasse/ Marxergasse














