Beschreibung
Besuchen Sie die Rubrik "Neubauprojekte" auf ausgewählten Immobilienplattformen für einen Überblick der aktuell noch verfügbaren Wohneinheiten.
Nur Hauptwohnsitz möglich!
DAS MAITZ HAUS bietet ab Herbst 2023 neue Mietwohnungen, die ein modernes Lebensgefühl mit dem Charme der Altstadt von Bad Radkersburg verbinden.
- Barrierefrei mit Lift
- Kostenloses Wlan, eigener Glasfaseranschluss möglich
- Nachhaltiges Heizsystem mit Solartechnik, umschaltbar auf Klimatisierung im Sommer
- Hochwertige DAN Einbauküche im Mietzins enthalten
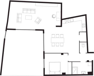
Drei zusammenhängende Gebäude bieten Raum für 16 Wohnungen mit einer Wohnfläche zwischen 35m² und 95m² im 1. und 2. Obergeschoss mit Lift. Jede Wohneinheit verfügt über einen einzigartigen Charakter, die diversen Grundrisse samt Übersicht finden Sie in der Bildergalerie. Im Erdgeschoss des Hauses befinden sich 9 KFZ Stellplätze, ab 90,- Euro p.m., die je nach Verfügbarkeit zusätzlich gemietet werden können.
- Top 02, 1.OG, 89m² Wfl. 3 Zimmer, 45m² Dachterrasse, Bruttomiete inkl. Betriebs- und Heizkosten: 1.343,53 Euro
Optional kann die Wohnung später um 50m² vergrößert werden, um die Wohnung beispielsweise um ein Homeoffice, ein weiteres Badezimmer und bis zu 2 Schlafzimmer zu erweitern.
Der Immobilienmakler erklärt, dass er – entgegen dem in der Immobilienwirtschaft üblichen Geschäftsgebrauch des Doppelmaklers – einseitig nur für den Vermieter tätig ist.
Pläne
Lagebeschreibung
Bad Radkersburg liegt in der südlichen Steiermark, nur rund eine Stunde Fahrtzeit entfernt von Graz und Maribor. Die Kleinstadt überzeugt vor allem mit ihrem südländischen Flair, zahlreichen Geschäften und Gastronomien. Die zentrale Lage des MAITZ HAUS am Hauptplatz bietet einen urbanen Komfort. Nahversorger, Gastronomie und die Parktherme sind fußläufig und mit dem Fahrrad in kurzer Zeit sehr gut erreichbar. Die nahgelegene Mur- Au laden zum täglichen Sporteln ein. Ganz in der Nähe, am Grazertorplatz 15, bietet ZOWN einen CoWorking Space an, wo Arbeitsplätze gemietet werden können. Ob Stadtmensch, Landliebhaber:in, jung oder jung Gebliebene, Familie, Pärchen oder Single: DAS MAITZ HAUS bietet für jeden das passende Zuhause
Anbieter kontaktieren
Weitere Objekte in diesem Projekt
"Das Maitz Haus" 89m² Mietwohnung Top 2 mit 45m² Terrasse
Wohnfläche
Zimmer
Bruttomiete
"Das Maitz Haus" 3 Zimmer-Mietwohnung Top 11 mit Balkon
Wohnfläche
Zimmer
Bruttomiete













