Beschreibung
Willkommen in Hofamt Priel!
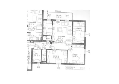
Unsere schöne 4 Zimmerwohnung bietet ca. 79m² Wohnfläche, einen Balkon mit ca. 9m² und einen hauseigenen Schwimmteich direkt vor der Türe. Hier erlebt man Urlaubsfeeling Tag für Tag!
Vom geräumigen Wohnzimmer gelangt man auf den herrlichen Balkon. Hier lässt es sich optimal entspannen oder das Sonntagsfrühstück mit der Familie genießen. Besonders toll ist hier auch der Blick ins Grüne.
Die Küche ist separat angelegt und befindet sich gleich neben dem Wohnzimmer.
Alle Schlaf- bzw. Kinderzimmer sind über das Wohnzimmer aus begehbar.
Das Badezimmer verfügt über ein Fenster, ist modern verfliest und mit einer Badewanne ausgestattet! Des Weiteren befinden sich ein Handwaschbecken und ein Waschmaschinenanschluss im Bad.
Das WC ist separat angelegt und ebenfalls modern verfliest.
Ein Abstellraum ist auch mit dabei und sorgt für extra Stauraum.
In den Wohnräumen wurden hochwertige Parkettböden verlegt.
Die kontrollierte Wohnraumlüftung sorgt für angenehmes Raumklima.
Ein Kellerabteil rundet das Wohnungsangebot perfekt ab.
Aber auch für Ihren PKW ist mit einem Abstellplatz gesorgt (Kaufpreis € 10.000,--)
Ein Extra Zuckerl bei dieser Wohnung ist jedoch der hauseigene Schwimmteich (eingezäunt) gleich vor der Haustüre!
Die Kinder werden sich über den schönen Spielplatz, gleich neben dem Schwimmteich, freuen.
Die wunderschöne Natur lockt Groß und Klein ins Freie.
Der Kindergarten ist nur wenige Gehminuten von der Wohnung entfernt. Im Nachbarort befinden sich zahlreiche weitere Bildungseinrichtungen.
Nach ca. 22 Autominuten erreicht man Melk.
Kaufpreis Wohnung: € 150.974,--
Kaufpreis Stellplatz: € 10.000,--
Bezug: ab sofort
Energiekennzahlen: Laut Energieausweis vom 18.8.2020 beträgt der Heizwärmebedarf 43,29 kWh/m²a Klasse B und der Gesamtenergieeffizienz-Faktor 1,18 Klasse C.
Nutzen Sie die Gelegenheit, in diese wunderschöne Wohnung in Hofamt Priel zu investieren. Hier finden Sie nicht nur ein neues Zuhause, sondern auch einen Ort, der Lebensqualität und Wohlbefinden vereint. Ihr neues Zuhause wartet auf Sie!
Noch nichts gefunden? Wir informieren Sie über geeignete Immobilienangebote noch vor allen anderen.
Legen Sie jetzt Ihren individuellen Suchagenten unter folgendem Link an. Wir schicken Ihnen passende Immobilien exklusiv vorab zu.
Suchagent anlegen - https://heimat-oesterreich.service.immo/registrieren/de
Pläne
Lagebeschreibung
Hofamt Priel gehört zum Bezirk Melk, liegt im wunderschönen Waldviertel und am Nordufer an der Donau.




