Beschreibung
Direkt neben dem Hauptplatz der aufstrebenden Gemeinde Alland entsteht in einer ruhigen Gasse eine kleine Wohnhausanlage mit 14 Wohneinheiten.
4 Einfamilienhäuser und 10 Doppelhaushälften bieten mit großzügigen und durchdachten Grundrissen, vor allem Jungfamilien mit großem Platzbedarf, eine ideale Wohnbasis.
Die Häuser werden in Massivholzbauweise errichtet, einem ökologischen und nachhaltigen Baustoff mit hoher Stabilität und hervorragender Wärmedämmung. Durch das Integrieren von Holzelementen an der Vollwärmeschutzfassade wird, neben der Energieeinsparung, auch ein warmes und einladendes Erscheinungsbild geschaffen.
Mögliche Wohnvarianten:
96 m2 – 118 m2 Wohnnutzfläche
4 – 5 Zimmer
Mit Ihrem höchstpersönlichen Wohnbedarf finden wir das für SIE passende Haus!
Die Rasenflächen der Gärten werden besamt. Auf der Terrasse wird auf Wunsch gegen Aufpreis eine Holzpergola errichtet und hiermit ein angenehmer und schützender Außenbereich geschaffen, der Sie den Garten ungestört genießen lässt.
Jeder Wohneinheiten stehen zwei Stellplätze direkt vor dem Haus zur Verfügung.
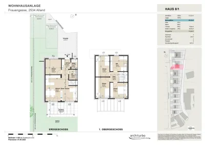
HAUS 8-1 – Doppelhaushälfte
5 Zimmer
101 m2 Wohnnutzfläche
20 m2 Terrasse
84 m2 Gartenfläche
1 Bad
2 WC
S / O / W Ausrichtung
Im Erdgeschoß sind jeweils Vorraum, WC, Technik- und Abstellraum, ein Zimmer sowie eine große Wohnküche mit Ausgang auf die Terrasse und den Garten angeordnet. Im Obergeschoß finden Sie 3 Schlafzimmer sowie ein großzügiges Badezimmer mit WC.
BAUWEISE
Massive Brettsperrholzbauweise auf wärmegedämmter Stahlbetonplatte
Niedrigenergiebauweise mit ökologisch nachhaltigen Baustoffen
Kunststofffenster 3-fach verglast, Uw Glas 0,8 W/m2
Luftwasser Wärmepumpe / Fußbodenheizung
Kontrollierte Wohnraumlüftung
Riesige Terrassen und Eigengärten
ECKDATEN
Belagsfertige Ausführung – Schlüsselfertigstellung gegen Aufpreis möglich
Alle Fenster laut OIB mit elektrischen Raffstores
Stellplatz / E-Auto Ladestation möglich
Bezugsbereit innerhalb von 12 Monaten
Wasseranschlüsse im Außenbereich vorbereitet
LAGE / INFRASTRUKTUR / VERKEHR
Umgeben von den bekannten Orten Heiligenkreuz und Mayerling, eingebettet in der malerischen Landschaft des Wienerwalds sowie kurz vor den Toren Wiens finden Sie hier eine geniale Infrastruktur, der es an nichts fehlt.
Sämtliche Geschäfte des täglichen Bedarfs befinden sich in unmittelbarer Umgebung. Es sind nur kurze Distanzen zu Apotheke, Ärzte, Banken, Gasthäuser sowie zu den Supermärkten BILLA und SPAR.
Öffentliche Anbindung:
Bus 108 - Alland - St. Pölten
Bus 169 – Alland - Wien Hauptbahnhof
Bus 265 – Alland – Gaaden – Hinterbrühl - Mödling
Mit dem Auto gelangen Sie über die Auffahrten Alland bzw. Mayerling auf der A21 nach St. Pölten bzw. Wien .
BILDUNGSEINRICHTUNGEN
Im Ort befinden sich Kindergarten, Volksschule, Neue Mittelschule und Musikschule.
Weiterführende Schulen befinden sich in Baden (Krankenpflegeschule, HBLA, HASCH, HAK) und Sankt Pölten (HASCH, HAK, HTL, HBLA, HTS, Gesundheits- und Krankenpflegeschule, …), welche durch Busverbindungen gut erreichbar sind.
FREIZEIT
In dieser naturnahen Umgebung haben Sie viele Möglichkeiten der Freizeitgestaltung, wie zB Wandern, Laufen, Radfahren, Reiten, etc. Ebenso finden Sie hier zahlreiche lohnende Ausflugsziele, um sich am Wochenende vom Arbeitsalltag zu entschleunigen.
SERVICE
Finanzierungsberatung
Einrichtungsberatung
Nebenkosten:
3,5 % Grunderwerbsteuer, temporäre Gebührenbefreiung* bei dringendem Wohnbedürfnis gemäß § 25a, ansonsten1,1 % Eintragungsgebühr, 1,5 % + 20 % Ust. treuhändische Abwicklung durch die Rechtsanwältin (bei Finanzierung plus 0,5 %) sowie Barauslagen, bei Finanzierung 1,2 % Pfandrechtseintragungsgebühr, 3 % + 20 % Ust. Vermittlungsprovision, WOHNBAUFÖRDERUNG MÖGLICH!
*Wegfall von Grundbuch- und Pfandrechtseintragungsgebühr mit Konjunkturpaket 2024:
Befristete Abschaffung der Grundbuchseintragungs- und Pfandrechtseintragungsgebühr für den Erwerb von Wohnraum. Diese Maßnahme, gültig für zwei Jahre, betrifft die Anschaffung von Eigentum (nur bei Neubauten oder Neuschaffung zur Selbstnutzung) bis zu einem Betrag von jeweils € 500.000. Übersteigt der Betrag diese Grenze, werden die Gebühren bis zu diesem Betrag erlassen. Weitere Voraussetzung für diese Gebührenbefreiung ist die Befriedigung eines dringenden Wohnbedürfnisses.
Wir weisen darauf hin, dass zwischen dem Vermittler und dem zu vermittelnden Dritten ein familiäres oder wirtschaftliches Naheverhältnis besteht.
Der Vermittler ist als Doppelmakler tätig.
Pläne



