Beschreibung
3-Zimmer-Wohnung mit großer Terrasse
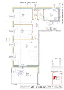
Top A5: 3 Zimmer | 89 m² WFL | 22 m² Terrasse | Kaufpreis:€ 420.000,-
In dieser großzügigen 3-Zimmer-Wohnung erwartet Sie ein durchdachter Grundriss mit offenem Wohn-/Essbereich, zwei Schlafzimmern sowie einem modernen Badezimmer mit getrenntem WC.
Die rund 22 m² große Terrasse bietet Ihnen ausreichend Platz für gemütliche Stunden im Freien – mit Ausblick auf die Kärntner Bergwelt inklusive.
Highlights:
✔ Großzügige Fensterfronten
✔ Ruhige Lage im 1. Obergeschoss
✔ Lift und Tiefgarage
✔ Barrierefrei erreichbar
Pläne
Lagebeschreibung
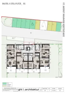
Im Herzen der Gemeinde Lendorf, bei Spittal an der Drau, entsteht ein familienfreundliches Wohnbauprojekt. Aufgrund der ruhigen Lage, gepaart mit traumhafter Naturkulisse und herrlichem Panoramablick auf die umliegende Bergwelt, entstehen 4 Wohnhausanlagen mit jeweils 14 Eigentumswohnungen. Die Wege für alltägliche Erledigungen und Versorgungen sind kurz. Auch Banken, Kindergärten, Schulen, Spielplätze und Hausärzte sorgen für eine hohe Lebensqualität auf dem Land. Die Gemeinde Lendorf liegt im Landkreis Lurnfeld und reicht bis an die Bezirkshauptstadt Spittal an der Drau. Durch die sehr zentrale Lage und die angrenzende Drautal Straße (B 100), sowie die Tauern Autobahn (A 10), gelangen Sie in nur wenigen Autominuten an Ihr Ziel. Lendorf ist eine aufstrebende, familienfreundliche Gemeinde, die einiges zu bieten hat. Sowohl kulturhistorisch - im Ortsteil Feicht befindet sich die römische Ausgrabungsstätte Teurnia mit Museum - als auch mit Freizeitaktivitäten punktet die Gemeinde Lendorf. Es gibt einen Reiterhof, einen Wasserskiclub, der Draupaddelweg ist quasi ums Eck und sogar der Kärntner Pilgerweg führt hier vorbei. Auch das Naturjuwel der Alpen - der Millstätter See - ist über einen gut ausgebauten Radweg leicht erreichbar. Aufgrund der guten Infrastruktur können Sie die nahen gelegenen Bus- und Bahnstationen bequem zu Fuß erreichen. Auf den Hausberg „Gmeineck“ können Sie im Sommer wandern oder im Winter Skitouren gehen. Golf spielen, mit der Aussicht auf den Millstätter See, Radfahren, oder schwimmen im Naturjuwel. Skifahren am Hausberg der Spittaler „Sportberg Goldeck“, in nur wenigen Autominuten von Lendorf entfernt, dieses Angebot können Sportbegeisterte und Naturliebhaber in vollen Zügen genießen.
Anbieter kontaktieren
Weitere Objekte in diesem Projekt
LENDORF 3.0 - Das größte Penthouse im Projekt (A12)
Wohnfläche
Zimmer
Kaufpreis
LENDORF 3.0 - Perfekt geschnitten für zwei (A11)
Wohnfläche
Zimmer
Kaufpreis
LENDORF 3.0 - Kompakt und komfortabel (A10)
Wohnfläche
Zimmer
Kaufpreis
LENDORF 3.0 - Penthouse mit Bergblick (A9)
Wohnfläche
Zimmer
Kaufpreis











