Beschreibung
Zur unbefristeten Anmietung gelangt das ebenerdige Geschäftslokal auf der Hernalser Hauptstraße:
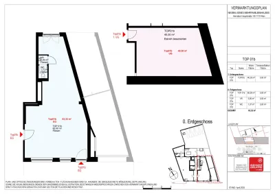
- 63,32 m² Geschäftsfläche + 40,30 m² Lager im Kellergeschoss
- großzügige Portalverglasung mit Sonnenschutzglas
- Div. Büroräume, Nebenräume, Sanitärräume laut beil. Plan
- Beläge: Marazzi Fliesen
- Fußbodenheizung
- Kühlung mittels Fan Coils
- Teeküchenanschluss vorhanden
Wärme-/Kältekosten-Direktverrechnung erfolgt durch die Fa. TECHEM!
Derzeitige mtl. Akontobeträge pro m² NFL brutto:
- BK-Heizung: € 1,20/qm
- BK-Warmwasser: € 0,25/qm
- BK-Kaltwasser: 0,30/qm
Gerne übermitteln wir Ihnen auf Anfrage weitere Detailunterlagen!
Bitte haben Sie Verständnis dafür, dass die Nutzflächen durch Anpassung der Polierplanung noch geringfügig abweichen können.
Pläne
In der Umgebung
Bus
1km
U-Bahn
1km
Straßenbahn
1km
Bahnhof
1km
Autobahnanschluss
4km
Supermarkt
1km
Bäckerei
1km
Einkaufszentrum
1km
Arzt
1km
Apotheke
1km
Klinik
1km
Krankenhaus
2km
Schule
1km
Kindergarten
1km
Universität
2km
Höhere Schule
2km
Bankomat
1km
Bank
1km
Post
1km
Polizei
1km
Quelle: OpenStreetMap / Entfernungsangaben Luftlinie








