Beschreibung
Moderne Büroflächen im IZ-NÖ Süd - Starten Sie hier Ihr Business!
Das moderne Büro- und Lagerobjekt befindet sich in einem der bedeutendsten Wirtschaftsballungszentren im Süden von Wien- dem IZ-NÖ Süd (Industriezentrum Niederösterreich Süd). Das großzügige Betriebsareal entlang der Triester Straße ist von weitem gut sichtbar und ermöglicht damit auch Ihrem neuen Unternehmensstandort eine gute Visability.
Derzeit stehen die folgenden Büroflächen zur Verfügung, wobei jeweils der vermieterseitige Umbau/Anpassung an Raumkonfiguration des zukünftigen Mieters möglich ist:
> 3.OG: ca. 268,05 m² -> verfügbar
> 2.OG: ca. 409,45 m² -> verfügbar
> 3.OG: ca. 192,09 m² -> verfügbar
> 3.OG: ca. 192,19 m² -> verfügbar
> 4.OG: ca. 268,46 m² -> verfügbar
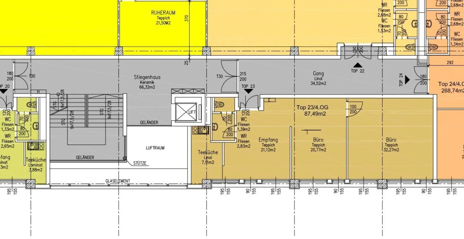
> 4.OG: ca. 87,49m² -> verfügbar
Raumplanung - effizient und flexibel:
Alle Büroflächen können vermieterseits flexibel an die gewünschte Raumkonfiguration des Mieters angepasst werden - 1, 2, oder 4-Personen-Zimmer bzw. Großraumbüros - alles möglich. Ein neuer Fußbodenbelag wird nach Absprache zwischen Mieter und Vermieter verlegt.
> Werbefläche auf Fassade zur B17 im Ausmaß ab 6 x 4 m² ab € 3.500,00 p.a. zzgl. 20% Ust können zusätzlich angemietet werden.
Verkehrsgünstige LAGE:
Das moderne Bürohaus mit Lagerhallen wird über mehrere Ausfahrten der A2/Südautobahn (z.B. Mödling, Wr. Neudorf) bzw. die B17 erschlossen.
Die Anbindung durch öffentliche Verkehrsmittel ist insbesondere durch die Badner Bahn und die Autobuslinien 263, 360, 361 gegeben.
Der Diskonter Hofer und ein Wirtshaus befinden sich direkt gegenüber, der Supermarkt Billa ist in Gehweite.
FACTS:
- Nettomiete Büroflächen: € 10,50/m² p.M.
- Netto-Betriebskosten-Akonto inkl. Heizung und Wasser: € 2,00/m² p.M.
- Kaution: 3-6 BMM
- Provision: 3 BMM zzgl. 20% Ust.
- Befristeter Mietvertrag mit Kündigungsverzicht
Alle Preise verstehen sich zzgl. 20% Umsatzsteuer.
Vereinbaren Sie einen Besichtigungstermin:
Mag. Alexandra Wagner, MSc
+43 664 601 05 165
www.anobis.at
Wir weisen darauf hin, dass zwischen dem Vermittler und dem zu vermittelnden Dritten ein familiäres oder wirtschaftliches Naheverhältnis besteht.
Der Vermittler ist als Doppelmakler tätig.
Pläne
Lagebeschreibung
Industriezentrum Niederösterreich Süd, B 17







