Beschreibung
!!KURZ VOR FERTIGSTELLUNG - BESICHTIGUNGEN BEREITS MÖGLICH!!
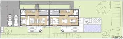
Zum Verkauf gelangt, im Erstbezug, eine hochwertig ausgestattete Doppelhaushälfte mit ca. 140 m² Wohnnutzfläche, ca. 104 m² Garten mit ca. 15 m² Gartenterrasse und einer ca. 15,6 m² Terrasse im Obergeschoss in der Robert-Schuhmann-Gasse, in Mitten einer gediegenen Wohngegend, nur 5 Minuten vom Perchtoldsdorfer Zentrum entfernt. Die Wohnnutzfläche der südlich, östlich und westlich ausgerichteten Einheit verteilt sich auf ein Erdgeschoss und ein Obergeschoss. Ein KFZ-Stellplatz direkt vor dem Haus ist im Kaufpreis inkludiert. Die Fertigstellung ist für Q4 2025 geplant.
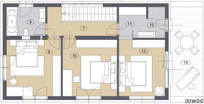
Der durchdachte Grundriss überzeugt mit insgesamt 5 Zimmern und bietet auch größeren Familien ausreichend Platz. Das Erdgeschoss besticht durch eine offene Wohnküche mit Ausgang zum südlich ausgerichteten Garten. Weiters ist im Erdgeschoss sowohl ein weiteres Zimmer als auch ein Tageslicht-Bad mit Dusche & WC situiert, welches sich auch ideal als Gästezimmer eignet. Der geräumige Wirtschaftsraum mit WM-Anschluss komplettiert das Erdgeschoss. Das Obergeschoss dient als privater Rückzugsort und begeistert mit einem Masterbedroom mit großzügiger privater Terrasse, einem begehbaren Schrankraum mit angrenzendem Tageslicht-Bad en Suite und zwei (Kinder-) Zimmern mit eigenem Bad & WC. Raumhöhen von bis zu ca. 2,9 m sorgen für ein angenehm großzügiges Wohngefühl.
Die hochwertige Ausstattung überzeugt u.a. mit edlem Dielen-Eichenparkett, geschmackvollen Feinsteinzeugfliesen, Markenkeramiken- und Armaturen u.a. von LAUFEN und HANSGROHE und Alu-Fenster- und Fenstertüren (3-Scheiben Isolierverglasung) mit außenliegenden Raffstores. Eine Luftwärmepumpe sorgt für eine nachhaltige Wärme- und Warmwasserversorgung. Vorbereitungen für eine Photovoltaikanlage am Dach eine Klimaanlage und eine E-Ladestation (KFZ-Stellplatz) werden ebenfalls getroffen.
Die malerische Marktgemeinde Perchtoldsdorf steht für eine hohe Wohn- und Lebensqualität. Die Lage Perchtoldsdorfs am Fuße des Wienerwaldes bietet eine idyllische Umgebung mit einer Mischung aus urbanem und ländlichem Flair. Perchtoldsdorf bietet ein familienfreundliches Umfeld und verfügt über ein breites Bildungs-, Kultur- und Freizeitangebot. Neben Volksschulen, einer Mittelschule, einem Gymnasium und der Montessori International School gibt es auch noch zahlreiche andere Ausbildungsstätten. Baden, Klettern, Eisstockschießen und Eislaufen im Freizeitzentrum; Wandern, Laufen und Radfahren – Sportliche kommen in Perchtoldsdorf voll auf ihre Kosten. Zahlreiche bekannte Weingüter und Heurige laden zum Verweilen ein. Diverse Nahversorger wie Supermärkte, Bäckereien und Apotheken sorgen für eine hervorragende Versorgung vor Ort. Eine gute öffentliche Verkehrsanbindung wie etwa die nur ca. 10 Geh-Minuten entfernte Bahnstation Perchtoldsdorf und die schnelle Erreichbarkeit u.a. der Wiener Außenring Autobahn A21 gewährleisten eine schnelle Verbindung nach Wien.
HIGHLIGHTS
- Edler Dielen-Eichenparkett in den Wohnräumen
- Geschmackvolle großformatige (75x150 cm) Feinsteinzeugfliesen in den Nassräumen, im Vorraum und im Wirtschaftsraum
- Heizung und Warmwasseraufbereitung mittels Luftwärmepumpe
- Fußbodenheizung
- Vorbereitung für Photovoltaikanlage am Dach & Klimaanlage (Leerverrohrung)
- Keramiken und Armaturen u.a. von LAUFEN und HANSGROHE
- Alufenster- und Fenstertüren (3-Scheiben Isolierverglasung) mit Aludeckschale
- Außenliegender Sonnenschutz - Raffstores mit Funkfernbedienung
- WK-3 Wohnungseingangstüre
- KFZ-Stellplatz mit Vorbereitung für eine E-Ladestation (Leerverrohrung)
- Echtholz-Belag auf den Terrassen
- Wasseranschluss, Steckdose und Lichtauslass auf den Terrassen
- Masterbedroom mit Terrasse, Schrankraum und Bad en Suite
- Gäste-Bad mit WC im EG
- Wirtschaftsraum mit Waschmaschinenanschluss
- 5 Minuten mit dem Rad oder Auto bis ins Zentrum Perchtoldsdorf
- Ca. 30 Minuten mit Auto in die Wiener Innenstadt
INFOS ZUR DOPPELHAUSHÄLFTE
- WOHNNUTZFLÄCHE: ca. 140 m²
- GARTEN: ges. ca. 104 m²
- GARTENTERRASSE: ca. 15 m²
- TERRASSE OG: 15,6 m²
- ZIMMER: 5
- GESCHOSSE: EG+OG
- AUSRICHTUNG: Süd/Ost/West
- RAUMHÖHE: bis zu ca. 2,9 m
- PARKEN: 1 PKW-Stellplatz
- GEPLANTE FERTIGSTELLUNG: Q4 2025
Kaufpreis (inkl. einem Stellplatz): € 799.000,00
Betriebskosten folgen!
Provision: 3% vom Kaufpreis zzgl. 20% USt.
Vertragserrichtung: 1,5% netto zzgl. USt., zzgl. Barauslagen und Beglaubigungskosten (Mag. Markus Michtner)
Bei den gezeigten Bildern handelt es sich teilweise um KI generierte Visualisierungen zur Veranschaulichung (Ausstattung laut Bau- und Ausstattungsbeschreibung).
Zögern Sie nicht und vereinbaren Sie noch heute einen Besichtigungstermin! Ich freue mich auf Ihre Anfrage!
Besuchen Sie auch unsere Homepage unter www.RIWOG.at mit zahlreichen aktuellen TOP-Objekten!
Wir weisen darauf hin, dass zwischen dem Vermittler und dem zu vermittelnden Dritten ein familiäres oder wirtschaftliches Naheverhältnis besteht.
Der Vermittler ist als Doppelmakler tätig.
Pläne
Lagebeschreibung
Zentrum Perchtoldsdorf | Bahnstation Perchtoldsdorf






















