Beschreibung
Wohnen, wo andere Urlaub machen – am Fuße des Hintersees
Das Objekt ist baugenehmigt.
Mitten im Grünen, im charmanten Weiler Oberasch nahe dem Hintersee, entsteht ein ganz besonderes Wohnprojekt für alle, die das Leben in der Natur lieben – ganz ohne auf Komfort zu verzichten. Der moderne 3-Seit-Hof in nachhaltiger Holzriegelbauweise umfasst insgesamt 13 Wohnungen und bietet Raum für Individualität und Kreativität.
Die hier angebotene 4-Zimmer-Wohnung im Dachgeschoss (Top D13) beeindruckt mit einem durchdachten Grundriss, einer sonnigen Terrasse und einem großzügigen Wohngefühl. Der Innenausbau ist flexibel gestaltbar – Fußböden, Türen, Fliesen und die Malerarbeiten können selbst gewählt und umgesetzt werden. Damit lässt sich der eigene Wohntraum ganz nach den persönlichen Vorstellungen verwirklichen.
Ein zusätzlicher Pluspunkt: Durch den Einsatz von Luftwärmepumpe und Photovoltaik bleiben die laufenden Energiekosten angenehm niedrig. Zwei Autoabstellplätze direkt vor dem Haus (zzgl. € 25.000,–) und ein eigener Kellerraum (ca. 8–10 m²) runden das Angebot ab.
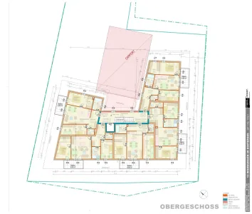
Raumaufteilung Dachgeschosswohnung Top D13:
Vom Eingang im Dachgeschoss gelangt man in einen geräumigen Vorraum, von dem alle Räume zentral begehbar sind. Herzstück ist der helle Wohn-/Essbereich mit offener Küche und Zugang zur geschützten Terrasse. Zwei Zimmer sowie ein separates, großzügiges Schlafzimmer mit Ankleidebereich bieten ausreichend Platz für Familie, Homeoffice oder Gäste. Bad mit Wanne und separates WC ergänzen das Raumangebot sinnvoll.
Die Fakten auf einen Blick:
-
13 Wohnungen auf drei Ebenen:
-
Erdgeschoss: Vier 3-Zimmer-Wohnungen mit Garten (Wohnfläche ca. 72,50m²) +(Gartenfläche ca. 100m²)
-
Obergeschoss: Vier 3-Zimmer-Wohnungen mit Balkon (Wohnfläche ca. 72,50 m²) + ( Balkon ca. 9 m² )
-
Dachgeschoss: Drei großzügige 4-Zimmer-Wohnungen, jeweils mit ca. 93 m² Wohnfläche und einer Terrasse von ca. 11 m².
-
-
Wohnflächen: ca. 72,5 m² bis ca. 93 m²
-
Jede Einheit mit eigenem Kellerabteil (ca. 8–10 m²)
-
Zwei PKW-Stellplätze pro Wohnung vorgesehen – Aufpreis je. € 12.500,–.
-
Alternativ Carport-Stellplatz: € 15.000,– je nach Verfügbarkeit.
-
Personenlift im Haus
-
Eigene Fahrradabstellplätze direkt beim Gebäude
Wohnen mit Aussicht:
Von Ihrem sonnigen Balkon oder Ihrer Terrasse genießen Sie einen unverbaubaren Blick in die umliegende Naturlandschaft. Ob Bergblick beim Frühstück oder laue Sommerabende im eigenen Garten, hier wird der Alltag zur Auszeit.
Lebensqualität, die bleibt:
Die ruhige Lage mitten im Grünen garantiert Erholung, während die Nähe zum Hintersee (fußläufig erreichbar) sowie die Freizeitangebote der Osterhorngruppe ein aktives Leben zu jeder Jahreszeit ermöglichen: Wandern, Skifahren, Rodeln, Tourengehen oder einfach nur die Natur genießenalles liegt direkt vor Ihrer Haustür.
Infrastruktur & Anbindung:
Kindergarten in Hintersee, Sport-Mittelschule und Nahversorger in Faistenau, ärztliche Versorgung und Gastronomie in Hof, alles schnell erreichbar. Eine Bushaltestelle mit Direktverbindung nach Salzburg liegt wenige Gehminuten entfernt (Linien 155 und 157, ca. 50 Min. bis Salzburg Hbf).
Förderung & Energieausweis:
Die Wohnbauförderung 2025 kann beantragt werden. Zusätzlich ist eine nicht rückzahlbare Einmalförderung von bis zu ca. € 70.000,00 möglich, ein echter finanzieller Vorteil für Eigennutzer. Der Energieausweis wird nach Fertigstellung ausgestellt.
Fazit:
Wer naturnah, energieeffizient und individuell wohnen möchte, findet hier die perfekte Kombination. Jetzt informieren, besichtigen und rechtzeitig Ihre Wunschwohnung sichern!
Der Vermittler ist als Doppelmakler tätig.
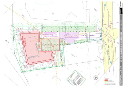
Pläne
Lagebeschreibung
Die Immobilie in 5324 Hintersee besticht durch ihre malerische Lage inmitten der idyllischen Salzburger Landschaft. Umgeben von atemberaubenden Bergen und ruhiger Natur bietet sie eine perfekte Balance zwischen Erholung und Erreichbarkeit. Die Nähe zu einer Bushaltestelle gewährleistet eine bequeme Anbindung an die umliegenden Orte und die Stadt Salzburg, sodass sowohl Pendler als auch Naturliebhaber auf ihre Kosten kommen. Ein Ort, der Lebensqualität verspricht!
Anbieter kontaktieren
Weitere Objekte in diesem Projekt
Eigentumswohnungen in Hintersee im Salzkammergut: ein Zuhause fürs Leben, eine Gelegenheit zum Investieren.
Grundfläche
Zimmer
Kaufpreis
Eigentumswohnungen in Hintersee im Salzkammergut: ein Zuhause fürs Leben, eine Gelegenheit zum Investieren.
Grundfläche
Zimmer
Kaufpreis
Eigentumswohnungen in Hintersee im Salzkammergut: ein Zuhause fürs Leben, eine Gelegenheit zum Investieren.
Grundfläche
Zimmer
Kaufpreis












