Beschreibung
SONDERAKTION - 5 Jahre zinsfrei: 35 % Anzahlung - Restkaufpreis in 5 Jahren
Möchten Sie gerne eine wunderschöne, mit allem Komfort ausgestattete Erstbezugswohnung mit großer Terrasse, dabei aber auch auf einen schönen Garten nicht verzichten? Dann sind Sie hier genau richtig:
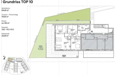
Diese wunderschöne Gartenwohnung befindet sich nahe der Mariatroster Basilika mitten im Grünen mit wunderschönem Fernblick. Sie verfügt über eine Wohnfläche von etwa 105 m² und bietet durch ihren optimalen Grundriss alles, was man sich wünscht - einen großen offenen Wohn-Essbereich mit Zugang zur großen Terrasse und dem schönen Garten, ein stilvolles Masterbedroom mit eigener Ankleide und Zugang zu Terrasse und Garten, ein weiteres Zimmer mit Terrassenzugang, ein hochwertig ausgestattetes Badezimmer mit Walk-in-Dusche, eine Gästetoilette und einen großzügigen Vorraum, über den Sie sämtliche Räume erreichen. Ein Abstellraum darf natürlich auch nicht fehlen.
Highlights im Überblick:
- 70 m² Terrasse u n d 190 m² Gartenfläche
- hochwertiger Eichenparkettböden mit Fußbodenheizung
- Feinsteinzeugfliesen in den Bädern und im Vorraum
- elektrische Beschattung und Fenster mit Dreifach-Isolierverglasung
- Fußbodenheizung und -kühlung mittels Wärmepumpenanlage
- begrünte Flachdächer mit energiesparender Energiegewinnung durch Photovoltaik
- Raumhöhe von mindestens 2,80 m
- Fahrradabstellflächen mit Elektroladestation
Die Wohnung ist mit wunderschönen Parkettböden ausgestattet. Natürlich gehört auch ein großes Kellerabteil zur Wohnung, Tiefgaragenplätze können gegen Aufpreis erworben werden (€ 30.000 pro Abstellplatz). Durch zwei Photovoltaik-Anlagen mit insgesamt 21 kWp und einem geplanten Jahresstromertrag von 21.000 kWh sind moderate Betriebskosten und energieeffizientes Wohnen gewährleistet.
Gebaut wurden hier insgesamt 15 luxuriöse Wohnungen in der Größe von rd. 73 bis 130 m2, alle mit nach Süden ausgerichteten Terrassen und zusätzlich meist großzügigen Grünflächen. Alle Wohnungen sind sowohl über Treppenhäuser als auch mit dem Aufzug barrierefrei erreichbar. Tiefgaragenplätze stehen auch ausreichend zur Verfügung. Gerne sende ich Ihnen weitere Informationen zu allen verfügbaren Wohnungen.
Diese Erstbezugswohnung befindet sich im beliebten Grazer Wohnbezirk Mariatrost, in der Nähe der Basilika, umgeben von der Natur mit Wiesen und Wäldern (Leechwald), tolle Sport - und Freizeitmöglichkeiten aber auch beste Infrastruktur mit der Straßenbahnhaltestelle 1 in unmittelbarer Nähe. Ein Bauernmarkt sowie Schulen, Kindergärten, Einkaufsmöglichkeiten, Ärzte und Apotheke befinden sich nur wenige Gehminuten entfernt.
Haben wir Ihre Interesse geweckt? Ich freue mich auf Ihre Anfrage.
Der Vermittler ist als Doppelmakler tätig.
Pläne
Lagebeschreibung
Nähe LKH, Leechwald, Basilika Mariatrost













