Beschreibung
Top-Ausstattung und durchdachtes Wohnkonzept
Dieses Neubauprojekt bietet moderne Wohnungen mit Fokus auf Komfort, Nachhaltigkeit und Gemeinschaft:
- Es entstehen insgesamt 16 Eigentumswohnungen im Erstbezug mit Eigengarten oder Balkon bzw. Dachterrasse - schlüsselfertige Ausführung & provisionsfrei!
- Größen: ca. 61 m2 (1 Schlafzimmer) und ca. 107 m2 Wohnfläche (3 Schlafzimmer)
- in direkter Ortslage in Kematen/Ybbs - Top Lage
- geplanter Baustart: 2026, geplante Fertigstellung: 2027
- Massivbauweise in Baumeisterqualität
- schlüsselfertige Übergabe (inkl. Sanitäreinrichtungen) jedoch ohne Möblierung
- Niedrigenergiehaus - Ansuchen um NÖ-Wohnbauförderung möglich!
- Frühkäuferbonus von -5% bereits beim Kaufpreis berücksichtigt! Bereits jetzt Wunschwohnung sichern!
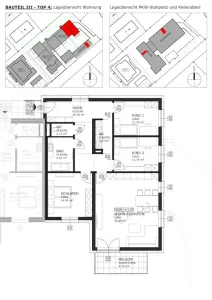
TOP 4 (BT III): komfortables Wohnen: gemütliche 106 m² Wohnung im 1.OG mit ca. 8 m² Balkon!
Diese großzügige 106 m² große Wohnung bietet Ihnen und Ihrer Familie die perfekte Kombination aus modernem Wohnkomfort mit Balkon zum Relaxen.
Genießen Sie die folgenden Highlights:
- 3 Schlafzimmer: Ideal für Familien – ausreichend Platz für Kinder, Gäste oder ein Home-Office
- ca. 8 m² Balkon: relaxen, Sonne und Ausblick genießen
- Separate Räume: durchdachte Raumaufteilung sorgt für Privatsphäre und individuelle Rückzugsorte
- Moderne Ausstattung: hochwertige Materialien und zeitgemäße Technik erfüllen höchste Ansprüche
- Fußbodenheizung: sorgt für ein angenehmes Raumklima und für wohlige Wärme auch in den Wintermonaten
- schlüsselfertige Übergabe
- Massivbauweise in Baumeisterqualität
- inkludiert: 1 eigenes Kellerabteil, 1 Tiefgaragenstellplatz, 1 Carportstellplatz
Zögern Sie nicht und sichern Sie sich bereits jetzt diese Wohneinheit zum Erstbezug & provisionsfrei!
Niedrigenergiehaus: Möglichkeit des Antrages zur NÖ-Wohnbauförderung; Gerne bieten wir Ihnen ebenfalls Finanzierungsmöglichkeiten an.
Frühkäuferbonus von -5% Abzug bereits beim Kaufpreis berücksichtigt. Bereits jetzt sichern!
Satz-und Druckfehler vorbehalten! Alle Angaben ohne Gewähr.
Der Vermittler ist als Doppelmakler tätig.
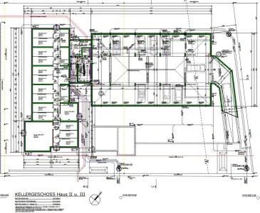
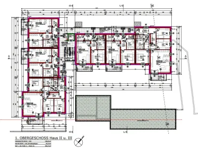
Pläne
Lagebeschreibung
Ausgezeichnete Lage mit hervorragender Infrastruktur: Apotheke, Schule, Kindergarten, Supermarkt, Bäckerei, Post, Bank und Geldautomat sind fußläufig in kurzer Gehdistanz erreichbar; Verkehrsanbindung: Optimal mit Bus und Bahnhof, guter Anschluss an das öffentliche Verkehrsnetz
Anbieter kontaktieren
Weitere Objekte in diesem Projekt
provisionsfreie Erstbezugs Eigentumswohnungen von 61 - 107 qm Größen mit Balkon oder Eigengarten
Wohnfläche
Kaufpreis
provisionsfreie Erstbezugs Eigentumswohnungen von 61 - 107 qm Größen mit Balkon oder Eigengarten
Wohnfläche
Kaufpreis
provisionsfreie Erstbezugs Eigentumswohnungen von 61 - 107 qm Größen mit Balkon oder Eigengarten
Wohnfläche
Kaufpreis
provisionsfreie Erstbezugs Eigentumswohnungen von 61 - 107 qm Größen mit Balkon oder Eigengarten
Wohnfläche
Kaufpreis























