Beschreibung
ZUR INFO !! Jeder private Käufer der angebotenen Immobilie erspart sich ab 01.07.2024 die Grundbuch- und Pfandrechteintragungsgebühr in der Höhe bis max. 2,3% des Kaufpreises, allerdings nur bei Deckung des eigenen Wohnbedarfs. Beträge, die die Bemessungsgrundlage des Kaufpreises von 500.000 Euro übersteigen, unterliegen den regulären Gebühren.
Willkommen in Ihrem neuen Zuhause in der wunderschönen Gemeinde Axams in Tirol. Diese atemberaubende Wohnung bietet alles, was Sie für ein komfortables und modernes Leben in den Bergen brauchen. Mit einem Kaufpreis von 680.000,00 € und einer Fläche von 85,27m² ist diese Immobilie perfekt für Paare oder kleine Familien, die den Traum vom Leben in den Alpen verwirklichen möchten.
Diese Wohnung ist ein Erstbezug und bietet somit die Möglichkeit, alle Räume nach Ihren persönlichen Wünschen zu gestalten. Die hochwertige Ausstattung und die modernen Materialien machen diese Wohnung zu einem echten Juwel. Dank der Fußbodenheizung sind kalte Wintertage kein Problem mehr und der Personenaufzug macht das Erreichen Ihrer Wohnung zum Kinderspiel.
Ein weiteres Highlight dieser Immobilie ist der Garten und die Terrasse, die Ihnen einen atemberaubenden Blick auf die umliegenden Berge bieten. Genießen Sie Ihre Mahlzeiten im Freien oder entspannen Sie sich auf Ihrer Terrasse, während Sie den Blick auf die majestätischen Gipfel der Tiroler Alpen genießen.
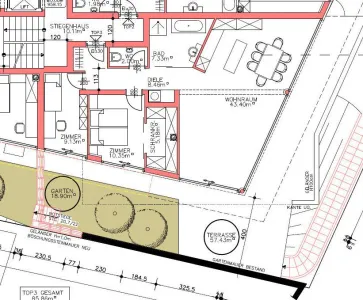
Die Wohnung verfügt über 3 Zimmer, die Ihnen ausreichend Platz für ein gemütliches Wohn- und Esszimmer, ein Schlafzimmer und ein Arbeitszimmer bieten. Die großen Fenster sorgen für viel Tageslicht und schaffen eine offene und einladende Atmosphäre. Der Nordostbalkon / Terrasse bietet Ihnen die Möglichkeit, die frische Bergluft und den Sonnenaufgang zu genießen.
Für zusätzlichen Stauraum gibt es einen Fahrradraum, in dem Sie Ihre Sportgeräte unterbringen können. Auch für den sommerlichen Sonnenschutz ist gesorgt, dank des außenliegenden Sonnenschutzes.
Raumaufteilung:
- ca. 42,45 m² großer offener Wohn- Koch und Essbereich
- ca. 14,26 m² großes Zimmer
- ca. 9,78 m² großes Zimmer
- ca. 7,20 m² großes Badezimmer mit Dusche
- ca. 1,98 m² großes separates WC
- ca. 8,86 m² großer Eingangsbereich Garderobe Gang
Zwei Tiefgaragenabstellplätze mit E Anschlüsse können um je € 29.000, - dazu erworben werden
Diese Wohnung bietet nicht nur den perfekten Ausgangspunkt für Wanderungen, Skitouren und andere Outdoor-Aktivitäten, sondern auch ein komfortables und modernes Zuhause in einer der schönsten Regionen Österreichs. Zögern Sie nicht und kontaktieren Sie uns noch heute, um einen Besichtigungstermin zu vereinbaren und sich selbst von dieser traumhaften Immobilie zu überzeugen. Wir freuen uns darauf, Ihnen Ihr neues Zuhause vorzustellen.
Wichtiger Hinweis
Wir weisen darauf hin, dass wir gemäß unserer Nachweispflicht gegenüber dem Auftraggeber nur Anfragen mit vollständiger Angabe Ihrer persönlichen Daten, Vor- und Nachname, Telefonnummer und E-Mailadresse bearbeiten können.
Rechtlicher Hinweis
Dieses freibleibende Angebot wird Ihnen von der clever & smart immo gmbh, welche als Makler tätig ist, überreicht. Alle Angaben erfolgen aufgrund der Informationen und Unterlagen, welche uns vom Eigentümer oder/und von Dritten übermittelt wurden, und sind ohne Gewähr.
Der Vermittler ist als Doppelmakler tätig.
Pläne
Lagebeschreibung
Olympisch, stadtnah, naturverbunden - zusammen mit den Feriendörfern Grinzens und Birgitz liegt Axams auf einem Sonnenplateau im Inntal oberhalb von Innsbruck, das einen hervorragenden Blick in die umliegende Bergwelt ermöglicht. Auf einer Alm auf 1.550 Metern Höhe, der sogenannte Axamer Lizum, befindet sich das gleichnamige Skigebiet, welches gern auch das „Weiße Dachl Innsbrucks“ genannt wird. Es ist das größte Skigebiet im Umfeld der Landeshauptstadt und ist Dank seiner langen Abfahrten und Tiefschneehänge sehr beliebt.












