Beschreibung
Ferienchalet in absoluter Ruhelage – Ihr persönliches Hideaway auf 1.000m Seehöhe in den steirischen Alpen nahe Turnau und Pogusch
Wo die Natur auf Erholung trifft und die Berge zum Greifen nah sind
Träumen Sie von einem Ort, an dem die Hektik des Alltags keine Rolle mehr spielt? Wo nur die Ruhe der Natur und die imposante Bergwelt Ihr Begleiter sind? In Seewiesen auf rund 1.000m Seehöhe, nahe dem bekannten Pogusch und dem Steirereck, wartet ein Chalet auf Sie, das genau das verspricht. Mit seiner Lage inmitten der idyllischen steirischen Bergwelt bietet dieses Ferienchalet eine Oase der Ruhe und Entspannung – ideal für Menschen aus Wien, Graz und Umgebung, die eine Auszeit suchen, um sich in der Natur zu erholen und Energie zu tanken.
Ihr Rückzugsort in den Bergen
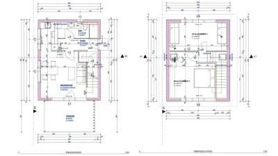
Dieses charmante Chalet in Massivholzbauweise, handgefertigt vom Zimmermeister, vereint modernen Komfort mit natürlichem Flair. Es bietet auf 66m² Wohnfläche ausreichend Raum, um Ihren persönlichen Rückzugsort zu gestalten. Der Wohnbereich ist offen und gemütlich gestaltet, während zwei Schlafzimmer im Obergeschoss Ihnen und Ihren Gästen Raum zur Erholung bieten. Auf der großzügigen 14m² großen Terrasse können Sie die spektakuläre Aussicht auf das Hochschwab-Massiv genießen – hier wird jeder Sonnenaufgang zu einem Erlebnis.
Das linke Chalet auf dem Grundstück 19/1 hat bereits einen neuen Besitzer gefunden. Das rechte Chalet auf dem Grundstück 19/6 ist noch verfügbar und wartet darauf, Ihr persönliches Hideaway in den Bergen zu werden. Nutzen Sie die Chance und sichern Sie sich dieses exklusive Chalet in absoluter Ruhelage – perfekt für Naturliebhaber und Ruhesuchende!
Das Wichtigste auf einen Blick
- 66m² Wohnfläche, Baujahr 2024, Erstbezug, Holz Massivbauweise
- 3 Zimmer, teilmöbliert (Küche und Bad)
- 306m² Grundstück in Alleineigentum mit 246m² Garten (optionale Möglichkeit Nachbargrundstück mit rund 250m² zusätzlich zu erwerben)
- Fernblick auf die Hochschwab-Bergwelt
- 14m² Sonnen-Terrasse zum Entspannen
- Beheizung über Elektro und Schwedenofen für eine gemütliche Atmosphäre
- 2 PKW-Stellplätze auf Rasengittersteinen
- Absolute Ruhelage – Natur pur
Gestaltung nach Ihren Wünschen
Das Chalet wird bereits teilmöbliert angeboten, aber es bleibt Ihnen Raum für Ihre individuellen Gestaltungswünsche: Die Sanitärausstattung sowie die Fliesen können nach Absprache noch angepasst werden. So schaffen Sie sich Ihren ganz persönlichen Rückzugsort in den steirischen Alpen.
Seewiesen: Ein Paradies für Naturliebhaber
Seewiesen liegt eingebettet in die Berglandschaft der Hochsteiermark, ein kleines Dorf, das für seine Ruhe und Naturverbundenheit bekannt ist. Die Umgebung bietet vielfältige Möglichkeiten zur Erholung: Wandern am Hochschwab, Radfahren entlang malerischer Bergstraßen oder Winteraktivitäten wie Skifahren in den nahegelegenen Skigebieten. Der bekannte Pogusch mit seinem traditionellen Wirtshaus „Steirereck“ ist nur einen Katzensprung entfernt – ideal für kulinarische Ausflüge.
Perfekte Erreichbarkeit und dennoch abgeschieden
Trotz der absoluten Ruhelage sind Sie in rund 1,5 Stunden aus Wien und etwa eine Stunde aus Graz mit dem Auto am Ziel – perfekt für ein Wochenende in den Bergen oder als Rückzugsort für längere Aufenthalte. Hier finden Sie die Ruhe, die Sie suchen, ohne auf die Annehmlichkeiten der Stadt völlig verzichten zu müssen.
Dieses Chalet in Seewiesen bietet Ihnen die einzigartige Möglichkeit, in einer der schönsten Naturregionen der Steiermark Ihr ganz persönliches Hideaway zu schaffen. Egal, ob Sie sportliche Aktivitäten in den Bergen genießen oder einfach nur die Stille und Abgeschiedenheit suchen – dieses Chalet ist der ideale Ort, um dem Alltag zu entfliehen.
Interesse geweckt? Zögern Sie nicht, uns für einen Besichtigungstermin zu kontaktieren und dieses einmalige Angebot selbst zu erleben.
Für weitere Informationen oder um Besichtigungstermine zu vereinbaren, steht Ihnen Frau Julia Pauer, BSc gerne zur Verfügung. Erreichbar unter der Mobilnummer +43 676 55 33 478 oder per E-Mail an pauer@viemmo.com.
Hinweis gemäß Energieausweisvorlagegesetz: Ein Energieausweis wurde vom Eigentümer bzw. Verkäufer, nach unserer Aufklärung über die generell geltende Vorlagepflicht, sowie Aufforderung zu seiner Erstellung noch nicht vorgelegt. Daher gilt zumindest eine dem Alter und der Art des Gebäudes entsprechende Gesamtenergieeffizienz als vereinbart. Wir übernehmen keinerlei Gewähr oder Haftung für die tatsächliche Energieeffizienz der angebotenen Immobilie.
Wir weisen darauf hin, dass zwischen dem Vermittler und dem zu vermittelnden Dritten ein familiäres oder wirtschaftliches Naheverhältnis besteht.
Der Vermittler ist als Doppelmakler tätig.
Pläne
Lagebeschreibung
Seewiesen, Turnau Hochsteiermark













