Beschreibung
Geförderte Genossenschaftswohnungen - Miete mit Kaufrecht
Ein Teil des Finanzierungsbeitrages kann gerne gestundet werden!!!
50 % des Finanzierungsbeitrages bei Abschluss des Mietvertrages - Restbetrag kann für 3 Jahre mit 1,00% p. a. gestundet werden.
In 2842 Edlitz, Markt 32, wurde eine Wohnhausanlage mit 24 Wohnungen, aufgeteilt auf zwei Stiegen und sechs Reihenhäusern, in Miete mit Kaufrecht errichtet. Die Wohnungen und Reihenhäuser wurden in Niedrigenergiebauweise mit kontrollierter Wohnraumlüftung und Wärmerückgewinnung hergestellt. Die Beheizung und Warmwasserbereitung erfolgt mittels Luft-Wasser-Wärmepumpen in Zusammenhang mit Photovoltaikanlagen.
Den Erdgeschosswohnungen und Reihenhäusern wurden Eigengärten samt Terrassen zugeordnet. Die restlichen Wohnungen verfügen über Balkone. Jede Wohneinheit erhält einen PKW-Abstellplatz mit Carport. Jedem Reihenhaus wurde zusätzlich ein PKW-Abstellplatz im Freien zugeordnet.
Auf Sonderwunsch und Kosten des Mieters kann jeder zugeordnete Stellplatz unter dem Carport mit einer Ladesteckdose für ein Elektroauto ausgestattet werden.
Alle Stiegenhäuser der Mehrfamilienwohnhäuser wurden barrierefrei ausgeführt und mit Personenaufzügen ausgestattet. Zusätzlich wurden Abstellräume für Fahrräder und Kinderwägen sowie Trockenräume zur Verfügung stehen. Der öffentliche Kinderspielplatz befindet sich unmittelbar neben der Wohnhausanlage.
In der Marktgemeinde Edlitz befinden sich diverse Schulen, ein Landeskindergarten sowie ein Musikschulverein. Zusätzlich bietet der Wohnort eine hervorragende Infrastruktur und Nahversorgung sowie Ärzte, Betriebe und ein aktives Vereinsleben. Mit dem Autobahnanschluss an die A2, sowie dem
Bahn- und Busverkehr gibt es auch eine sehr gute Anbindung an das öffentliche Verkehrsnetz.
Diese Wohnhausanlage wurde vom Land Niederösterreich gefördert! Die Mieter müssen den Förderkriterien entsprechen und hier ihren Hauptwohnsitz begründen.
MIETE mit KAUFRECHT
Mit Bezahlung des Finanzierungsbeitrages erwerben Sie das Optionsrecht zum Kauf der gemieteten Wohneinheit.
Folgende Wohneinheiten stehen zur Verfügung:
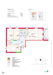
Top 1-3
Wohnfläche: 55,44 m²
Eigengarten: 77,30 m²
Finanzierungsbeitrag: € 43.928,00
Miete: € 557,94
Top 1-5
Wohnfläche: 89,57 m²
Finanzierungsbeitrag: € 61.240,00
Miete: € 788,65
Top 1-9
Wohnfläche: 89,57 m²
Finanzierungsbeitrag: € 70.076,00
Miete: € 810,90
Top 1-11
Wohnfläche: 55,44 m²
Finanzierungsbeitrag: € 37.821,00
Miete: € 541,25
Die Kosten des KFZ-Stellplatzes ist in der monatlichen Miete bereits enthalten.
Miete
Die Miete besteht gemäß § 14 WGG aus:
- Kapitaltilgung + Zinsen – Förderungsdarlehen
- Annuität (Kapitaltilgung+Zinsen abzüglich temporären Zuschuss) des zur Finanzierung der Wohnung beanspruchten progressiven Hypothekardarlehens oder Eigenmitteleinsatz einer gemeinnützigen Bauvereinigung
- Annuität (Kapitaltilgung+Zinsen) nicht geförderten Hypothekardarlehen
- Baurechtszins im Falle der Einräumung eines Baurechts, Zins für die zur Verfügungstellung des Baugrundstückes
- Erhaltungs- und Verbesserungsbeitrag, der für Erhaltungs- und Verbesserungsarbeiten an der Wohnungsanlage eingehoben wird
- Rücklage 2% der vorstehend angeführten Entgeltbestandteile
- Umsatzsteuer von der Miete und von 1% des Finanzierungsbeitrages pro Jahr (Verwohnung)
Betriebskosten (Akonto)
Die Gemeinnützige Bauvereinigung wird vorerst in der Funktion als Liegenschaftseigentümerin (Bauberechtigte) und Verwalterin die mit der Liegenschaft verbundenen Betriebskostenaufwendungen pro Kalenderjahr im Vorhinein schätzen und in monatlichen Teilbeträgen zur Vorschreibung bringen. Zu den Betriebskostenaufwendungen gehören insbesondere:
- Öffentliche Abgaben (Kanal-, Müll-, Wassergebühr, Grundsteuer)
- Versicherungsaufwand (Feuer-, Haftpflicht-, Leitungswasser- u. Sturmschadenversicherung jeweils zum Neuwert)
- allgemeine Stromkosten (Stiegenhaus, Keller, Außenbeleuchtung)
- Kosten der Betreuung und Erhaltung der allgemeinen Außenanlagen (z. B. Kinderspielplätze, Grünflächen, Müllplätze u.dgl.)
- Rauchfangkehrergebühr
- gegebenenfalls Kosten einer Liftanlage etc.
- Im Betriebskostenakonto sind die Kosten einer Hausbetreuung (Stiegenhausreinigung, Winterdienst, Grünflächenpflege) nicht berücksichtigt. Je nach Beauftragung dieser Arbeiten (eine oder mehrere Personen, gegebenenfalls auch eine Firma) sind diese Kosten variabel.
Wohnzuschuss (abhängig vom Familieneinkommen) möglich.
Für Rückfragen und Besichtigung stehe ich Ihnen unter der Tel. Nr. 0664 / 621 20 58 selbstverständlich gerne zur Verfügung.
Unsere Angaben erfolgen aufgrund der Informationen und Unterlagen, welche uns vom Abgeber oder dessen Beauftragten zur Verfügung gestellt wurden und sind ohne Gewähr.
Ihre Immobilienträume.
Unser Ziel!
www.realbrokers.at
Wir weisen darauf hin, dass zwischen dem Vermittler und dem zu vermittelnden Dritten ein familiäres oder wirtschaftliches Naheverhältnis besteht.
Der Immobilienmakler erklärt, dass er – entgegen dem in der Immobilienwirtschaft üblichen Geschäftsgebrauch des Doppelmaklers – einseitig nur für den Vermieter tätig ist.
Pläne


