Beschreibung
Gestalten Sie sich auf ca. 170 m² Ihren ganz persönlichen Traum Ihrer Ordination und verwirklichen Sie sich und Ihren Zukunftsplan. Das neue Ärztezentrum in der Maria-Gailer-Straße bietet Ihnen dafür den besten Raum und die ideale Umgebung. Die Lage ist zentral und sehr gut erreichbar, die Zugänge selbstverständlich barrierefrei möglich und natürlich gibt es ausreichend Parkplätze für Ihre Kunden und Patienten.
Im Obergeschoss des Fachmarktzentrums "Maria-Gailer-Straße" entsteht ein modernes, barrierefrei erreichbares Ärztezentrum, welches als Gesamtes oder in derzeit noch variablen Teilflächen angemietet werden kann. Aktuell sind die Räumlichkeiten noch nicht fertig ausgebaut, aber die Übergabe an Sie würde selbstverständlich bezugsfertig (Standard-Bodenbeläge, Heizungstechnik, Standard-Elektroinstallationen für Licht und Steckdosen, etc.), gemäß noch zu vereinbarender Bau- und Ausstattungsliste erfolgen. Sollten Ihrerseits besondere bauliche Ausstattungswünsche vorliegen, kann dies, gegen eine entsprechende Vereinbarung hinsichtlich der Kostenübernahme, derzeit noch vereinbart werden.
Highlights der Räumlichkeiten:
Zentrale Lage mit ausgezeichneter Erreichbarkeit
Moderne Ausstattung der Ordinationsräumlichkeiten
Flexible Raumaufteilung – ideal für verschiedene Fachrichtungen
Helle, freundliche Behandlungsräume mit großen Fenstern
Barrierefreier Zugang für maximalen Patientenkomfort (Aufzug, barrierefreie Toilette)
Gute Verkehrsanbindung & reichlich Parkmöglichkeiten
Mit Größen zwischen ca. 79 m² und 170 m² bietet Das Ärztezentrum alle Voraussetzungen für Sie bzw. Ihre Praxis und es ist mit Sicherheit eine sinnvolle Investition in Ihre Zukunft!
Die Geschäftsflächen liegen nebeneinander im Obergeschoss des Fachmarktzentrums, dem neuen Ärztezentrum "Maria-Gailer-Straße".
Unmittelbar vor dem Gebäude steht eine ausreichend große Anzahl an PKW-Stellplätzen zur Verfügung, welche ebenso einen extremen Mehrwert für die Immobilie bieten.
Vereinbaren Sie noch heute einen Besichtigungstermin und überzeugen Sie sich selbst von den zahlreichen Vorzügen dieser erstklassigen Immobilien. Ihr Erfolg beginnt hier!
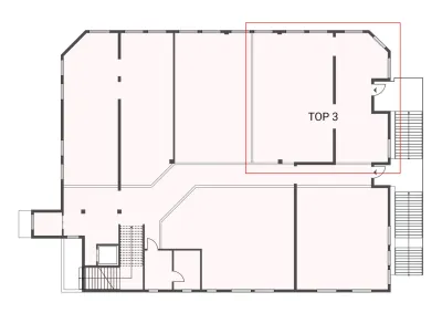
Aufstellung der Mietzinse und der Nebenkosten für die Ordination Top 3:
Miete: € 3.263,64
Betriebskostenaconto: € 489,55
Heizkostenaconto: € 265,17
Gesamtmiete: € 4.018,36
Kaution:
5 Bruttomonatsmieten
Provision:
3 Bruttomonatsmieten zzgl. 20 % USt.
Bestandsvertragsgebühr:
lt. Mietvertrag (laufzeitabhängig)
Kosten für die Mietvertragserrichtung:
nach Vereinbarung
Der Vermittler ist als Doppelmakler tätig.
Pläne
Lagebeschreibung
Villach: Villach verführt... Altstadt & Flair - Südländisches Temperament und kärntnerische Lebensfreude, historisch geprägt und klimatisch bevorzugt, romantisch, modern, lässig und fröhlich: Villach zaubert ein Lächeln auf Ihre Lippen. Villach macht Stimmung... Kult & Kilt - Weltoffen und traditionsbewusst, niveauvoll und lustbetont - Villach ist bekannt für seine kulturelle Vielfalt. Kleine Künste und große Komödien, fantastische Feste und mitreißende Interpreten. Die ganze Stadt ist Bühne. Villach inspiriert... Stadt & Land - Stadt und Region geben viel Zeit und Raum für spannende Entdeckungen. Zu Wasser und zu Land, in den Tälern und Dörfern, landschaftlich, kulturell und kulinarisch. Natur pur, ein Genuss fürs Auge und für den Gaumen. Villach belebt... Wellness & Fitness - Zeit zum Atem holen. Ein Seelenbad nehmen, Körper und Geist erfrischen. Beim Laufen und Walken in der freien Natur, beim Relaxen in der Therme. Auch Paracelsus war ein Villacher und wusste um die (Heil)Kraft des Villacher Wassers. Villach verzaubert... Schnee & Eis - Villach ist auch im Winter heiß begehrt. Stimmungsvoll gestaltet präsentiert sich die Altstadt, prachtvoll bedeckt geben sich die Berge. Schneeschuhwandern über glitzernde Felder, Ausklang bei Glühwein und heißen Maroni. Villach bereichert... Servus, Hello & Salut - Servus, Srečno & Ciao - Villach ist zentral eingebettet in der 3-Länder Region Kärnten-Friaul-Slowenien. Mit einer Offenheit, die verbindet und bereichert. Mit spektakulären Events und kulturellen Highlights. Eine Erlebnisregion ohne Grenzen.



