Beschreibung
Das Gebäude wurde 1990 in massiver Bauweise neu errichtet und verfügt über eine Gesamtnutzfläche von rund 1.400 m², verteilt auf vier Vollgeschosse und ein zurückgesetztes Dachgeschoss. Öffentliche Parkplätze befinden sich in unmittelbarer Nähe (Hauptplatz, Kirchenplatz). Die Liegenschaft steht derzeit leer und bietet dadurch flexible Gestaltungsspielräume für neue Nutzungskonzepte wie z. B.
-
Co-Working / Kreativflächen,
-
medizinische oder therapeutische Einrichtungen,
-
urbane Wohn- und Mischnutzungskonzepte
-
Gastronomie- und Dienstleistungsangebot
Daten und Fakten:
- Geschäftshaus in zentraler Innenstadtlage
- 365 m² Grundfläche (Kernzone)
- Nutzfläche ca. 1.400 m²
- große Schaufensterflächen hauptplatzseitig
- Anlieferung über eigenen Eingang (kirchenplatzseitig)
- Personen- und Lastenaufzug vorhanden
- alternative Nutzungen möglich - entsprechende Konzepte liegen vor
Der Vermittler ist als Doppelmakler tätig.
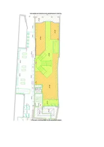
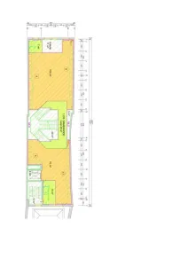
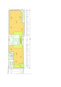
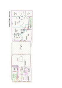
Pläne
Lagebeschreibung
Am Hauptplatz von Ried im Innkreis gelegen, bietet dieses markante Geschäftshaus eine außergewöhnliche Gelegenheit in bester Innenstadtlage. Ried ist mit rund 12.200 Einwohnern nicht nur Bezirkshauptstadt, sondern auch ein bedeutender Handels- und Messestandort im Innviertel. Die Lage am Hauptplatz garantiert hohe Frequenz, Sichtbarkeit und beste Erreichbarkeit – ideale Voraussetzungen für vielfältige Nutzungsmöglichkeiten.





























