Beschreibung
Sie sehnen sich nach dem mediterranen Lebensgefühl? Dann werden Sie diese Liegenschaft lieben!
Genießen Sie das Dolce far niente am Pool und lassen Sie den Blick in die Ferne schweifen! Entspannung pur!
Diese moderne Villa wurde im Jahr 2012 in Ziegelmassiv-Bauweise mit Bedacht auf Eleganz und Wohlbehagen errichtet und besticht u.a. durch die offene, großzügige Innenraumgestaltung.
Hochwertige Fußböden, zeitlos-moderne Küchen, tolle Bäder ... all das rundet das Bild ab und erzeugt eine stilvolle Atmosphäre zum Wohlfühlen.
Die Außenanlage mit Salzwasser-Pool, Terrassen, Liegeflächen und großem Pavillon mit Außenküche ist sehr ansprechend gestaltet und lädt zum Genießen und Relaxen ein.
Die Wohnfläche von ca. 317 m² erstreckt sich über drei Ebenen und beherbergt auch eine Gästewohnung mit separatem Eingang.
Obergeschoss:
- drei großzügige Schlafzimmer jeweils mit Ankleideraum, teilweise mit Balkon
- Badezimmer mit Eckbadewanne und Dusche
- separates WC
- Vorraum
Erdgeschoss:
- ca. 62 m² großes Wohn-Esszimmer mit gemauertem Kaminofen und offener, exquisiter Küche
- Büro
- Speisekammer
- Abstellraum
- WC
- großzügiger Eingangsbereich / Vorraum mit direktem Zugang zur Doppelgarage
Gartenebene:
Gästewohnung mit
- ca. 46 m² großem Wohn-Esszimmer mit moderner, maßgefertigter Küche
- Wintergarten mit Zugang zum Außenbereich
- Schlafzimmer mit Schrankraum
- großes Badezimmer mit Badewanne und Dusche
- Vorraum
weitere Räume in der Gartenebene:
- Fitnessraum mit Anschlüssen für ein Whirlpool
- Abstellraum (für Saunaraum vorbereitet)
- Heizraum
- Pelletsraum
Die Bodenbeläge im gesamten Haus sind zeitlos elegant (Parkett, Granit und Fliesen), die Fenster sind mit Rollläden und Fliegengittern ausgestattet. Die Vorbereitung für eine zentrale Staubsaugeranlage ist vorhanden.
Die Außenanlage auf dem Grundstück mit 1039 m² ist modern gestaltet und lässt keine Wünsche offen:
- Salzwasser-Pool mit einer Größe von 10 m x 5 m
- Technikraum für Pool (Wärmepumpen-Anschluss ist vorbereitet)
- Terrasse, weitläufige Liegebereiche
- Wintergarten
- Pavillon mit Grillplatz und Vorbereitung für Außenküche
- Abstellraum
- Teichanlage mit Bach
- hochwertige Granitplatten im Pool-/Terrassenbereich
- gepflegte Rasenfläche
Parken:
Doppelgarage mit elektrischem Tor und direktem Zugang ins Haus.
Des weitern gibt es noch 4 Außenabstellplätze am Grundstück.
Sicherheit:
Die Vorbereitung für eine Alarmanlage ist gegeben.
Energieversorgung:
Das Haus wird mittels einer Pelletsheizung beheizt, die Wärmeverteilung erfolgt über die Fußbodenheizung.
Ein Kachelofen im Wohnbereich ist ebenfalls vorhanden.
Für eine PV-Anlage am Garagendach sind alle Vorbereitungen gegeben.
Möblierung:
Küchen und Bäder verbleiben im Haus und sind im Kaufpreis inkludiert, restliches Inventar nach Absprache.
Betriebskosten:
Kanal / Müll / Wasser / Gemeindeabgaben: ca. € 190,- mtl.
Haushaltsstrom: nach Verbrauch
Kaufpreis: € 1.380.000,-
zzgl. Kaufnebenkosten:
Grunderwerbsteuer: 3,5%
Eintragungsgebühr: 1,1%
Kaufvertragserrichtung: ca. 1,5 % netto von der Kaufsumme inkl. Treuhänderabwicklung
Maklerprovision: netto 3 % der Kaufsumme zzgl. 20 % USt
Bezugstermin - Hausübernahme:
nach Absprache
Finanzierung:
Auf Wunsch wird auch die Finanzierung von unserem Fachberater gerne für Sie erstellt.
Verkaufsabwicklung:
Treuhändische Abwicklung beim Notar.
Für weitere Informationen stehen wir Ihnen natürlich gerne zur Verfügung. Besichtigungstermine jederzeit nach Vereinbarung.
Wir bitten um Ihr Verständnis, dass Besichtigungen nur mit Angabe Ihrer vollständigen Kontaktdaten möglich sind, da wir dem Abgeber gegenüber nachweisverpflichtet sind.
Alle Angaben lt. Abgeber - Irrtümer vorbehalten.
Anfragen unter:
Margit Mallegg, Ja-Wohnen
Immobilientreuhänder / Makler
Email: margit.mallegg@ja.or.at
Tel. 0664-3417788
Web: www.ja-wohnen.at
Web: www.ja.or.at
Der Vermittler ist als Doppelmakler tätig.
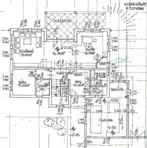
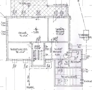
Pläne
Lagebeschreibung
Sonnige Lage mit Weitblick am Ortsrand von Moosburg. Kindergarten, Schulen, Ärzte, Apotheke, Lebensmittelgeschäft und Bank sind fußläufig erreichbar. Die Golfanlage Moosburg-Pörtschach sowie ein schöner Reitstall sind 3 Minuten entfernt. Der Golfclub Klagenfurt- Seltenheim ist auch nur wenige Autominuten entfernt. Der Wörthersee ist in 10 Autominuten und Klagenfurt in 15 Autominuten erreichbar. Einen Überblick über die Kultur- und Genusshöhepunkte rund um den Wörthersee finden Sie unter www.woerthersee.com und unter www.visitklagenfurt.at/de/













































