Beschreibung
Wir suchen für ein Büro mit 3 klimatisierten und lichtdurchfluteten Arbeitsräumen, einen großem Eingangsbereich und einem überdachten Atrium (derzeit mit Whirlpool ausgestattet) den oder die Mieter, die Ihre Zeit bei der Arbeit mit Fernblick produktiv verbringen wollen.
Das Büro ist in aktueller Raumaufteilung und Gestaltung einzigartig, insbesondere durch das großzügige Atrium mit Whirlpool. Die Aufteilung lässt daher viele Möglichkeiten der repräsentativen Nutzung zu.
Die Lage am Liesinger Platz ist verkehrstechnisch optimal. Die Infrastruktur (Bäckerei, Fleischhauer, Lebensmittelgeschäfte, Trafik) ist sehr gut. Die Schnellbahn und Busse halten vor der Türe. Ein großes Parkhaus ist unmittelbar angrenzend. Das Büro ist daher für Kunden sehr gut erreichbar.
Eine Umgestaltung der Räumlichkeiten (zB Verkleinerung der Küche ist möglich).
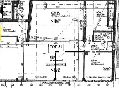
Raumaufteilung:
- 3 Büroräume (klimatisiert) - jeweils ca. 12m²
- Vorzimmer
- WC mit Dusche
- Atrium mit Whirlpool
Im Falle einer erfolgreichen Vermittlung stellen wir drei Bruttomonatsmieten zzgl. 20% USt. als Provision in Rechnung.
Wir weisen darauf hin, dass zwischen dem Vermittler und dem zu vermittelnden Dritten ein familiäres oder wirtschaftliches Naheverhältnis besteht.
Der Vermittler ist als Doppelmakler tätig.
Pläne









