Beschreibung
Sie wünschen sich ein Haus mit Garten zu einem leistbaren Preis?
Dann sind Sie bei uns genau richtig.
Die angebotenen Häuser wurden in Massivbauweise auf Baurechtsgrund errichtet von einem erfahrenen Baumeister/Bauträger Unternehmen aus Wiener Neustadt. Bei der Bauweise wurde auf Qualität geachtet und bei der Optik auf Geschmack. Die Grundrisse der insgesamt 8 Reihenhäuser wurden geschickt geplant, um den modernen Ansprüchen einer Familie gerecht zu werden.
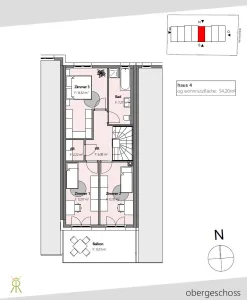
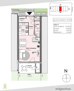
Im Erdgeschoss erwartet Sie ein großzügiger und heller Eingangsbereich mit genügend Platz für Stauraum, ein über 30m² großer Wohn-/Essbereich mit großen Glasflächen und südseitiger Ausrichtung und ein etwa 7m² großer Küchenbereich, perfekt für eine praktische Küche in U-Form mit ausreichender Arbeitsfläche. Im Obergeschoss sind drei Schlafzimmer mit 12 bis 14m² eingeplant, ein Abstellraum und ein großes Badezimmer, in dem sowohl Dusche als auch Badewanne Platz finden.
Sämtliche Anschlüsse sind vorbereitet. Die Häuser werden belagsfertig übergeben.
Ihr Vorteil: Böden, Fliesen, Ausstattung in Bad/WC und Innentüren können nach Ihrem ganz individuellen Geschmack ausgesucht werden.
Geheizt wird kostenschonend mit einer Luftwärmepumpe der Firma Daikin.
Im Kaufpreis inkludiert sind 2 Kfz-Abstellplätze im Freien sowie eine Photovoltaikanlage.
Raffstores im EG / Rollo im OG und Fliegengitter im Wohnzimmer und Schlafzimmer sind bereits vorhanden.
Verfügbare Einheiten:
Haus 1 - VERKAUFT
Haus 2 - VERKAUFT
Haus 3 - verfügbar
Haus 4 - verfügbar
Haus 5 - verfügbar
Haus 6 - verfügbar
Haus 7 - verfügbar
Haus 8 - verfügbar
Jetzt Eigentümer einer Immobilie werden - den Grundanteil erst später kaufen.
Der attraktive Angebotspreis beruht auf folgendem Konzept:
Die Häuser wurden auf Baurechtsgrund errichtet. Das heißt, Sie kaufen vorerst nur das Haus und bezahlen für die Benützung des Grundstückes ein monatliches Entgelt.* Dieser Vertrag ist abgesichert auf 96 Jahre. Danach kann über den Ankauf des Grundstückes gemäß Baurechtsvertrag abgestimmt werden.
Eine gute Lösung, um jetzt Hauseigentümer in belebter Gegend zu werden, auch wenn Ihr Eigenmittelanteil begrenzt ist.
Zentrale Lage in einer beliebten Wohngegend:
Die Häuser befinden sich im Weinort Sooß an der Hauptverbindung zwischen Bad Vöslau und Baden. Sooß ist durch zahlreiche Heurigen, einen nostalgischen Ortskern sowie schöne Wander- und Spazierwege in den Weinbergen zu einer begehrten Wohngegend geworden. Eine Schule und ein Kindergarten befinden sich unweit des Projekts. Mit dem Bus oder dem Auto sind Sie in wenigen Minuten in Bad Vöslau oder Baden, wo Sie zahlreiche Einkaufsmöglichkeiten, Ärzte, ein Spital, Kultur- und Freizeitangebote, Therme und ein historisches Thermalfreibad, sowie Autobahnanschluss und Südbahnanschluss erwarten. Die Wiener Stadtgrenze erreichen Sie in nur 20 Autominuten.
Nähere Informationen zu Sooß finden Sie unter diesem Link: Sooß - Marktgemeinde | Sooß
Informationen zur Wohnbauförderung finden Sie unter diesem Link: Wohnbauförderung Eigenheim - Land Niederösterreich
Sehr gerne unterstützen wir Sie mit einem kompetenten und lösungsorientierten Team in allen Finanzierungsangelegenheiten.
Ihr Eigenheim in greifbarer Nähe.
Kontaktieren Sie uns noch heute für einen Besichtigungstermin.
Angebote immer schon vor Vermarktungsbeginn sehen und guten immobilienbezogenen Humor genießen? --> Folgen Sie mir auf Facebook oder Linkedin.
*Der Baurechtszins pro Monat beträgt umgerechnet € 312,50 und ist über den Verbraucherpreisindex wertgesichert.
Der Vermittler ist als Doppelmakler tätig.
Pläne
Anbieter kontaktieren
Weitere Objekte in diesem Projekt
Gut geplante Baumeisterqualität inkl. PV-Anlage | leistbar und provisionsfrei in zentraler Lage
Wohnfläche
Zimmer
Kaufpreis
Gut geplante Baumeisterqualität inkl. PV-Anlage | leistbar und provisionsfrei in zentraler Lage
Wohnfläche
Zimmer
Kaufpreis
Gut geplante Baumeisterqualität inkl. PV-Anlage | leistbar und provisionsfrei in zentraler Lage
Wohnfläche
Zimmer
Kaufpreis
Gut geplante Baumeisterqualität inkl. PV-Anlage | leistbar und provisionsfrei in zentraler Lage
Wohnfläche
Zimmer
Kaufpreis



















