Beschreibung
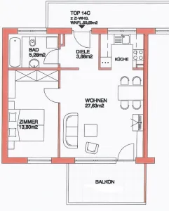
Sind Sie auf der Suche nach einer Wohnung in einer entspannten Umgebung, mit herrlicher Bergkulisse? Dann sollten Sie sich diese Wohnung im beliebten Stubaital, nicht entgehen lassen! Die lichtdurchflutete, sehr gepflegte 2-Zimmerwohnung befindet sich in der 3. Etage und bietet eine Wohnfläche von ca. 50.59m² und verfügt über die Annehmlichkeiten eines Balkons, und einem Kellerabteil.
Der Wohnraum ist mit Fliesen, Parkett und Fußbodenheizung ausgestattet. Es gibt eine sehr hochwertige Einbauküche, ein Badezimmer mit WC und Badewanne. Der Balkon bietet einen tollen Ausblick auf die umliegenden Berge im Stubaital. Ein Personenaufzug ist ebenfalls vorhanden. Die Wohnung ist ab sofort verfügbar.
Ein TG-Abstellplatz kann optional für Euro 28.000.- erworben werden.
Pläne
Lagebeschreibung
Die Wohnung befindet sich in einem Mehrfamilienhaus in zentraler Ruhelage im Kerngebiet von Fulpmes. Lebensmittelgeschäft, Schule, Kindergarten, etc. sind in der Nähe, sowie eine gute Anbindung an die öffentlichen Verkehrsmittel ist gegeben. Der Autobahnanschluss Schönberg ist mit dem Auto in wenigen Minuten zu erreichen.













