Beschreibung
Modernes Büro in Vorchdorf zu Verkaufen!
Die Immobilie befindet sich direkt am Kreisverkehr bei der Autobahnabfahrt Vorchdorf und bietet daher eine optimale Verkehrsanbindung und Sichtbarkeit.
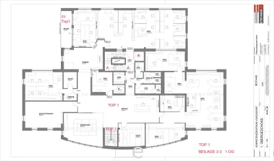
Die großzügige Bürofläche umfasst insgesamt 614m² im 1. OG eines modernen Gebäudes in Vorchdorf.
Eigenschaften:
- Baujahr: 2008, mit einem Zubau auf der Gebäuderückseite im Jahr 2013
- Sehr niedrige Betriebskosten
- Beheizung mittels Wärmepumpe, klimatisiert
- Barrierefrei mit Lift
Raumaufteilung 1. Obergeschoss (200m² + 400m²):
- neun Büros
- ein Besprechungsräume
- WCs
- Abstellraum
- Küche
- Balkon mit 13,33m²
Im Keller gibt es die Möglichkeit weitere Räume mit Laderampe anzumieten.
Die Betriebskosten betragen € 2,50 /m² zuzüglich Ust (inkl. Heizkosten!)
Für weitere Informationen und Besichtigungen kontaktieren Sie bitte Irina Scharinger unter der Telefonnummer 0676 6777722.
Bei Internetanfragen ist die Angabe von vollständigem Namen, Adresse und Telefonnummer erforderlich (Nachweispflicht gegenüber dem Verkäufer).
Wir freuen uns darauf, Ihnen dieses moderne Büro näher vorzustellen!
Noch nichts gefunden? Wir informieren Sie über geeignete Immobilienangebote noch vor allen anderen.
Legen Sie jetzt Ihren individuellen Suchagenten unter folgendem Link an. Wir schicken Ihnen passende Immobilien exklusiv vorab zu.
Suchagent anlegen - https://eurea-real-estates.service.immo/registrieren/de
Wir weisen darauf hin, dass zwischen dem Vermittler und dem zu vermittelnden Dritten ein familiäres oder wirtschaftliches Naheverhältnis besteht.
Der Vermittler ist als Doppelmakler tätig.
Pläne
Lagebeschreibung
Die Immobilie befindet sich direkt am Kreisverkehr bei der Autobahnabfahrt Vorchdorf und bietet daher eine optimale Verkehrsanbindung und Sichtbarkeit. Vorchdorf ist eine Gemeinde im Bezirk Gmunden in Oberösterreich und liegt zwischen Linz und Salzburg. Die Immobilie liegt in zentraler Lage in der Nähe verschiedener Einrichtungen wie Arztpraxen, Apotheken, Schulen, Kindergärten, Supermärkten, Bäckereien, Banken und Geldautomaten. Auch öffentliche Verkehrsmittel wie Busse und der Bahnhof sind in der Nähe.





















