Beschreibung
Wohnhaus mit Einliegerwohnung, einem herrlichen Garten und einer großen Garage in sonniger Lage von Piesendorf zu verkaufen
Das Wohnhaus befindet sich in einem sonnigen und verkehrsmäßig gut gelegenen Ortsteil von Piesendorf und präsentiert sich in einem sehr gepflegten Zustand. Das Haus wird teilmöbliert verkauft und verfügt über eine Terrasse, zwei Balkone, sowie über einen idyllischen Garten und besticht durch einen herrlichen Blick auf die Hohen Tauern!
Sehr praktisch und vielseitig nutzbar ist die eigene Wohnung (mit getrenntem Eingang) über der großen Garage. Diese kann vermietet oder natürlich auch als Büro/Praxis, usw. genutzt werden. Zur Entspannung nach einem langen Tag bietet sich die nette Sauna im Keller an.
Besonders interessant: große Raumvielfalt, bzw. viele Zimmer im Wohnhaus, somit sowohl für Familien, als auch für "Home-Office-Nutzer" bestens geeignet!
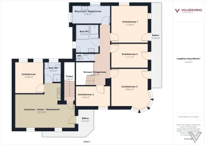
Einteilung Wohnhaus:
Kellergeschoß: Vorraum/Stiegenhaus, Sauna mit Dusche und Ruhebereich, Heizraum;
Erdgeschoß: Vorraum/Eingangsbereich, Küche, Wohnzimmer mit gemütlicher Couch, Essbereich und Ausgang in den idyllischen Garten, Speis, Abstellraum (kann auch als Dusche genutzt werden) und WC mit Waschbecken. Zusätzlich ein geräumiger Lagerraum im Außenbereich, der von der Terrasse zugänglich ist.
1. Obergeschoß: Vorraum, 4 Schlafzimmer (3 davon mit Ausgang auf Südostbalkon), Bad mit Eckwanne und Dusche, WC mit Waschbecken, sowie ein Wirtschaftsraum;
Einteilung Einliegerwohnung: Eingangsbereich, Wohnküche mit Ausgang auf den Balkon mit herrlichem Blick auf die Berge, Schlafzimmer und Bad mit WC;
- der herrliche, idyllische Garten und die beiden Balkone, sowie die große - nach Westen ausgerichtete - Terrasse laden zum "Sonne Tanken" und Genießen des tollen Bergblicks ein
- im netten Garten steht auch ein gemütliches Gartenhäuschen zur Verfügung
- der vom Vorhaus beheizbare Kachelofen sorgt für wohlige Wärme im Wohnzimmer
- besonderes Potenzial ist durch die vielen Schlaf-/Kinderzimmer, sowie durch die getrennte Wohnung mit eigenem Eingang gegeben
- das Wohnhaus in einem sehr gepflegten Zustand ist mit hochwertigen Holz- bzw. Fliesenböden ausgestattet
- am Abend oder an kalten Wintertagen bietet sich die Sauna perfekt zur Entspannung an
- Heizung: geheizt wird mit einer Zentralheizung per moderner Wärmepumpe mit Tiefenbohrung
- zeitgemäß und effizient: eine moderne Photovoltaik-Anlage ist vorhanden!
- sehr praktisch: große Garage, extra Wohnung mit eigenem Eingang, Garten zur vielseitigen Betätigung bzw. gärtnerischen Verwirklichung
Grundstück: 1.140 m²
Nutzfläche: ca. 306 m² (inkl. Garage und Keller)
Wohnnutzfläche: 216 m² (inkl. Vorraum/Stiegenhaus)
Kaufpreis: EURO 1.190.000,--
Betriebskosten: monatlich ca. € 500,-- (abhängig vom Verbrauch)
Das Ortszentrum, sowie sämtliche Infrastruktureinrichtungen (z.B. Kaufhäuser, Bäcker, Schule, Kindergarten, Arzt, Bank, Gemeindeamt, Tourismusverband), sowie Freizeiteinrichtungen (Spielplätze, Sportplatz, Wanderwege, Langlaufloipe, usw.) sind in kürzester Zeit erreichbar. Der Tauernradweg, sowie das beliebte Piesendorfer „Hinkelsteinbad“ (Freibad) befinden sich praktisch vor der Haustüre!
Die beliebte und familienfreundliche Gemeinde Piesendorf befindet sich im schönen Bezirk Zell am See. Die bekannten Regionen Zell am See-Kaprun, sowie Saalbach und Mittersill bzw. Kitzbühel, mit diversen Ausflugszielen und Skigebieten, sind unweit entfernt. Jederzeit gerne anfragen!
Ihr Ansprechpartner:
Josef Volger
Tel.: 0043 (0)664 2261096
Mail: info@volger.immobilien
Der Vermittler ist als Doppelmakler tätig.
Pläne




































