Beschreibung
Hotel in Baden Kongress Stadt - zentral nähe Strandbad
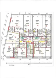
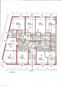
Es steht momentan ein Hotel mit 31 Zimmer mit 47 Betten auf dem Grundstück, man kann aber
das Hotel erweitern oder abreißen und durch einen Neubau ersetzen.
Tiefgarage wäre auch möglich.
Grundstücksgröße 585 m²
Gesamtfläche 1200 m²
Fläche 55% bebaubar
Bauklasse I - III
Bauweise g, o, k
Man könnte auch das Nachbargrundstück, Schloßgasse 40 mit 967 m² um € 450.000,-- dazu erwerben.
Es liegt eine Studie im Anhang bei - 35% bebaubar.
Kein Wohnbau möglich.
Für nähere Informationen und Besichtigungen, steht Ihnen Herr Stubenvoll
gerne unter 0664/30 88 940 zur Verfügung.
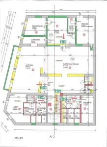
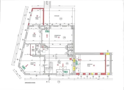
Pläne
Lagebeschreibung
Nähe Strandbad - Zentrum - Helenental - Rosengarten





















