Beschreibung
Willkommen in Ihrem neuen Zuhause in der malerischen Umgebung von Schiefling am Wörthersee! Dieses beeindruckende Einfamilienhaus bietet Ihnen nicht nur einen Rückzugsort, sondern auch ein Lebensgefühl, das Sie sich immer gewünscht haben. Mit einem Kaufpreis von €1.090.000,- erwartet Sie ein gepflegtes und stilvolles Zuhause, das keine Wünsche offenlässt.
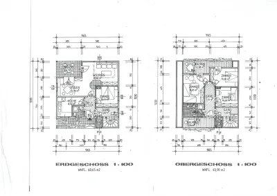
Auf großzügigen 160 m² Wohnfläche erstrecken sich fünf lichtdurchflutete Zimmer, die Ihnen und Ihrer Familie Raum zum Entspannen, Arbeiten und Genießen bieten. Jedes Zimmer ist mit viel Liebe zum Detail gestaltet und lädt dazu ein, Ihre persönlichen Akzente zu setzen. Die offene Raumaufteilung sorgt für ein harmonisches Wohngefühl und lässt viel Platz für gemeinsame Momente.
Der Außenbereich dieser Immobilie ist ebenso beeindruckend wie das Innere. Ein wunderschöner Garten lädt zu entspannten Stunden im Freien ein, während die beiden Balkone und die Terrasse perfekte Rückzugsorte bieten, um die Sonne zu genießen oder den atemberaubenden Blick auf die umliegende Natur zu bewundern. Hier können Sie Ihre Gäste empfangen, Grillabende veranstalten oder einfach nur die frische Luft und die Ruhe der Umgebung genießen.
Das Haus verfügt über zwei moderne Bäder und zwei separate WCs, die den Komfort und die Funktionalität für die ganze Familie erhöhen. So wird der hektische Morgen ganz entspannt und auch Besuch hat genügend Platz.
Die Verkehrsanbindung ist optimal: Mit dem Bus erreichen Sie schnell und bequem die umliegenden Städte und Sehenswürdigkeiten. Schiefling am Wörthersee selbst bietet Ihnen eine Vielzahl an Freizeitmöglichkeiten, von Wassersport über Wandern bis hin zu kulinarischen Erlebnissen in den charmanten Restaurants der Umgebung.
Dieses Einfamilienhaus ist nicht nur ein Ort zum Wohnen, sondern ein Zuhause, das Ihnen und Ihrer Familie unvergessliche Erinnerungen schenken wird. Lassen Sie sich von der Kombination aus modernem Komfort und idyllischer Lage verzaubern und vereinbaren Sie noch heute einen Besichtigungstermin.
Ihr neues Leben am Wörthersee wartet auf Sie!
Sollten Sie Fragen haben oder eine Besichtigung wünschen, ist Herr Artjom Zakaryan von ZAKARYAN & PARTNER (www.zakaryan.at) gerne für Sie unter +43 676 496 3419 oder zp@zakaryan.at auch am Wochenende erreichbar. Das Objekt wurde von uns nicht vermessen, alle Maßangaben beruhen auf Angaben des Eigentümers.
Verbraucherrecht
In Entsprechung des FAGG (Fern- und Auswärtsgeschäfte-Gesetz) und des VRUG (Verbraucherrechte-Richtlinie-Umsetzungsgesetz) ist es uns leider nur mehr möglich Termine nach Erhalt einer schriftlichen Anfrage mit vollständigen Kontaktangaben (Kontaktformular) zu vereinbaren, dies gilt ebenso für die Herausgabe relevanter Informationen wie z.B. der Lage. Sehr gerne sind wir auf diesem Wege bereit, uns um sämtliche Anliegen rasch und kompetent zu kümmern.
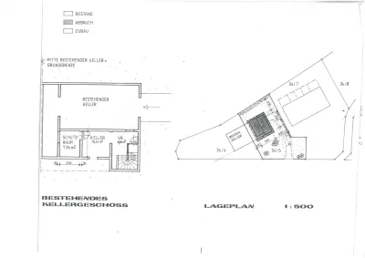
Pläne
Lagebeschreibung
Dieses charmante Einfamilienhaus liegt in der idyllischen Gemeinde Schiefling am Wörthersee, umgeben von der atemberaubenden Natur Kärntens. Die ruhige Lage bietet nicht nur eine friedliche Wohnatmosphäre, sondern auch eine hervorragende Anbindung durch die nahegelegene Bushaltestelle. Genießen Sie die Nähe zum Wörthersee mit seinen zahlreichen Freizeitmöglichkeiten und profitieren Sie von der guten Infrastruktur der Region. Ein perfekter Ort für Familien und Erholungssuchende!































