Beschreibung
Büro und Lagerflächen Leonding ab 2026 zu mieten
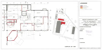
Das Bürohaus befindet sich in Leonding zwischen der Ruflinger Straße und Paschinger Straße, Dies ist ein bevorzugter Gewerbestandort für viele Unternehmen, wie Ebener Industrieöfen, Rosenbauer, Klampfer Building Service, uvm., nicht nur wegen seiner schnellen Anbindung in alle Himmelsrichtungen, sondern auch auf Grund der kurzen, fußläufigen Erreichbarkeit der Bus- und Bahnstation (Lilo).
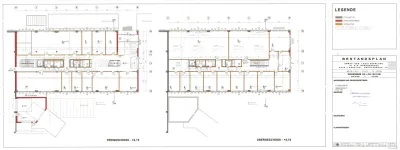
Die Büro- und Lagerflächen im Gesamtausmaß von ca. 2.074 m² gliedern sich wie folgt auf:
Bürofläche (EG und 1.OG):
ca. 1.184 m²
Lagerfläche UG:
890 m²
Direkt vor dem Bürohaus befinden sich ausreichend Parkplätze, welche nach Bedarf angemietet werden können.
Mietpreis: auf Anfrage
Bei Fragen als auch für eine Besichtigung vor Ort, stehen wir gerne jederzeit zur Verfügung.
+++Direkt vom Eigentümer - kein Vermittlungshonorar+++
Pläne
Lagebeschreibung
Leonding/ Ruflinger Straße, schnelle Anbindung an die B1/ alle




