Beschreibung
Bad: Hofgastein
(Auf-) leben inmitten der Alpen
PROVISIONSFREI für den Käufer
_
Wohnen, wie das Leben spielt.
Dieses Wohnprojekt verbindet leistbaren Wohnraum mit hoher Lebensqualität – und erfüllt dabei unterschiedlichste Wohnbedürfnisse auf stilvolle Weise für jede Lebensphase.
Insgesamt entstehen 24 zeitgemäß geplante Zwei-, Drei- und Vierzimmerwohnungen mit Wohnflächen von ca. 41 bis 97 m². Die gut gestalteten Grundrisse bieten viel Raum zur Entfaltung und punkten mit Funktionalität und Komfort.
Hochwertige Materialien und eine durchdachte Raumaufteilung schaffen eine angenehme Wohnatmosphäre: Großzügige Schlafzimmer, moderne Bäder mit zeitloser Ausstattung sowie praktische Details wie geflieste Eingangsbereiche und Abstellräume sorgen für Alltagstauglichkeit auf hohem Niveau. Jede Wohnung verfügt über eine attraktive Außenfläche – Balkon oder Terrasse – mit Ausblick auf die umliegende Alpenlandschaft.
Ein besonderes Highlight: Die naturnahe Gestaltung und nachhaltige Bauweise. Die Architektur orientiert sich an der Umgebung und setzt auf ökologische Materialien – für ein gesundes Wohnklima und ein gutes Gefühl beim Einziehen.
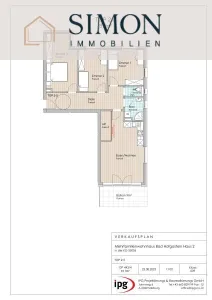
Wohnung Top 2-5:
-
Wohnfläche: ca. 87 m²
-
Balkon: ca. 9 m²
-
4 Zimmer
Highlights auf einen Blick:
-
Wohnen in den Alpen
-
herrliche Ruhelage
-
Hauptwohnsitz
-
jede Wohnung mit Außenbereich: Gartenanteil, Balkon oder Terrasse
-
Ökologische Bauweise: Ziegel-Massiv mit Wärmedämmsystem für optimale Energieeinsparung
-
Böden: Parkett, Feinsteinzeug, keramische Fliesen in Bädern, Plattenbelag im Außenbereich
-
Heizung: Fernwärme, Fußbodenheizung, Photovoltaik
-
Kellerabteil als Lagerraum
-
Lift und Kinderspielplatz
Parkmöglichkeiten:
- Tiefgaragenplatz: € 22.000,-
- Freistellplatz: Diese sind bereits alle vergriffen.
Pro Wohnung ist der Kauf von jeweils zwei Tiefgaragenstellplätzen verpflichtend.
Der Erwerb ist Provisionsfrei für den Käufer.
Wir weisen darauf hin, dass zwischen dem Vermittler und dem zu vermittelnden Dritten ein familiäres oder wirtschaftliches Naheverhältnis besteht.
Der Vermittler ist als Doppelmakler tätig.
Pläne
Lagebeschreibung
Bad Hofgastein, ein idyllischer Kurort im Herzen des Gasteinertals in Österreich, ist bekannt für seine malerische alpine Landschaft und erstklassigen Wellness-Einrichtungen. Umgeben von den majestätischen Hohen Tauern bietet dieser Ort eine einzigartige Kombination aus natürlicher Schönheit, Ruhe und modernem Komfort. Die Thermalquellen von Bad Hofgastein sind seit Jahrhunderten für ihre heilenden Eigenschaften bekannt und ziehen Besucher aus aller Welt an. Neben dem Gesundheitstourismus ist der Ort auch ein Paradies für Wintersportler, mit ausgezeichneten Skigebieten und zahlreichen Pisten. Im Sommer verwandelt sich die Gegend in einen Hotspot für Wanderer, Radfahrer und Naturliebhaber. Die lokale Architektur spiegelt eine harmonische Mischung aus Tradition und Moderne wider, mit charmanten alpinen Chalets und modernen Einrichtungen. Bad Hofgastein bietet eine hohe Lebensqualität und eine ausgezeichnete Infrastruktur.
Anbieter kontaktieren
Weitere Objekte in diesem Projekt
Leben inmitten der Alpen - Bauprojekt Bad: Hofgastein
Nutzfläche
Zimmer
Kaufpreis
Leben inmitten der Alpen - Bauprojekt Bad: Hofgastein
Nutzfläche
Zimmer
Kaufpreis
Leben inmitten der Alpen - Bauprojekt Bad: Hofgastein
Nutzfläche
Zimmer
Kaufpreis
Leben inmitten der Alpen - Bauprojekt Bad: Hofgastein
Nutzfläche
Zimmer
Kaufpreis










