Beschreibung
Die helle Maisonettenwohnung mit Flair befindet sich am Lendplatz im Dachgeschoss (ohne Lift). Mit einer großzügigen Fläche von 88,55 m² erstreckt sich die Wohnung über drei lichtdurchflutete Räume und bietet Ihnen Raum für individuelle Gestaltungsmöglichkeiten. Die Raumaufteilung von Vorraum, Bad mit Dusche, separates WC, Küche mit einem hellen Wohn-Essbereich, 1 Zimmer sowie eine geräumige Galerie in dem oberen Bereich lässt keine Wünsche offen. Die offene Wohnküche ist der perfekte Ort, um kulinarische Köstlichkeiten zu kreieren und gesellige Abende zu verbringen.
Die Heizkosten werden von der Energie Steiermark (Fernwärme) vorgeschrieben.
Die Verkehrsanbindung könnte nicht besser sein: In unmittelbarer Nähe finden Sie eine Haltestelle für Bus und Straßenbahn sowie den Bahnhof, der Ihnen eine schnelle Anbindung an die gesamte Region ermöglicht. Ob Sie zur Arbeit pendeln oder die Stadt erkunden möchten – hier sind Sie immer bestens vernetzt.
Die Umgebung bietet alles, was das Herz begehrt. Ärzte, Apotheken und ein Krankenhaus befinden sich in der Nähe, sodass Sie sich um Ihre Gesundheit keine Sorgen machen müssen. Bildungseinrichtungen wie Schulen, Kindergärten und sogar eine Universität sind ebenfalls in kurzer Distanz erreichbar. Für den täglichen Bedarf stehen Ihnen Supermärkte, eine Bäckerei und ein Einkaufszentrum zur Verfügung, die Ihnen das Leben erleichtern.
Die abgebildete Einrichtung ausschließlich der besseren Raumvorstellung im Rahmen einer virtuellen Visualisierung (Staging) dient, die Möbel werden nicht mitvermietet.
Wir weisen darauf hin, dass zwischen dem Vermittler und dem zu vermittelnden Dritten ein familiäres oder wirtschaftliches Naheverhältnis besteht.
Der Immobilienmakler erklärt, dass er – entgegen dem in der Immobilienwirtschaft üblichen Geschäftsgebrauch des Doppelmaklers – einseitig nur für den Vermieter tätig ist.
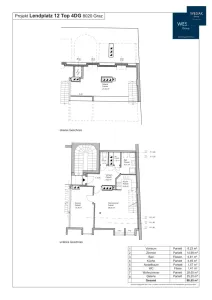
Pläne
Lagebeschreibung
Die Wohnung liegt in einer zentralen Lage und ist gut an das öffentliche Verkehrsnetz angeschlossen. In unmittelbarer Nähe befinden sich verschiedene Einrichtungen des täglichen Bedarfs wie Ärzte, Apotheken, ein Krankenhaus usw.. Auch Einkaufsmöglichkeiten sind in der Umgebung vorhanden, darunter ein Supermarkt, das Styria Center, der Volksgarten, das Orpheum sowie der Südtiroler Platz.
 
                                     
                             
                            
 
                    





















