Beschreibung
LIV – Linzerberg | Wohnen und Investieren nahe Linz - in Engerwitzdorf
Am bekannten Hang des Linzerbergs – mit Ausrichtung ins Grüne und perfekter Verbindung nach Linz und Urfahr – entsteht mit LIV – Linzerberg ein architektonisch markantes Wohnhaus für Menschen, die Privatsphäre, Qualität und gestalterische Präsenz schätzen.
Mit nur 8 Eigentumswohnungen in kompakter Struktur, großzügigen privaten Außenflächen und einer klaren Formensprache bietet dieses Projekt bewusst Raum – zum Ankommen, Abschalten und stilvollen Wohnen im Alltag.
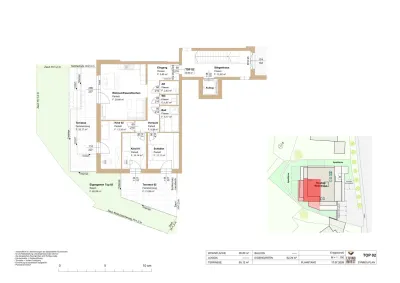
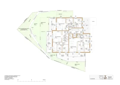
Die Wohnungen sind konsequent nach Süden orientiert, abgewandt von der nordseitigen Zufahrt. Elegante Rauchglasgeländer unterstreichen den architektonischen Anspruch, während großzügige Terrassenflächen – bis zu 55 m² – und helle Innenräume das Wohnerlebnis prägen.
Das Projekt im Überblick:
- Insgesamt 8 Eigentumswohnungen mit 3–4 Zimmern
- Wohnflächen von ca. 75 bis 100 m²
- Jede Einheit bietet großzügige, südseitige Freibereiche – wahlweise als Eigengarten, Terrasse oder Balkon (teils überdacht, bis zu 55 m²)
- Zeitlose Architektur mit Rauchglasgeländern und südseitiger Ausrichtung
- Ziegelmassivbauweise in energieeffizientem Niedrigenergiekonzept
- Photovoltaikanlage am Dach zur Reduktion der Betriebskosten
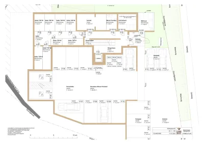
- Überdachtes Parkdeck mit barrierefreiem Liftzugang zu allen Einheiten
- Provisionsfreier Kauf direkt vom Bauträger
Lage & Umgebung:
Die Lage am Linzerberg bietet ein ausgewogenes Verhältnis aus Rückzug und Anbindung: Die Wohnungen sind zum Hang nach Süden hin geöffnet, die Zufahrt zum Wohnhaus liegt rückversetzt an der Nordseite des Grundstücks.
Die Nähe zu Linz, Urfahr und Gallneukirchen macht das Projekt besonders attraktiv für Berufspendler:innen, Familien und alle, die im Grünen wohnen und doch urban angebunden sein möchten. Nahversorger, Schulen und Freizeitmöglichkeiten sind in wenigen Fahrminuten erreichbar.
Projektstatus:
Geplante Fertigstellung: Ende 2027
Übergabe im Wohnungseigentum inkl. Parifikat & Nutzwertgutachten
Stellplätze sind bereits im Kaufpreis enthalten.
Wohnen mit Anspruch – nur acht Mal, bei LIV - Linzerberg.
Jetzt unverbindlich anfragen und beraten lassen!
Pläne
Lagebeschreibung
Engerwitzdorf - diese Adresse vereint die Vorteile einer gut erreichbaren Verkehrsanbindung mit naturnaher Umgebung und guter Lebensqualität. Dank der Nähe zur Landeshauptstadt Linz – nur wenige Fahrminuten entfernt – profitieren Sie von einer idealen Infrastruktur. Schulen, Kindergärten, Nahversorger und diverse Freizeiteinrichtungen befinden sich in unmittelbarer Umgebung und machen den Standort besonders interessant. Auch die Anbindung an den öffentlichen Verkehr ist sehr gut: Bushaltestellen sowie die Nähe zur Autobahnauffahrt A7 bieten beste Mobilität sowohl in Richtung Linz als auch ins Mühlviertel. Die Umgebung ist geprägt von Einfamilienhäusern und Grünflächen, was eine angenehme Wohnatmosphäre schafft – ideal für alle, die stadtnah leben und dennoch das Ländliche genießen möchten.
Anbieter kontaktieren
Weitere Objekte in diesem Projekt
LIV - Linzerberg | Exklusives Penthouse mit großer Dachterrasse – Top 08
Wohnfläche
Zimmer
Kaufpreis
LIV - Linzerberg | Dachgeschoss-Flair mit Charakter & Gemütlichkeit - TOP 07
Wohnfläche
Zimmer
Kaufpreis
LIV - Linzerberg | Offenes Raumgefühl mit Rückzugsqualität - TOP 06
Wohnfläche
Zimmer
Kaufpreis
LIV - Linzerberg | Sonnige Familienwohnung mit überdachtem Balkon - TOP 05
Wohnfläche
Zimmer
Kaufpreis












