Beschreibung
Für Verwöhnte, die gerne im Grünen wohnen möchten....
Noch dieses Jahr bezugsfertig wird dieses Traumobjekt in begehrter Lage Klosterneuburgs. Diese Immobilie ist perfekt für Familien und Paare geeignet, die das Besondere suchen und ihren Wohntraum in einer ruhigen und naturnahen Umgebung verwirklichen möchten. Überzeugen Sie sich selbst von diesem einzigartigen Juwel in Weidling und vereinbaren Sie noch heute einen Besichtigungstermin
Raumaufteilung, ca 302,62 m² Wfl:
Aktuell sind 6 Schlafzimmer geplant, es sind bis zu 8 Zimmer möglich!
Erdgeschoss:
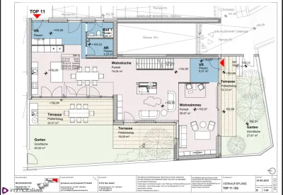
Vorzimmer, ca 6,51 m²
Wohnküche, ca 74,04 m²
Wohnzimmer, ca 26,87 m²
Vorraum 2, ca 11,02 m²
kleines Bad, mit Dusche und WC, ca 3,88 m²
AR, ca 4,23 m²
Terrasse, ca 22,01 m²
Terrasse, ca 15,03 m²
Terrasse, ca 13,12 m²
1.Stock:
Zimmer 1, ca 18,49 m²
Zimmer 2, ca 12,34 m²
Zimmer 3, ca 12,88 m²
Zimmer 4, ca 13,49 m², mit Ausgang auf die Terrasse
Zimmer 5, ca 11,99 m², mit Ausgang auf die Terrasse
Waschküche, ca 6,43 m²
Bad, mit Fenster und Wanne, ca 8,88 m²
Gang/ Diele, ca 25,82 m²
Terrasse, ca 22,13 m² (Zugang über Zimmer 4 und 5)
DG:
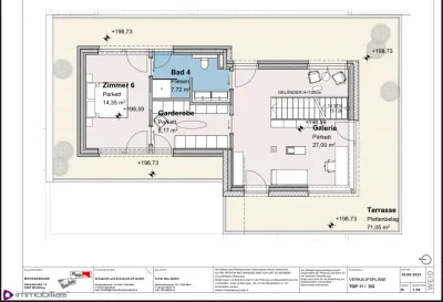
Zimmer 6, ca 14,35 m²
Galerie, ca 27 m²
Bad, ca 7,72 m²
Garderobe, ca 8,17 m²
rundum laufende Terrasse, von allen Räumlichkeiten zu betreten, ca 71,05 m²
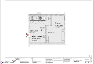
Kellerabteil, ca 45,80 m²
Ausstattung:
Fußbodenheizung in allen Räumen, Echtholz-Parkett Eiche, Feinstein Fliesen im Bad, WC, Vorraum und Abstellraum, elektrische Raffstores südseitig, Laufen und Grohe Sanitärausstattung, WK2 SicherheitstürenKellerabteil
Kinderwagenraum im UG, Müllraum nähe Eingangsbereich, Fahrradabstellplätze im Innenhof und Garage, Tiefgarage mit 11 Stellplätzen
Der Verkaufspreis versteht sich in belagsfertiger Ausführung; die schlüsselfertige Ausführung (laut Bau- und Ausstattungsbeschreibung) - beläuft sich auf € 2.410.000.-.
Für alle weiteren Fragen und eine unverbindliche Besichtigung stehe ich Ihnen gerne zur Verfügung:
Andrea Höferstock
T: 0699 1 4444 700
E: office@immobilias.at
Viele weitere Angebote finden Sie auf unserer Homepage www.immobilias.at
!! Wir möchten Sie informieren – Maklervertrag Bestimmungen (FAGG - Fern- u. Auswärtsgeschäfte-Gesetz - - VRUG - Verbraucherrechte Richtlinie-Umsetzungsgesetz) !!
Alleine durch die Unterfertigung dieses Maklervertrages und die Besichtigung von Objekten entstehen Ihnen keine Kosten.
Erst mit dem Abschluss eines Kaufvertrages und/ oder eines Mietvertrages tritt Verdienstlichkeit ein und es wird die Provisionszahlungspflicht iSd Provisionsvereinbarung dieses Vertrages ausgelöst! Wenn der Kaufvertrag/ Mietvertrag nicht zustande kommt, bleibt unsere Tätigkeit für Sie vollkommen kostenlos.
Bitte haben Sie dafür Verständnis, dass wir Ihnen seit dem 13. Juni 2014 aufgrund der neuen EU-Richtlinie Unterlagen und Informationen zu unseren Objekten erst dann übersenden können, wenn Sie bestätigen, dass Sie unser vorzeitiges Tätigwerden wünschen und über Ihre Rücktrittsrechte aufgeklärt wurden. Hierfür erhalten Sie nach Ihrer Anfrage eine Email mit den entsprechenden Unterlagen und einem Link, um diese Punkte zu bestätigen.
Vielen Dank!
Bitte beachten Sie, dass wir aufgrund der Nachweispflicht gegenüber dem Eigentümer und um Ihre Rechte zu wahren nur Anfragen mit vollständigen Kontaktdaten (Name, Anschrift und Telefonnummer) bearbeiten können und auch nur in diesem Falle Auskünfte über Objektunterlagen und die genauen Liegenschaftsadresse geben dürfen. Wir bitten um größtmögliche Diskretion und ersuchen Sie, Innenbesichtigungen und Verhandlungen ausschließlich über uns durchzuführen.
Nebenkosten lt. Nebenkostenübersicht
Der Vollständigkeit halber halten wir fest, dass wir Ihnen bei Anmietung/Ankauf eines von uns namhaft gemachten Objektes durch Sie oder einen durch Sie namhaft gemachten Dritten bzw. bei beidseitiger Willensübereinstimmung eine Vermittlungsprovision in der Höhe von 3 Bruttomonatsmieten bei Gewerbeimmobilien, 2 Bruttomonatsmieten bei Wohnimmobilien bzw. 3 % des Kaufpreises zuzüglich der gesetzlichen Umsatzsteuer in Rechnung stellen (Honorarverordnung für Immobilienmakler, BGBl. Nr. 262 und 297/1996).
Dieses Angebot ist unverbindlich und freibleibend. Die Angaben erfolgen aufgrund der Informationen und Unterlagen, die uns vom Eigentümer und/oder Dritten zur Verfügung gestellt werden und sind ohne Gewähr. Im Übrigen gelten die allgemeinen Geschäftsbedingungen sowie die Verordnung des BM für wirtschaftliche Angelegenheiten über Standes- und Ausübungsregeln für Immobilienmakler, BGBl 297/96.
Alle Angaben im Angebot basieren auf Informationen und Unterlagen des Eigentümers und erfolgen nach bestem Wissen, jedoch ohne Gewähr auf Richtigkeit.
Noch nichts gefunden? Wir informieren Sie über geeignete Immobilienangebote noch vor allen anderen.
Legen Sie jetzt Ihren individuellen Suchagenten unter folgendem Link an. Wir schicken Ihnen passende Immobilien exklusiv vorab zu.
Suchagent anlegen - https://immobilias-realitaeten.service.immo/registrieren/de
Wir weisen darauf hin, dass zwischen dem Vermittler und dem zu vermittelnden Dritten ein familiäres oder wirtschaftliches Naheverhältnis besteht.
Der Vermittler ist als Doppelmakler tätig.
!! Wir möchten Sie informieren – Maklervertrag Bestimmungen !!
(FAGG - Fern- u. Auswärtsgeschäfte-Gesetz - VRUG - Verbraucherrechte Richtlinie-Umsetzungsgesetz)
Alleine durch die Unterfertigung dieses Maklervertrages und die Besichtigung von Objekten entstehen Ihnen keinerlei Kosten.
Erst mit dem Abschluss eines Kaufvertrages und/ oder eines Mietvertrages tritt unsere Verdienstlichkeit ein und es wird die Provisionszahlungspflicht iSd Provisionsvereinbarung dieses Vertrages ausgelöst!
Wenn der Kaufvertrag/ Mietvertrag nicht zustande kommt, bleibt unsere Tätigkeit für Sie vollkommen kostenlos!
Bitte haben Sie dafür Verständnis, dass wir Ihnen seit dem 13. Juni 2014 aufgrund der neuen EU-Richtlinie Unterlagen und Informationen zu unseren Objekten erst dann übersenden können, wenn Sie bestätigen, dass Sie unser vorzeitiges Tätigwerdenwünschen und über Ihre Rücktrittsrechte aufgeklärt wurden. Hierfür erhalten Sie nach Ihrer Anfrage eine Email mit den entsprechenden Unterlagen und einem Link, um diese Punkte zu bestätigen.
Vielen Dank!
Bitte beachten Sie, dass wir aufgrund der Nachweispflicht gegenüber dem Eigentümer und um Ihre Rechte zu wahren nur Anfragen mit vollständigen Kontaktdaten (Name, Anschrift und Telefonnummer) bearbeiten können und auch nur in diesem Falle Auskünfte über Objektunterlagen und die genauen Liegenschaftsadresse geben dürfen. Wir bitten um größtmögliche Diskretion und ersuchen Sie, Innenbesichtigungen und Verhandlungen ausschließlich über uns durchzuführen.
Nebenkosten lt. Nebenkostenübersicht
Der Vollständigkeit halber halten wir fest, dass wir Ihnen bei Anmietung/Ankauf eines von uns namhaft gemachten Objektes durch Sie oder einen durch Sie namhaft gemachten Dritten bzw. bei beidseitiger Willensübereinstimmung eine Vermittlungsprovision in der Höhe von 3 Bruttomonatsmieten bei Gewerbeimmobilien, 2 Bruttomonatsmieten bei Wohnimmobilien bzw. 3 % des Kaufpreises zuzüglich der gesetzlichen Umsatzsteuer in Rechnung stellen (Honorarverordnung für Immobilienmakler, BGBl. Nr. 262 und 297/1996).
Dieses Angebot ist unverbindlich und freibleibend. Die Angaben erfolgen aufgrund der Informationen und Unterlagen, die uns vom Eigentümer und/oder Dritten zur Verfügung gestellt werden und sind ohne Gewähr.
Im Übrigen gelten die allgemeinen Geschäftsbedingungen sowie die Verordnung des BM für wirtschaftliche Angelegenheiten über Standes- und Ausübungsregeln für Immobilienmakler, BGBl 297/96.
Alle Angaben im Angebot basieren auf Informationen und Unterlagen des Eigentümers und erfolgen nach bestem Wissen, jedoch ohne Gewähr auf Richtigkeit.
Pläne











































