Beschreibung
Dieses einzigartige Atelier mit Liebhabercharakter lässt keine Wünsche offen. Durch die großzügig angelegten Glasfronten lassen Sie die Natur ins Haus und es bietet sich ein toller Blick ins Grüne. Erholung für Mind & Body sind mit dieser Immobilie garantiert!
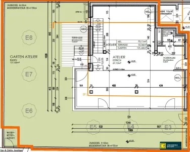
Die 2015 erbaute Liegenschaft befindet sich in einer ruhigen Sackgasse und berücksichtigt mit einer Wohnnutzfläche von rund 136m² und einem großzügig angelegten Garten von 120 m² alle Anforderungen einer erstklassigen Immobilie.
Sie gelangen durch einen barrierefreien Zugang in das im Erdgeschoß befindliche Atelier, welches durch den gut dimensionierten Grundriss optimal zugänglich ist!
Das in Niedrigenergiebauweise errichtete Objekt sorgt sowohl im Winter durch eine Fußbodenheizung im EG und Radiatoren im Keller als auch im Sommer mittels elektrisch bedienbaren Raffstoren und Klimaanlage für eine angenehme Atmosphäre.
Den Kellerbereich kann man aufgrund einer großzügigen Treppe und einer wunderschönen Glasfläche an der Decke sehr gut als Meetingraum nutzen. Diese Immobilie ist durch ihren loftartigen Charakter und ihre offen angelegten Räumlichkeiten ideal für gewerbetreibende Architekten, Rechtsanwälte, Bauträger oder auch Fotographen.
Das Atelier ist mit einer Cat 7 Verkabelung ausgestattet, Glasfaser kann über A1 eingeleitet werden. Zwei Kfz- Stellplätze stehen zur Verfügung und sind zusätzlich zu erwerben!
Pläne
Lagebeschreibung
Diese Immobilie befindet sich in 1230 Wien, in der Nähe von Alterlaa. Insbesondere die Lage mit vielen Annehmlichkeiten in der Nähe zeichnen diesen Stadtteil aus. In nur wenigen Gehminuten erreichen Sie einen Arzt, eine Apotheke, ein Krankenhaus, eine Schule, einen Kindergarten, einen Supermarkt, eine Bäckerei, eine Bank sowie ein Einkaufszentrum.














