Beschreibung
Unbefristet vermietetes Geschäftslokal mit toller Rendite! 5%!!!
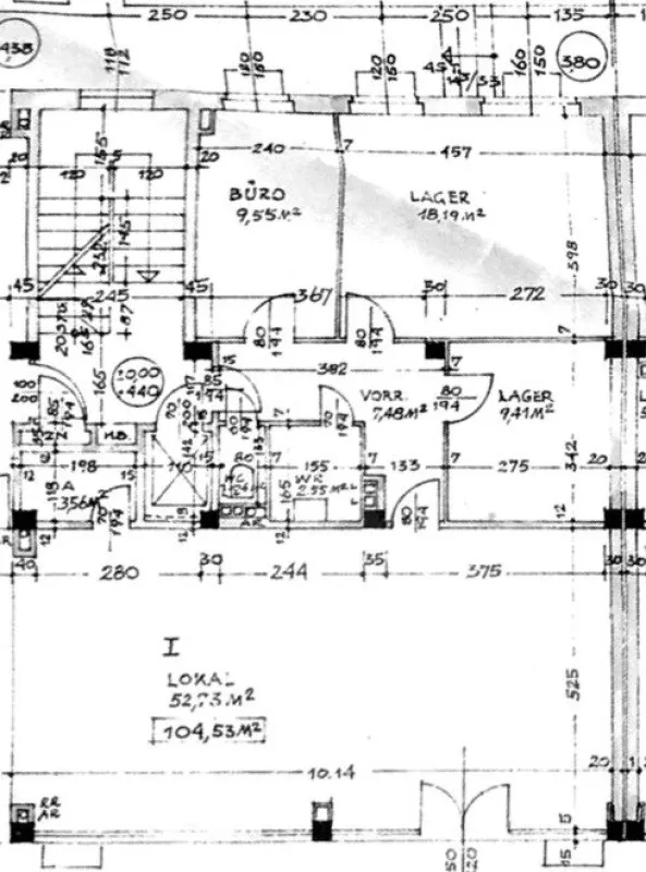
Das Geschäftslokal mit ca. 103 m² befindet sich im Erdgeschoss einer Neubau-Wohnhausanlage. Ebenfalls befinden sich eine Tierklinik sowie eine Fahrschule im gleichen Komplex.
Die großzügige Fläche bietet genügend Platz für Ihre individuellen Geschäftsideen und ermöglicht eine optimale Präsentation Ihrer Produkte und Dienstleistungen. Die großen Schaufenster sorgen zudem für eine optimale Sichtbarkeit und Aufmerksamkeit von Passanten.
Eine weitere Stärke dieser Immobilie ist die ausgezeichnete Verkehrsanbindung. Mit Bus, U-Bahn, Straßenbahn am nahen Bahnhof Praterstern sind Sie und Ihre Kunden bestens angebunden. Auch für Mitarbeiter, die von außerhalb anreisen, ist die Anbindung ideal.
Es besteht derzeit ein unbefristetes Mietverhältnis (Sex-Shop). Der Jahresnettoertrag beträgt 14.766,96 €, wodurch sich eine Rendite von 5% ergibt.
Überzeugen Sie sich selbst von dieser einzigartigen Immobilie und lassen Sie sich von den Möglichkeiten begeistern, die Ihnen dieses Geschäftslokal bietet.
Nutzen Sie die Chance bei dieser renditestarken Immobilie an einem der gefragtesten Standorte in Wien!
Bei konkretem Interesse erhalten Sie selbstverständlich sämtliche weiterführende Dokumente zu, wie:
- Grundbuchauszug
- Wohnungseigentumsvertrag
- Nutzwertgutachten
- Eigentümerversammlungsprotokoll
- etc...
Nebenkosten
Grundbucheintragung: 1,1% d.KP.
Grunderwerbssteuer: 3,5% d.KP.
Maklerprovision: 3% d.KP. + 20% USt.
Kaufvertragshonorar: 1,2% zzgl. Barauslagen und USt. | Die Errichtung und Durchführung des Kaufvertrages erfolgt durch die Kanzlei Tiefenthaler Gnesda Rechtsanwälte GmbH.
Wir weisen darauf hin, dass zwischen dem Vermittler und dem zu vermittelnden Dritten ein familiäres oder wirtschaftliches Naheverhältnis besteht.
Pläne
Lagebeschreibung
Das Geschäftslokal befindet sich im 2. Wiener Gemeindebezirk in einer frequentierten Gegend nahe des Zentrums von Wien. Die Lage zeichnet sich durch eine gute Infrastruktur aus, mit zahlreichen Einrichtungen wie dem Wurschtel-Prater in der nahen Umgebung. Die öffentliche Anbindung ist durch die nahe gelegene U2 und U1 Station "Praterstern" optimal gegeben.


