Beschreibung
Modernes Büro in Vorchdorf zum Verkauf
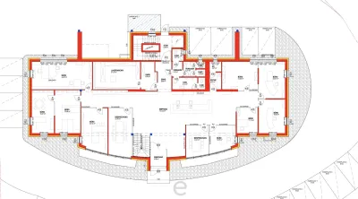
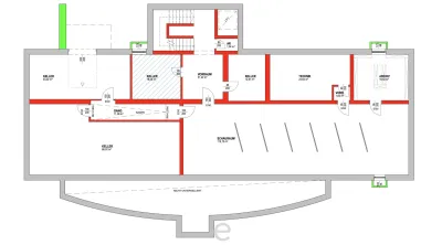
Zum Verkauf steht eine großzügige Bürofläche mit insgesamt 1035,85m² im Erdgeschoß und im 1. Obergeschoß eines modernen Gebäudes in Vorchdorf. Die Immobilie befindet sich direkt am Kreisverkehr bei der Autobahnabfahrt Vorchdorf und bietet daher eine optimale Verkehrsanbindung.
Eigenschaften:
- Baujahr: 2008, mit einem Zubau auf der Gebäuderückseite im Jahr 2013
- Sehr niedrige Betriebskosten
- Beheizung mittels Wärmepumpe, klimatisiert
Raumaufteilung Erdgeschoss:
- neun Büros
- Zwei Besprechungsräume
- Eine Küche
- Großzügiger Empfangsbereich
- Ein Lager/ Archiv
Raumaufteilung 1. Obergeschoss:
- neun Büros
- ein Besprechungsräume
- WCs
- Abstellraum
- Küche
- Balkon mit 13,33m²
Bis Jahresende beträgt der Kaufpreis beträgt € 3.300.000,- zuzüglich Umsatzsteuer.
Für weitere Informationen und Besichtigungen kontaktieren Sie bitte Stefan Schmiedseder unter der Telefonnummer 0699/17204805. Bei Internetanfragen ist die Angabe von vollständigem Namen, Adresse und Telefonnummer erforderlich (Nachweispflicht gegenüber dem Verkäufer).
Wir freuen uns darauf, Ihnen dieses moderne Büro näher vorzustellen!
Noch nichts gefunden? Wir informieren Sie über geeignete Immobilienangebote noch vor allen anderen.
Legen Sie jetzt Ihren individuellen Suchagenten unter folgendem Link an. Wir schicken Ihnen passende Immobilien exklusiv vorab zu.
Suchagent anlegen - https://eurea-real-estates.service.immo/registrieren/de
Pläne





















