Beschreibung
WEIHNACHTEN IM NEUEN HAUS! BELAGSFERTIGSTELLUNG IM OKTOBER 2025.
AUSSTATTUNG AUF HÖCHSTEM NIVEAU!
HERVORRAGENDE FAMILIENWOHNLAGE.
NÄHE GYMNASIUM SIMONSGASSE (300 METER)!
ZIEGEL-NEUBAU INKLUSIVE PHOTOVOLTAIKANLAGE - HIER PRODUZIEREN SIE IHREN EIGENEN STROM!
Auf dem Flachdach wird eine hochwertige Photovoltaikanlage errichtet, welche Ihre Abhängigkeit vom teuren Netzstrom reduziert. Mit der Leistung von 4 Kilowatt Peak (kWp) kann ein guter Teil des eigenen Strombedarfs gedeckt und die überschüssige Energie in das Energienetz eingespeist werden. Die Anlage setzt sich aus einem Wechselrichter und den PV-Paneelen zusammen.
SÜD-WESTHAUS MIT 149 m² NUTZFLÄCHE!
5 ZIMMER - 2 BÄDER - 3 TOILETTEN
INKLUSIVE ROLLLÄDEN, 300 LITER WARMWASSERSPEICHER UND BEHEIZTEM KELLER
PROVISIONSFREI FÜR DEN KÄUFER.
GROSSARTIGE AUSSTATTUNG - HOCHWERTIGE MARKENQUALITÄT
- Außen- UND INNENWÄNDE in Ziegelmassivbauweise
- 3-Scheiben verglaste KSt-ALU-Fenster von INTERNORM
- Dachflächenfenster von VELUX
- Luftwärmepumpe von STIEBEL ELTRON
- Fußbodenheizung in ALLEN Geschossen - auch im Keller!
LAGE
In verkehrstechnisch gut angebundener Grünlage werden insgesamt 5 Häuser in solider Ziegelmassivbauweise errichtet. Jedes Haus bietet einen Keller, Garten und Terrasse. Bei dem Grundstück handelt es sich um Eigengrund. Das Haus bietet erstklassige Baumeister-Bauqualität und umfangreiche Sonderausstattung.
Der Standort zeichnet sich durch gute öffentliche Erreichbarkeit aus. In 2-8 Gehminuten Entfernung (110-550 Meter) halten 5 Autobuslinien, mit denen Sie per Direktverbindung die U2 und die U1 erreichen. Diverse Einkaufsmöglichkeiten, Kindergärten, Schulen, Ärzte und Restaurants befinden sich in der Nähe.
ECKDATEN 45/TOP 2
- 149 m² Nutzfläche
- 38 m² Keller
- 112 m² Wohnnutzfläche (Dachgeschoss: 7,7 m² liegen unter 1,5 Meter Raumhöhe)
- 11 m² Terrasse
RÄUMLICHKEITEN
Errichtet wird ein ansprechendes Eckhaus (EINZELHAUS in gekuppelter Bauweise). Das Haus orientiert sich Richtung Westen und Süden.
Die Raumaufteilung ist großartig, es gibt 5 Zimmer (4 Schlafzimmer), 2 Badezimmer und 3 Toiletten. Zusätzlicher Stauraum findet sich im Keller.
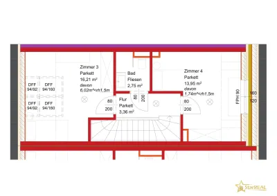
GRUNDRISS
Erdgeschoss: Vorraum, Wohnküche, WC
Obergeschoss: Vorraum, 2 Schlafzimmer, Badezimmer
Dachgeschoss: Vorraum, 2 Schlafzimmer, Badezimmer
Keller: Technik-/Abstellraum, Kellerraum
AUSSTATTUNGSDETAILS
SOLIDE BASISAUSSTATTUNG
- Ziegelqualität (Außen- UND Innenwände - auch nicht tragende Wände)
- Vollwärmeschutz EPS F-PLUS
- Keller mit Fußbodenheizung
FENSTER/TÜREN
- Elektrische Außenrollläden in den Wohnräumen (Firma SCHLOTTERER)
- 3-fach verglaste KSt-ALU-Fenster der Firma INTERNORM
AUSSENANLAGEN FERTIG GESTELLT
- Zaunanlagen
- Humusierung
- Zufahrt/Stellplätze/Wege bereits gepflastert
HEIZUNG/KÜHLUNG
- Luftwärmepumpe von STIEBEL ELTRON (Heizanlage OHNE Außengerät)
- Fußbodenheizung in ALLEN GESCHOSSEN (auch im Keller)
- Kühlung über Luftwärmepumpe (Stützkühlung)
- Externer Warmwasserspeicher mit 300 Liter
ÖFFENTLICHE VERKEHRSMITTEL
- 110 Meter/ca. 2 Gehminuten: Haltestelle 98A (18 Fahrminuten bis U2 Aspernstraße)
- 300 Meter/ca. 4 Gehminuten: Haltestelle 99A+99B (12 Fahrminuten bis U2 Seestadt - ACHTUNG: DERZEIT GEÄNDERTER FAHRPLAN - im Regelbetrieb 9 Fahrminuten bis U2 Aspern Nord)
- 550 Meter/ca. 8 Gehminuten: Haltestelle 26A (9 Fahrminuten bis U2 Aspernstraße, 24 Fahrminuten bis U1 Kagran)
- 550 Meter/ca. 8 Gehminuten: Haltestelle N26 (12 Fahrminuten von U2 Donauspital, 23 Fahrminuten vo U1 Kagran)
EINKAUFEN
- ca. 500 Meter/7 Gehminuten: Supermarkt
- ca. 800 Meter/12 Gehminuten: Billa
- ca. 1100 Meter/14 Gehminuten: Spar, Pagro
SCHULEN UND KINDERBETREUUNG
- ca. 250 Meter/3 Gehminuten: Kindergarten und Hort
- ca. 300 Meter/4 Gehminuten: Gymnasium Simonsgasse
- ca. 500 Meter/7 Gehminuten: Volksschule
KOSTENÜBERBLICK
€ 579.000,- Kaufpreis belagsfertig inklusive Photovoltaikanlage
€ 19.000,- KFZ-Stellplatz (inklusive Vorbereitung für Elektroladestation für Ihr Elektroauto)
3,5% Grunderwerbssteuer
1,1% Eintragungsgebühr (ACHTUNG: Änderung im Rahmen des Baupakets der Bundesregierung)
1,5% zzgl. USt für Vertragserrichtung/Treuhandabwicklung
Dieses Haus dürfen wir Ihren PROVISIONSFREI für den Käufer anbieten.
Bei telefonischen Rückfragen erreichen Sie unser Büro unter 01/997 2881, Frau Deutschbauer unter 0699/106 36 585 und Frau Lenhardt unter 0699/151 46 733.
Wir weisen darauf hin, dass zwischen dem Vermittler und dem zu vermittelnden Dritten ein familiäres oder wirtschaftliches Naheverhältnis besteht.
Der Vermittler ist als Doppelmakler tätig.
Pläne












































