Beschreibung
Dieses atemberaubende Penthouse definiert exklusives Wohnen auf höchstem Niveau. Hochwertigste Materialien, eine durchdachte Raumaufteilung und eine spektakuläre Dachterrasse mit privater Sauna machen dieses Anwesen zu einer absoluten Rarität. Der atemberaubende Rundumblick reicht von den Wiener Bergen bis hin zum berühmten Riesenrad – ein Panorama, das jeden Tag aufs Neue fasziniert!
Historischer Charme trifft auf moderne Eleganz
Das Wohnhaus wurde 2015 umfassend revitalisiert, wobei großer Wert auf den Erhalt des klassischen Altbau-Flairs gelegt wurde. Die stilvolle Fassade und der repräsentative Eingangsbereich unterstreichen den exklusiven Charakter dieses einzigartigen Domizils.
Großzügiges Wohnkonzept für höchste Ansprüche
Dieses luxuriöse Penthouse entstand aus der Zusammenlegung zweier ursprünglich geplanter Penthouse-Wohnungen, wodurch eine außergewöhnliche Wohnlandschaft geschaffen wurde:
- Riesiger Wohnbereich mit exklusiver Design-Küche als stilvolles Zentrum
- 6 Schlafzimmer, 4 Bäder, 4 WCs
- Zwei Wohnungseingänge für maximale Flexibilität
Das absolute Highlight: Eine Dachterrasse der Extraklasse
Diese beeindruckende Dachterrasse (ca. 77,5 m²) ist ein wahres Juwel! Neben großzügigen Freiflächen zum Entspannen und Genießen erwartet Sie hier eine exklusive Sauna – Ihr privater Rückzugsort mit spektakulärem Weitblick. Genießen Sie den einzigartigen Panoramablick, der vom Kahlenberg bis zum Wiener Riesenrad reicht – ein unvergleichliches Erlebnis zu jeder Tages- und Jahreszeit!
Exquisite Ausstattung – Luxus in jedem Detail
✔ Hochwertiges Echtholzparkett aus naturgeölter Eiche
✔ Exklusive Designer-Bäder mit edlen Marmorwaschtischen und Premium-Sanitärobjekten von Geberit, Duravit und Hansgrohe
✔ Elegante Premium-Küche – ein architektonisches Highlight im lichtdurchfluteten Wohnraum
✔ Großflächige Holz-Alu-Fenster für maximale Helligkeit und ein einzigartiges Wohngefühl
✔ Elektrische Außenbeschattung für optimalen Sonnenschutz
✔ Klimaanlage in allen Aufenthaltsräumen für angenehmes Raumklima zu jeder Jahreszeit
✔ Fußbodenheizung für behagliche Wärme im gesamten Wohnbereich
✔ Barrierefreier Personenlift für maximalen Komfort
✔ Video-Sprechanlage für höchste Sicherheit
Ein Penthouse, das keine Wünsche offenlässt
Neben der imposanten Dachterrasse mit Sauna bieten vier Balkone (gesamt ca. 39 m²) zusätzliche Rückzugsorte im Freien.
Ein weiteres Highlight: Ein großzügiger Tiefgaragenplatz, der Platz für zwei normale Autos oder einen SUV + Mini bietet – bereits im Kaufpreis inkludiert!
Exklusives Wohnen über den Dächern Wiens
- Wohnfläche: ca. 300 m²
- Dachterrasse mit Sauna: ca. 77,5 m²
- 4 Balkone: gesamt ca. 39 m²
- Kaufpreis inkl. Garagenplatz: € 3.200.000,-
Erleben Sie Wohnen auf höchstem Niveau – vereinbaren Sie noch heute Ihre persönliche Besichtigung!
__________________________________________________________________
Spectacular Penthouse – Luxury, Design & Exclusive Rooftop Terrace with Private Sauna
This breathtaking penthouse redefines exclusive living at the highest level. Featuring premium materials, a thoughtfully designed layout, and a spectacular rooftop terrace with a private sauna, this property is a true rarity. The panoramic 360° views stretch from the Vienna Woods to the iconic Ferris Wheel, offering a mesmerizing skyline that fascinates every single day!
Historic Charm Meets Modern Elegance
The residential building underwent an extensive revitalization in 2015, preserving its classic period charm while incorporating modern comforts. The elegant façade and impressive entrance area underline the exclusivity of this unique property.
A Spacious Living Concept for the Highest Standards
This luxurious penthouse was created by merging two originally planned penthouse units, resulting in an extraordinary living space:
- Expansive living and dining area with an exclusive designer kitchen as the stylish centerpiece
- 6 bedrooms, 4 bathrooms, and 4 WCs
- Two separate entrances for ultimate flexibility
The Ultimate Highlight: A Rooftop Terrace of Extravagance
This impressive rooftop terrace (approx. 77.5 m²) is a true gem! In addition to spacious outdoor areas for relaxation and entertainment, it features an exclusive private sauna – your personal retreat with breathtaking panoramic views. From the Kahlenberg to the Vienna Ferris Wheel, this unparalleled vista offers a stunning spectacle at any time of the day or year!
Exquisite Features – Luxury in Every Detail
✔ High-quality real wood flooring in natural oiled oak
✔ Exclusive designer bathrooms with elegant marble washbasins and premium fixtures from Geberit, Duravit, and Hansgrohe
✔ Sophisticated premium kitchen – an architectural highlight in the sun-drenched living space
✔ Large-format wood-aluminum windows for maximum brightness and an outstanding ambiance
✔ Electric exterior shading for optimal sun protection
✔ Air conditioning in all living areas for a comfortable indoor climate year-round
✔ Underfloor heating for cozy warmth throughout the apartment
✔ Barrier-free elevator access for maximum convenience
✔ Video intercom system for enhanced security
A Penthouse That Leaves Nothing to Be Desired
In addition to the spectacular rooftop terrace with a sauna, four balconies (totaling approx. 39 m²) provide additional private outdoor retreats.
Another highlight: A spacious underground parking space, accommodating two standard cars or one SUV + Mini, is already included in the purchase price!
Exclusive Living Above Vienna’s Rooftops
- Living area: approx. 300 m²
- Rooftop terrace with sauna: approx. 77.5 m²
- 4 balconies: total approx. 39 m²
- Purchase price incl. parking space: € 3,200,000,-
Experience luxury living at its finest – schedule your private viewing today!
Wir weisen darauf hin, dass zwischen dem Vermittler und dem zu vermittelnden Dritten ein familiäres oder wirtschaftliches Naheverhältnis besteht.
Der Vermittler ist als Doppelmakler tätig.
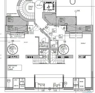
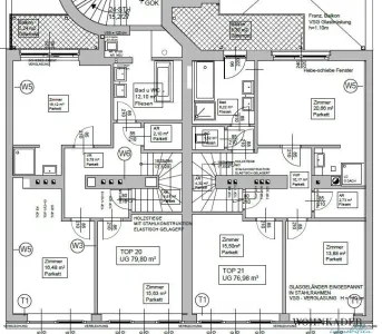
Pläne
Lagebeschreibung
Exklusive Wohnlage im Herzen Döblings Diese Wohnung liegt in einer der begehrtesten Wohngegenden Wiens – dem eleganten 19. Bezirk. Hier vereinen sich urbaner Komfort und idyllische Erholungsmöglichkeiten zu einer einzigartigen Lebensqualität. Direkt vor Ihrer Haustür lädt der malerische Hugo-Wolf-Park zum Entspannen ein, während zahlreiche Cafés, Restaurants und Bars den charmanten Charakter Döblings prägen. Der Sonnbergmarkt, ein Paradies für Feinschmecker, bietet eine exquisite Auswahl an Delikatessen und lädt zum genussvollen Flanieren ein. Trotz der ruhigen und grünen Umgebung profitieren Sie von einer hervorragenden Infrastruktur: In unmittelbarer Nähe befinden sich Supermärkte, Apotheken, Ärzte, Banken, Schulen, Kindergärten sowie ein Sportzentrum. Auch die Anbindung an den öffentlichen Verkehr ist ideal: Die Buslinien 35A und 39A sowie die Straßenbahnlinie 38 liegen nur wenige Schritte entfernt, und die Schnellbahnlinie S45 ist in wenigen Gehminuten erreichbar. Der 35A bringt Sie zudem direkt zur U4- und U6-Station Spittelau, von wo aus Sie schnell in die Wiener Innenstadt gelangen. Diese Wohnlage bietet Ihnen das Beste aus zwei Welten: Ruhe, Natur und Erholung – gepaart mit einer exzellenten Infrastruktur und bester Anbindung. Hier wohnen Sie in einer der schönsten Gegenden Wiens!



















































